Bildegalleri

EiendomsMegler 1 v/Rune Johansen har gleden av å presentere Kvennbergata 47! FOTO: EFKT (Vilde Dahl)
Nordlandet
VISNING TORSDAG 12.03 KL 17- Fin 3-roms BRL leilighet i høy 1.etg. Sentralt på Nordlandet.
Prisantydning1 390 000 kr
Nøkkelinfo
- Boligtype
- Leilighet
- Eieform
- Andel
- Soverom
- 2
- Internt bruksareal
- 66 m² (BRA-i)
- Bruksareal
- 66 m²
- Byggeår
- 1955
- Energimerking
- G - Rød
- Rom
- 3
- Tomteareal
- 505 m² (eiet)
Visning
torsdag, 12. mars
17:00 – 17:45
Våre visninger har påmelding. Dette gjør vi for å kunne yte bedre service for våre kunder. Verdifullt for boligkjøper og for oss. Vi anbefaler at salgsoppgaven lastes ned digitalt før visning, og ring oss gjerne på forhånd for spørsmål om boligen. Passer ikke angitt tidspunkt, ta kontakt så finner vi en løsning. Skulle det mot formodning ikke være påmeldte til angitt visningstidspunkt vil ikke visning bli gjennomført.
Om boligen
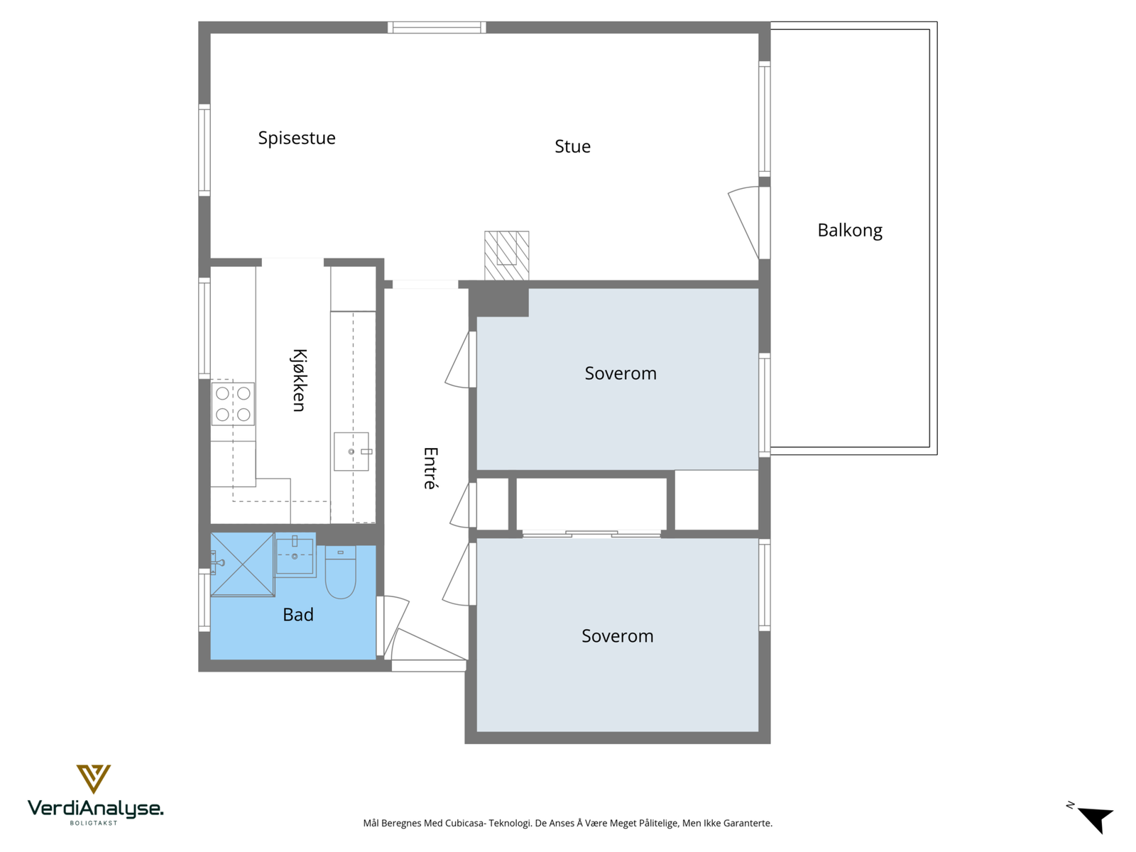
EiendomsMegler 1 v/Rune Johansen har gleden av å presentere Kvennberggata 47!
Fin 3-roms KBBL andelsleilighet beliggende i en høy 1.etasje. Fra stue er det adkomst til utvidet og overbygd veranda. Fra spisestuen er det sjøutsikt mot Dalasundet. Leiligheten inneholder.: 1.etasje, gang, bad, to soverom, stue og kjøkken. I tillegg medfølger det boder i kjeller.
Leiligheten ligger sentralt til på Nordlandet, med kort vei til butikk, skoler og offentlig kommunikasjon.
Velkommen på visning !
Fin 3-roms KBBL andelsleilighet beliggende i en høy 1.etasje. Fra stue er det adkomst til utvidet og overbygd veranda. Fra spisestuen er det sjøutsikt mot Dalasundet. Leiligheten inneholder.: 1.etasje, gang, bad, to soverom, stue og kjøkken. I tillegg medfølger det boder i kjeller.
Leiligheten ligger sentralt til på Nordlandet, med kort vei til butikk, skoler og offentlig kommunikasjon.
Velkommen på visning !
NB: Knappen for å vise hele beskrivelsen har kun en visuell effekt.
NB: Knappen for å vise hele beskrivelsen har kun en visuell effekt.
Salgsoppgaven beskriver vesentlig og lovpålagt informasjon om eiendommen
Se komplett salgsoppgaveNyttige lenker
Nærområdet
EiendomsMegler 1 Kristiansund
Vi loser deg trygt gjennom hele boligsalget
Annonseinformasjon
| FINN-kode | 453918626 |
|---|---|
| Sist endret | 06. mars 2026 07:56 |
| Referanse | 17260066 |
Annonsene kan være mangelfulle i forhold til lovpålagt opplysningsplikt. Før bindende avtale inngås oppfordres interessenter til å innhente komplett informasjon fra meglerforetaket, selger eller utleier.





















