Bildegalleri

Velkommen til Strandgata 163 - presentert av eiendomsmegler Alexander Kvalevaag Skree v/ Aktiv Eiendomsmegling! Foto: Mari Staveland
Haugesund sentrum
Lekker toppleilighet i Haugesund sentrum | Lys og luftig stue med ekstra takhøyde | Fast garasjeplass | Ingen dok.avgift
Prisantydning1 575 000 kr
Nøkkelinfo
- Boligtype
- Leilighet
- Eieform
- Andel
- Soverom
- 1
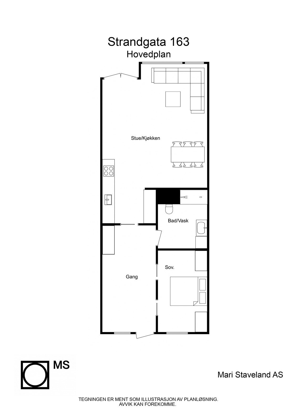
- Internt bruksareal
- 54 m² (BRA-i)
- Bruksareal
- 59 m²
- Eksternt bruksareal
- 5 m² (BRA-e)
- Etasje
- 3
- Byggeår
- 2006
- Rom
- 2
- Tomteareal
- 661 m² (eiet)
Fasiliteter
Barnevennlig
Bredbåndstilknytning
Garasje/P-plass
Offentlig vann/kloakk
Parkett
Sentralt
Utsikt
Turterreng
Visning
mandag, 16. mars
16:00 – 17:00
Ved annonsert visning er det viktig at du melder deg på visningen ved å bruke visningspåmeldingsknappen eller kontakter megler. Annonserte visninger hvor det ikke er noen påmeldte innen kl. 16.00 dagen før visningsdagen vil ikke bli avholdt.
For visninger utover dette, ta direkte kontakt med megler.
VisningspåmeldingOm boligen
Velkommen til Strandgata 163 - presentert av eiendomsmegler Alexander Kvalevaag Skree v/ Aktiv Eiendomsmegling!
En lekker toppleilighet midt i Haugesund sentrum med gjennomtenkt planløsning og flotte kvaliteter. Boligen byr på en lys og luftig stue med ekstra takhøyde som gir en fantastisk romfølelse, samt utgang til fransk balkong. Stilrent kjøkken i åpen løsning mot stuen, flislagt bad, romslig soverom og en stor gang med gode oppbevaringsmuligheter. I tillegg medfølger egen bod og parkering i lukket garasjeanlegg en sjelden komfort midt i sentrum.
Med adresse midt i bykjernen bor du med byens fasiliteter rett utenfor døren. Enten det gjelder shopping, treningssenter, serveringssteder eller kollektivtransport, finner du alt i umiddelbar nærhet.
Velkommen til en hyggelig visning!
En lekker toppleilighet midt i Haugesund sentrum med gjennomtenkt planløsning og flotte kvaliteter. Boligen byr på en lys og luftig stue med ekstra takhøyde som gir en fantastisk romfølelse, samt utgang til fransk balkong. Stilrent kjøkken i åpen løsning mot stuen, flislagt bad, romslig soverom og en stor gang med gode oppbevaringsmuligheter. I tillegg medfølger egen bod og parkering i lukket garasjeanlegg en sjelden komfort midt i sentrum.
Med adresse midt i bykjernen bor du med byens fasiliteter rett utenfor døren. Enten det gjelder shopping, treningssenter, serveringssteder eller kollektivtransport, finner du alt i umiddelbar nærhet.
Velkommen til en hyggelig visning!
NB: Knappen for å vise hele beskrivelsen har kun en visuell effekt.
NB: Knappen for å vise hele beskrivelsen har kun en visuell effekt.
Salgsoppgaven beskriver vesentlig og lovpålagt informasjon om eiendommen
Se komplett salgsoppgaveNærområdet
Aktiv Haugesund
Annonseinformasjon
| FINN-kode | 453913787 |
|---|---|
| Sist endret | 06. mars 2026 13:51 |
| Referanse | 1509250355 |
Annonsene kan være mangelfulle i forhold til lovpålagt opplysningsplikt. Før bindende avtale inngås oppfordres interessenter til å innhente komplett informasjon fra meglerforetaket, selger eller utleier.



































