Bildegalleri

Eiendomsmegler1 v/ Sander Moe har gleden av å presentere Trollåsveien 3! (foto: Mamor Boligstyling AS)
Rønvika
Innbydende og flott enebolig med attraktiv beliggenhet | Godkjent utleiedel | Romslig vestvendt terrasse | Hjørnetomt
Prisantydning6 190 000 kr
Nøkkelinfo
- Boligtype
- Enebolig
- Eieform
- Eier (Selveier)
- Soverom
- 3
- Internt bruksareal
- 190 m² (BRA-i)
- Bruksareal
- 190 m²
- Balkong/Terrasse
- 42 m² (TBA)
- Byggeår
- 1976
- Energimerking
- E - Oransje
- Rom
- 5
- Tomteareal
- 790 m² (eiet)
Fasiliteter
Barnevennlig
Balkong/Terrasse
Garasje/P-plass
Offentlig vann/kloakk
Peis/Ildsted
Turterreng
Utsikt
Rolig
Visning
torsdag, 19. mars
17:00 – 18:00
Alle våre visninger har påmelding. Dette for at vi kan planlegge visningene best mulig, og ha god tid til de som kommer. Det er enkelt å melde seg på, og du kan like enkelt melde deg av. Visninger uten påmeldte deltakere kan bli avlyst.
Om boligen
Eiendomsmeglerfullmektig Sander Moe presenterer her Trollåsveien 3 - en tiltalende og flott enebolig m/utleiedel. Eiendommen ligger i et attraktivt og barnevennlig boområde med kort til til Saltvern skole, barnehage Stordalens diverse idrettstilbud og dagligvarebutikk
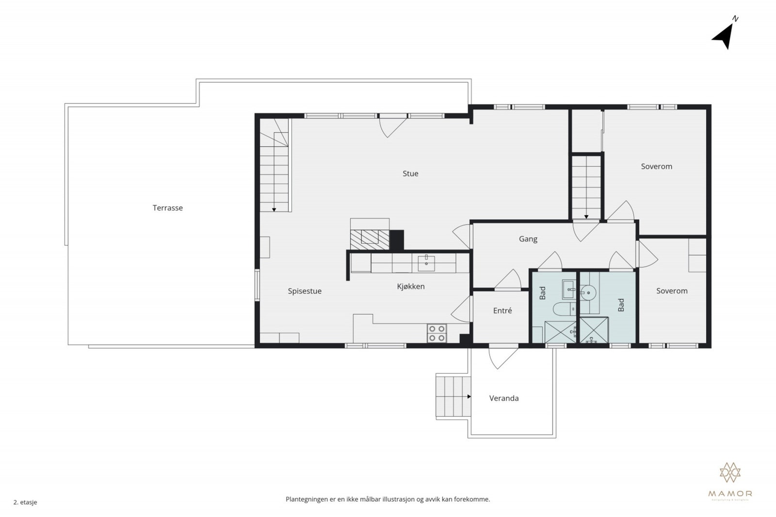
Boligens hoveddel inneholder: Entré, gang, stue/kjøkken, stue, to bad, to soverom, to boder og vaskerom. Utleiedelen inneholder: Stue, kjøkken, entré, gang, soverom, bad og to boder.
For den turglade er det kort vei til Maskinisten og Bodømarka, med et omfattende løypenett for både sommer- og vintertid.
Høydepunkter:
Boligens hoveddel inneholder: Entré, gang, stue/kjøkken, stue, to bad, to soverom, to boder og vaskerom. Utleiedelen inneholder: Stue, kjøkken, entré, gang, soverom, bad og to boder.
For den turglade er det kort vei til Maskinisten og Bodømarka, med et omfattende løypenett for både sommer- og vintertid.
Høydepunkter:
- Flott utsikt og gode lysforhold
- Nesten 800m² tomt
- Vestvendt terrasse
- 3 bad & vaskerom
- Lite trafikkert gate.
For visning utover åpen visning, kontakt eiendomsmeglerfullmektig Sander Moe på tlf 907 444 81 eller sander.moe@em1nn.no
NB: Knappen for å vise hele beskrivelsen har kun en visuell effekt.
NB: Knappen for å vise hele beskrivelsen har kun en visuell effekt.
Salgsoppgaven beskriver vesentlig og lovpålagt informasjon om eiendommen
Se komplett salgsoppgaveNyttige lenker
Nærområdet
EiendomsMegler 1 Bodø - Stormen
Vi er der du er - EiendomsMegler 1
Annonseinformasjon
| FINN-kode | 453902204 |
|---|---|
| Sist endret | 06. mars 2026 10:04 |
| Referanse | 23260037 |
Annonsene kan være mangelfulle i forhold til lovpålagt opplysningsplikt. Før bindende avtale inngås oppfordres interessenter til å innhente komplett informasjon fra meglerforetaket, selger eller utleier.

























































