Bildegalleri

Fotograf Bjørn Sørheim V/ EFKT. Velkommen til Hesteskoen 25!
ÅRNES/RUNNI - Sentrumsnær og koselig enebolig på romslig tomt - Gode solforhold - Stor garasje - 600m til skoler.
Prisantydning3 390 000 kr
Nøkkelinfo
- Boligtype
- Enebolig
- Eieform
- Eier (Selveier)
- Soverom
- 2
- Internt bruksareal
- 145 m² (BRA-i)
- Bruksareal
- 190 m²
- Eksternt bruksareal
- 45 m² (BRA-e)
- Balkong/Terrasse
- 27 m² (TBA)
- Etasje
- 2
- Byggeår
- 1965
- Energimerking
- F
- Rom
- 3
- Tomteareal
- 933 m² (eiet)
Fasiliteter
Balkong/Terrasse
Barnevennlig
Bredbåndstilknytning
Garasje/P-plass
Offentlig vann/kloakk
Peis/Ildsted
Rolig
Sentralt
Visning
torsdag, 12. mars
17:30 – 18:30
Ønsker du å delta på visningen ber vi deg melde deg på slik at vi vet at du kommer. Da kan vi bistå alle best mulig og gi deg tiden du trenger på visningen. Ta gjerne kontakt med megler før visning hvis du har noen spørsmål. Velkommen!
VisningspåmeldingOm boligen
Hesteskoen 25 er en meget sentralt beliggende enebolig med gangavstand til skoler i alle trinn, barnehager, idrettshaller, svømmehall, ishall. Kun 1400m til Årnes sentrum. Du vil aldri angre på å ha en sentrumsnær bolig!
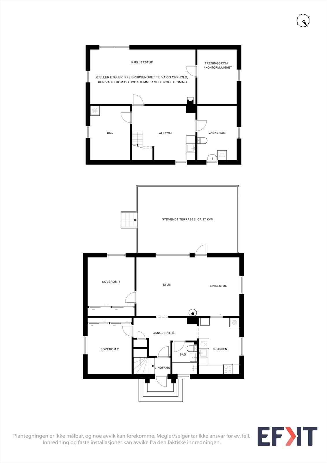
Her får du også en stor gårdsplass og en fin Igland dobbelgarasje på 45kvm i tillegg til hageområder. Tomten er på ca 930 kvm.
Meget solrik (sydvendt) terrasse på hele 27 kvm, pusset opp i 2022.
De fleste overflater i boligen er pusset opp etter 2000, boligen holder en normal god standard på alle overflater. En veldig praktisk og fin kjeller som er delvis innredet med kjellerstue, kontor, vaskerom, bodrom m.m. men er ikke søkt bruksendret.
I 1. etg har du entre/gang, flislagt bad, kjøkken, stue og to fine soverom.
Velkommen til et trivelig boområde.
Her får du også en stor gårdsplass og en fin Igland dobbelgarasje på 45kvm i tillegg til hageområder. Tomten er på ca 930 kvm.
Meget solrik (sydvendt) terrasse på hele 27 kvm, pusset opp i 2022.
De fleste overflater i boligen er pusset opp etter 2000, boligen holder en normal god standard på alle overflater. En veldig praktisk og fin kjeller som er delvis innredet med kjellerstue, kontor, vaskerom, bodrom m.m. men er ikke søkt bruksendret.
I 1. etg har du entre/gang, flislagt bad, kjøkken, stue og to fine soverom.
Velkommen til et trivelig boområde.
NB: Knappen for å vise hele beskrivelsen har kun en visuell effekt.
NB: Knappen for å vise hele beskrivelsen har kun en visuell effekt.
Salgsoppgaven beskriver vesentlig og lovpålagt informasjon om eiendommen
Se komplett salgsoppgaveNyttige lenker
Nærområdet
EiendomsMegler 1 Årnes
Vi loser deg trygt gjennom hele boligsalget
Annonseinformasjon
| FINN-kode | 453872745 |
|---|---|
| Sist endret | 06. mars 2026 10:23 |
| Referanse | 6048260038 |
Annonsene kan være mangelfulle i forhold til lovpålagt opplysningsplikt. Før bindende avtale inngås oppfordres interessenter til å innhente komplett informasjon fra meglerforetaket, selger eller utleier.



































