Bildegalleri

Stephan Erichsen v/ Proaktiv Eiendomsmegling Sola har gleden av å presentere Åsenstubben 2 H0201 for salg.
Sola/Forus
Moderne 3-roms endeleilighet med god planløsning og bra standard - Solrik balkong - Parkering m/elbillader
Prisantydning3 100 000 kr
Nøkkelinfo
- Boligtype
- Leilighet
- Eieform
- Andel
- Soverom
- 2
- Internt bruksareal
- 57 m² (BRA-i)
- Bruksareal
- 62 m²
- Eksternt bruksareal
- 5 m² (BRA-e)
- Balkong/Terrasse
- 10 m² (TBA)
- Etasje
- 2
- Byggeår
- 2009
- Energimerking
- D
- Rom
- 3
- Tomteareal
- 663 m² (eiet)
Fasiliteter
Balkong/Terrasse
Barnevennlig
Bredbåndstilknytning
Garasje/P-plass
Heis
Kjæledyr tillatt
Kabel-TV
Parkett
Rolig
Sentralt
Utsikt
Lademulighet
Visning
onsdag, 11. mars
16:30 – 17:30
For at vår megler og selger skal kunne gi deg den beste oppfølgingen og kjøpsopplevelsen er det obligatorisk påmelding til alle våre visninger. Dersom ditt reserverte tidspunkt likevel ikke kan benyttes trenger vi beskjed så tidlig som mulig sånn at vi kan finne en alternativ løsning. Vi har alltid tid til deg. Visninger uten påmeldte deltagere avlyses.
VisningspåmeldingOm boligen
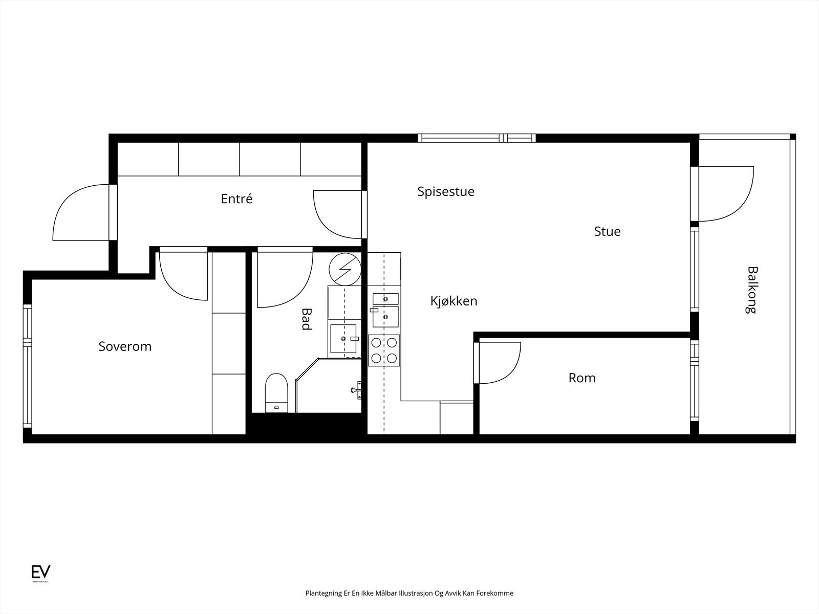
Åsenstubben 2 er en moderne 3-roms endeleilighet beliggende i et veletablert boligområde, skjermet fra trafikk og støy. Her bor du sentralt, men samtidig tilbaketrukket, med nærhet til det meste du skulle trenge i hverdagen for å trives i lang tid.
Leiligheten har en praktisk planløsning og et moderne preg, med gode løsninger som gir en komfortabel og funksjonell hverdag.
Boligen passer perfekt for førstegangskjøpere, par, småbarnsfamilier eller deg som ønsker en lettstelt og moderne leilighet i rolige omgivelser.
2. etg:
- Lys og innbydende entré med god oppbevaringsplass
- Åpen og sosial stue- og kjøkkenløsning med plass til spisebord
- Solrik balkong
- To gode soverom der hovedsoverom er av ekstra størrelse
- Moderne bad med varmekabler i gulv
- Bod og parkeringsplass i lukket anlegg
Leiligheten har en praktisk planløsning og et moderne preg, med gode løsninger som gir en komfortabel og funksjonell hverdag.
Boligen passer perfekt for førstegangskjøpere, par, småbarnsfamilier eller deg som ønsker en lettstelt og moderne leilighet i rolige omgivelser.
2. etg:
- Lys og innbydende entré med god oppbevaringsplass
- Åpen og sosial stue- og kjøkkenløsning med plass til spisebord
- Solrik balkong
- To gode soverom der hovedsoverom er av ekstra størrelse
- Moderne bad med varmekabler i gulv
- Bod og parkeringsplass i lukket anlegg
NB: Knappen for å vise hele beskrivelsen har kun en visuell effekt.
NB: Knappen for å vise hele beskrivelsen har kun en visuell effekt.
Salgsoppgaven beskriver vesentlig og lovpålagt informasjon om eiendommen
Se komplett salgsoppgaveNyttige lenker
Nærområdet
Proaktiv Eiendomsmegling Sola
Alltid tid til deg
Annonseinformasjon
| FINN-kode | 453838298 |
|---|---|
| Sist endret | 04. mars 2026 20:33 |
| Referanse | 1220260062 |
Annonsene kan være mangelfulle i forhold til lovpålagt opplysningsplikt. Før bindende avtale inngås oppfordres interessenter til å innhente komplett informasjon fra meglerforetaket, selger eller utleier.






































