Bildegalleri

SKIEN - KLOSTERØYA
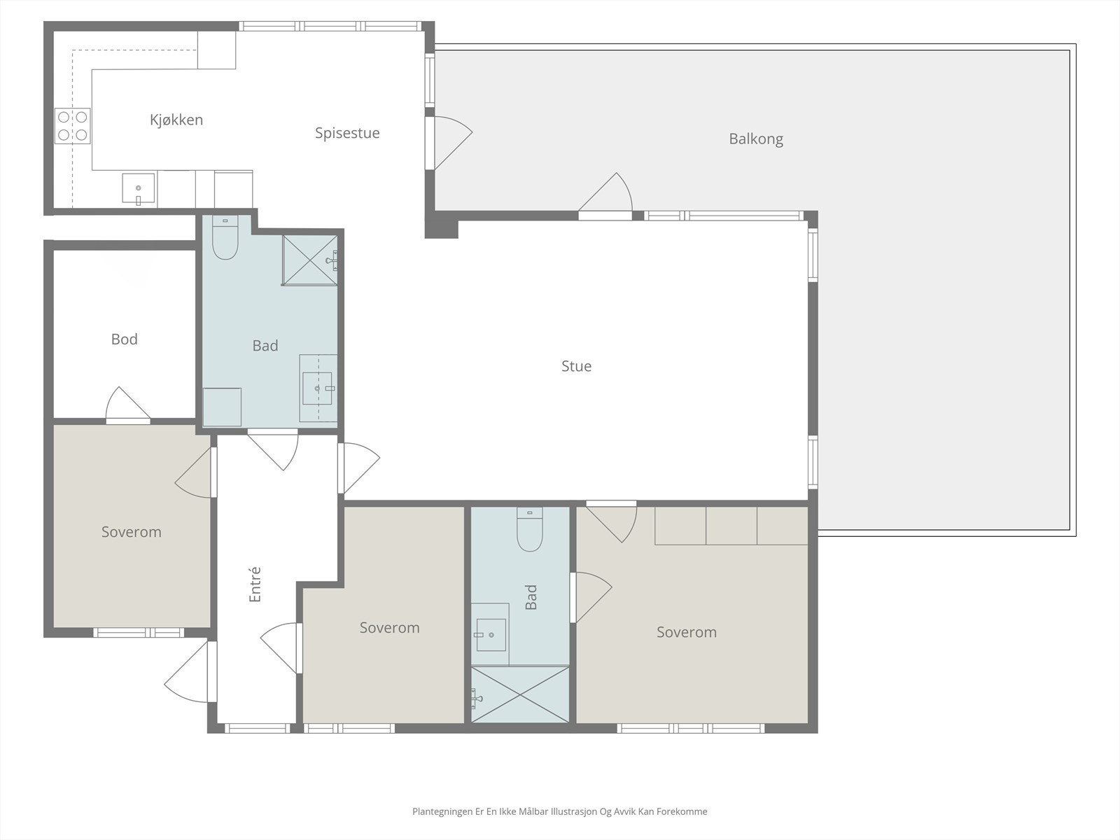
Lekker og påkostet leilighet med ca 65 kvm solrik terrasse. Heis, garasje, 3 soverom, 2 bad og flott kjøkken. Fin utsikt
Prisantydning5 950 000 kr
Nøkkelinfo
- Boligtype
- Leilighet
- Eieform
- Andel
- Soverom
- 3
- Internt bruksareal
- 104 m² (BRA-i)
- Bruksareal
- 110 m²
- Eksternt bruksareal
- 6 m² (BRA-e)
- Balkong/Terrasse
- 64 m² (TBA)
- Etasje
- 5
- Byggeår
- 2023
- Energimerking
- B
- Rom
- 4
- Tomteareal
- 1 482 m² (eiet)
Fasiliteter
Takterrasse
Balkong/Terrasse
Bredbåndstilknytning
Garasje/P-plass
Heis
Kabel-TV
Offentlig vann/kloakk
Parkett
Rolig
Sentralt
Utsikt
Turterreng
Lademulighet
Balansert ventilasjon
Om boligen
Denne praktfulle leiligheten er smakfullt innredet og holder en gjennomgående høy standard. Svært god planløsning og store vindusflater som gir god romfølelse. Eier har skreddersydd leiligheten med flotte tilvalg og oppgraderinger. Leiligheten inneholder bl..a tre soverom og to pene bad, lekkert og påkostet kjøkken og har en en imponerende terrasse på hele 65 kvm som er delvis overbygget! Det medfølger én garasjeplass, og det antas gode muligheter for å leie, evt. kjøpe, ekstra parkeringsplass på Klosterøya.
Klosterøya og Tømmerkaia har blitt et urbant sted i Skien med rikt utvalg av kaféer, restauranter og puber. Det er også fin gangavstand til sentrum.
Det er IN-ordning i borettslaget og følgelig kan fellesgjelden innbetales - helt eller delvis - hvis ønskelig for lavere felleskostnad.
Klosterøya og Tømmerkaia har blitt et urbant sted i Skien med rikt utvalg av kaféer, restauranter og puber. Det er også fin gangavstand til sentrum.
Det er IN-ordning i borettslaget og følgelig kan fellesgjelden innbetales - helt eller delvis - hvis ønskelig for lavere felleskostnad.
NB: Knappen for å vise hele beskrivelsen har kun en visuell effekt.
NB: Knappen for å vise hele beskrivelsen har kun en visuell effekt.
Salgsoppgaven beskriver vesentlig og lovpålagt informasjon om eiendommen
Se komplett salgsoppgaveNyttige lenker
Nærområdet
Nordvik Skien Porsgrunn
Annonseinformasjon
| FINN-kode | 453829294 |
|---|---|
| Sist endret | 05. mars 2026 14:33 |
| Referanse | 24-0038/26 |
Annonsene kan være mangelfulle i forhold til lovpålagt opplysningsplikt. Før bindende avtale inngås oppfordres interessenter til å innhente komplett informasjon fra meglerforetaket, selger eller utleier.

























































