Bildegalleri

Gro Anita Nøkland i EiendomsMegler 1 Jærmegleren presenterer Eskehagen 3
Bryne
Flott rekkehus med høy standard |3 soverom og 2 stuer | God planløsning og takterrasse
Prisantydning5 290 000 kr
Nøkkelinfo
- Boligtype
- Rekkehus
- Eieform
- Eier (Selveier)
- Soverom
- 3
- Internt bruksareal
- 101 m² (BRA-i)
- Bruksareal
- 106 m²
- Eksternt bruksareal
- 5 m² (BRA-e)
- Balkong/Terrasse
- 35 m² (TBA)
- Byggeår
- 2022
- Energimerking
- B
- Rom
- 5
- Tomteareal
- 148 m² (eiet)
Visning
torsdag, 12. mars
18:00 – 18:45
Ønsker du å delta på visningen ber vi deg melde deg på slik at vi vet at du kommer. Da kan vi bistå alle best mulig og gi deg tiden du trenger på visningen. Kontakt gjerne megler før visning hvis du har spørsmål. Visningen avholdes bare dersom det er påmeldte. Hvis det ikke er oppsatt visningstidspunkt eller tidspunkt ikke passer, kontakt megler.
VisningspåmeldingOm boligen
Velkommen til Eskerhagen 3
Kort om boligen:
- Attraktiv og barnevennlig beliggenhet
- Varmepumpe installert
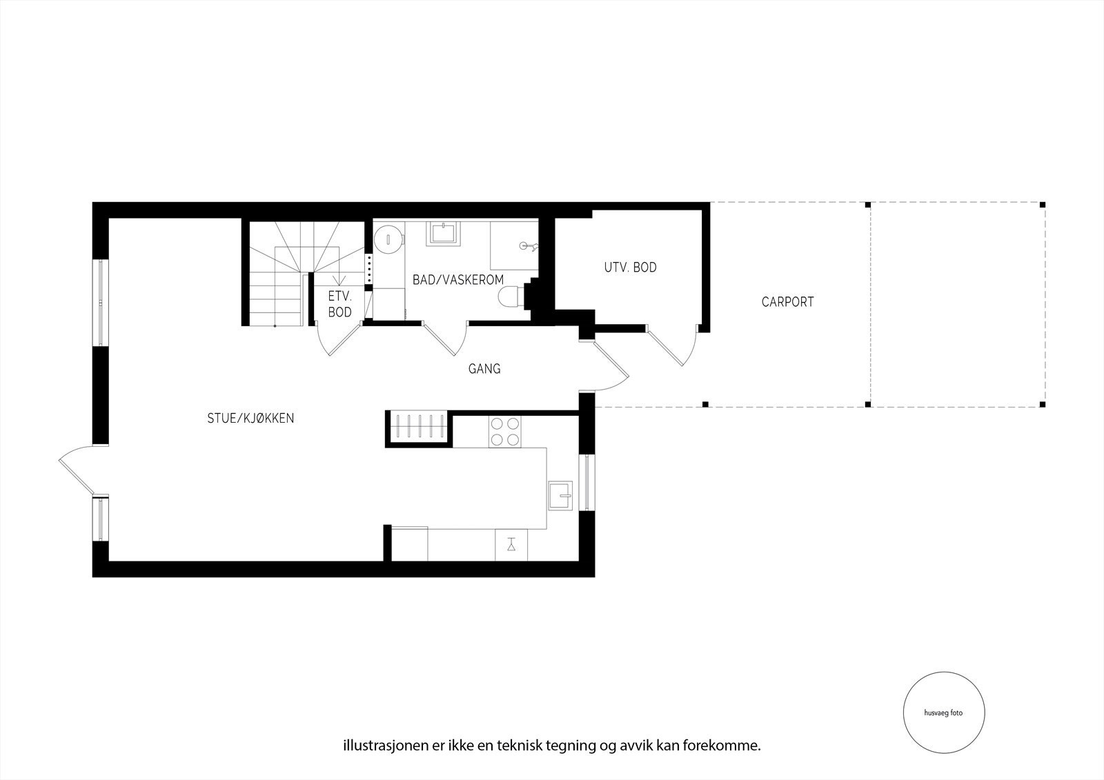
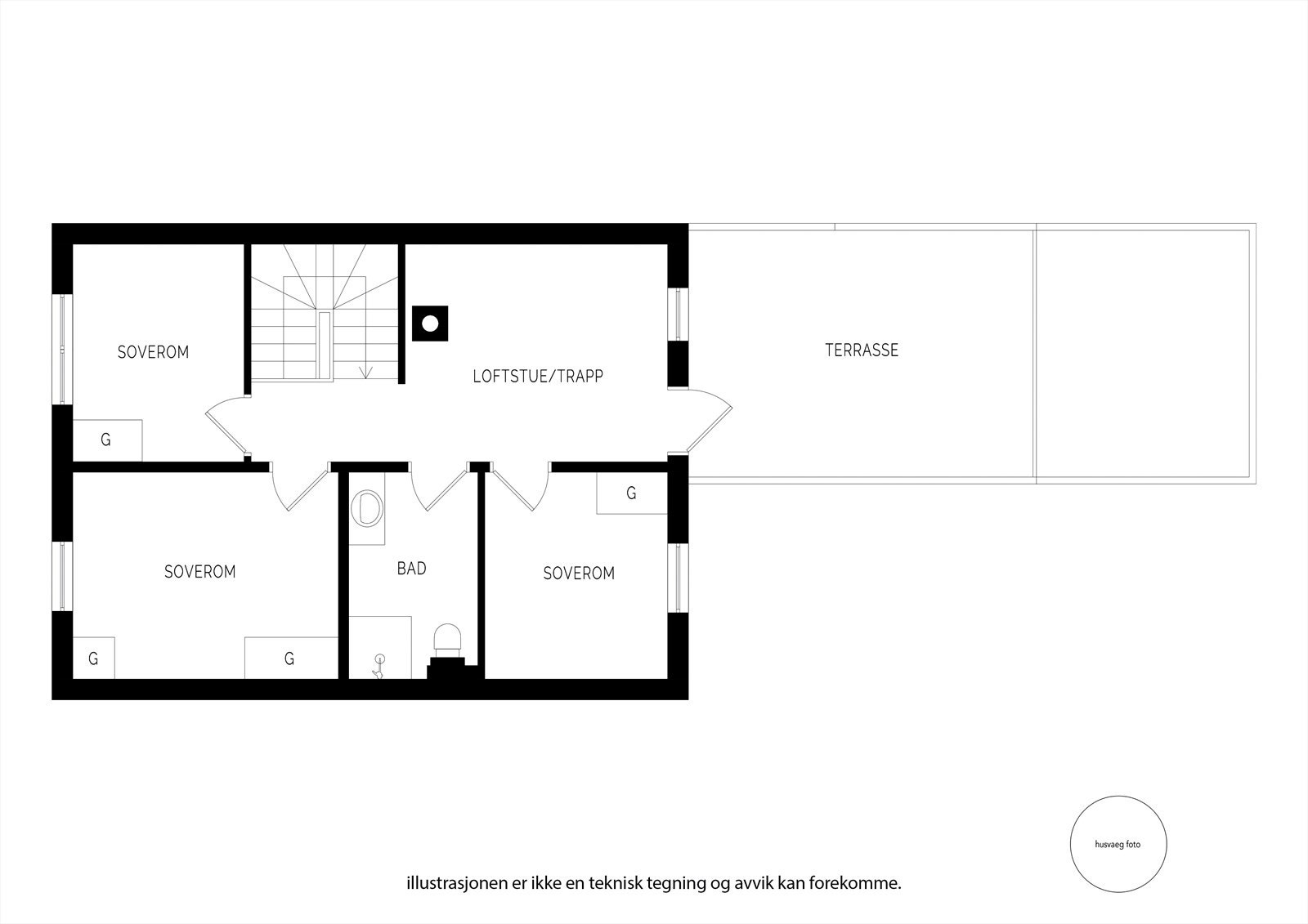
- Tre soverom og to stuer
- Takterrasse med gode solforhold
- Carport med El-bil lader
- To flislagte bad, hvorav ett med opplegg for vaskemaskin
- Mulighet for ekstra bod under trapp
- Ekstra takhøyde i andre etasje
- Lagringsplass på loft.
- Trygg gangveg til skule og fritidsaktiviteter
Velkommen til Eskerhagen - Nytt, rolig og barnevennlig nabolag bestående av leiligheter, rekkehus og eneboliger.
Kort om boligen:
- Attraktiv og barnevennlig beliggenhet
- Varmepumpe installert
- Tre soverom og to stuer
- Takterrasse med gode solforhold
- Carport med El-bil lader
- To flislagte bad, hvorav ett med opplegg for vaskemaskin
- Mulighet for ekstra bod under trapp
- Ekstra takhøyde i andre etasje
- Lagringsplass på loft.
- Trygg gangveg til skule og fritidsaktiviteter
Velkommen til Eskerhagen - Nytt, rolig og barnevennlig nabolag bestående av leiligheter, rekkehus og eneboliger.
NB: Knappen for å vise hele beskrivelsen har kun en visuell effekt.
NB: Knappen for å vise hele beskrivelsen har kun en visuell effekt.
Salgsoppgaven beskriver vesentlig og lovpålagt informasjon om eiendommen
Se komplett salgsoppgaveNyttige lenker
Nærområdet
EiendomsMegler 1 Jærmegleren
En del av Sparebank 1 Sør-Norge
Annonseinformasjon
| FINN-kode | 453769971 |
|---|---|
| Sist endret | 05. mars 2026 18:07 |
| Referanse | 2403260023 |
Annonsene kan være mangelfulle i forhold til lovpålagt opplysningsplikt. Før bindende avtale inngås oppfordres interessenter til å innhente komplett informasjon fra meglerforetaket, selger eller utleier.





































