Bildegalleri

Velkommen til Titanveien 15
Innholdsrik og pen enebolig over 3 plan beliggende i ett attraktiv og barnevennlig område. Solrike utearealer. Utleiedel
Prisantydning6 990 000 kr
Nøkkelinfo
- Boligtype
- Enebolig
- Eieform
- Eier (Selveier)
- Soverom
- 5
- Internt bruksareal
- 234 m² (BRA-i)
- Bruksareal
- 256 m²
- Eksternt bruksareal
- 22 m² (BRA-e)
- Balkong/Terrasse
- 12 m² (TBA)
- Etasje
- 3
- Byggeår
- 1980
- Energimerking
- E
- Rom
- 7
- Tomteareal
- 390 m² (eiet)
Fasiliteter
Balkong/Terrasse
Barnevennlig
Garasje/P-plass
Hage
Rolig
Turterreng
Visning
onsdag, 11. mars
16:00 – 17:00
Ønsker du å delta på visningen ber vi deg melde deg på slik at vi vet at du kommer. Da kan vi bistå alle best mulig og gi deg tiden du trenger på visningen. Kontakt gjerne megler før visning hvis du har spørsmål. Visningen avholdes bare dersom det er påmeldte. Hvis det ikke er oppsatt visningstidspunkt eller tidspunkt ikke passer, kontakt megler.
VisningspåmeldingOm boligen
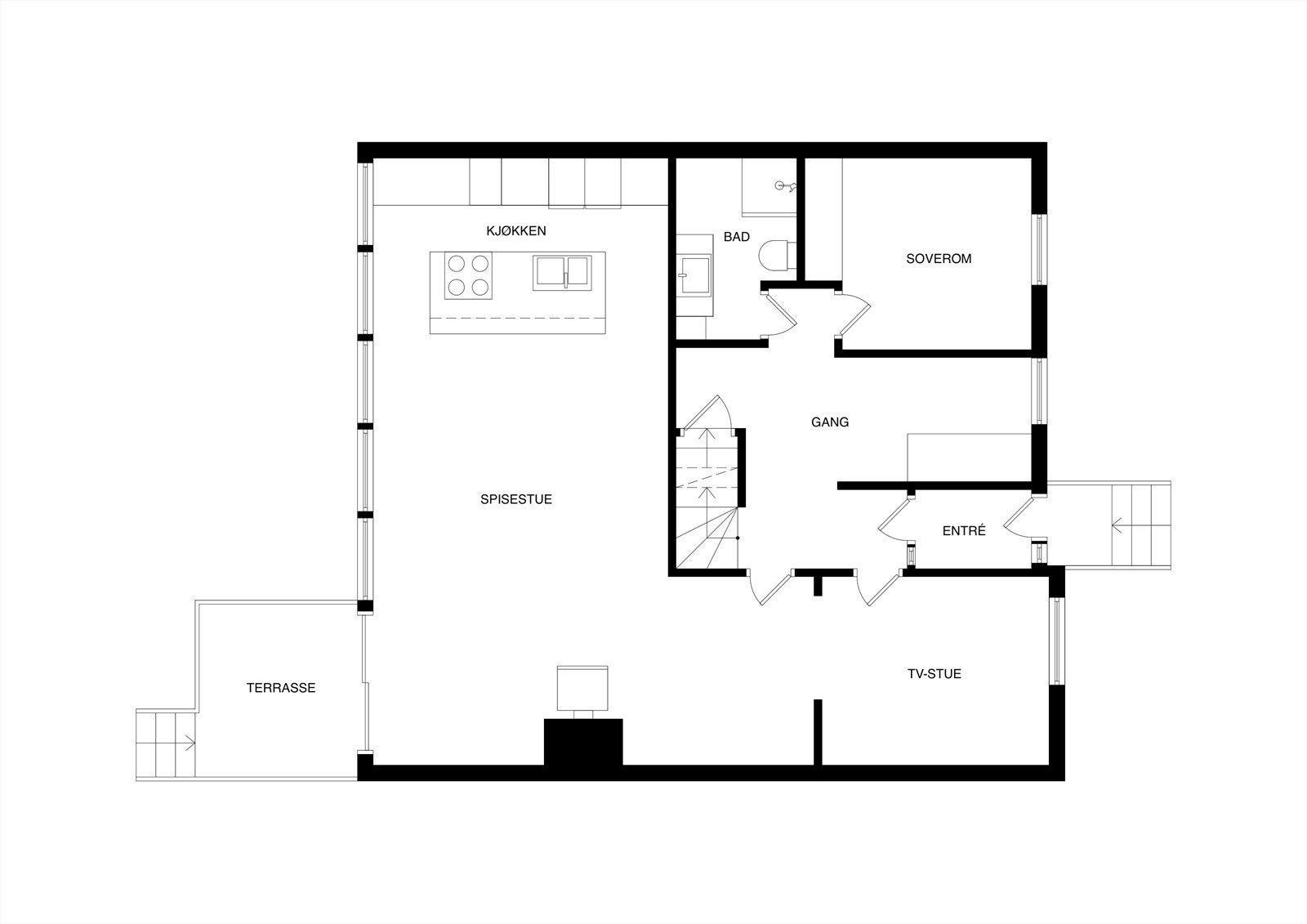
Velkommen til Titanveien 15. En meget pen og innholdsrik enebolig over tre plan, beliggende i et svært attraktivt og barnevennlig boligområde. Her bor du i rolige omgivelser med kort vei til butikk, skole, barnehage, Randaberg sentrum, båthavn og turområder langs sjøen.
Boligen har praktisk planløsning med stue og kjøkken i 1. etasje. I tillegg finner man bad og soverom her. Det er utgang til terrasse og en solrik hage fra stuen. Pent bad med fliser på gulv og stor vask i seksjon. Dusjnisje.
I boligens 2. etasje finner man 3 soverom og et praktisk toalettrom.
Vaskerom og bod i kjeller.
Leilighet i kjeller ( ca 70 kvm ) er i dag utleid for kr. 9 500,- per mnd. + strøm. Umøblert. Alle rettigheter og forpliktelser ihht. leiekontraken overdras med eiendommen. For kopi, konf. megler.
Boligen har praktisk planløsning med stue og kjøkken i 1. etasje. I tillegg finner man bad og soverom her. Det er utgang til terrasse og en solrik hage fra stuen. Pent bad med fliser på gulv og stor vask i seksjon. Dusjnisje.
I boligens 2. etasje finner man 3 soverom og et praktisk toalettrom.
Vaskerom og bod i kjeller.
Leilighet i kjeller ( ca 70 kvm ) er i dag utleid for kr. 9 500,- per mnd. + strøm. Umøblert. Alle rettigheter og forpliktelser ihht. leiekontraken overdras med eiendommen. For kopi, konf. megler.
NB: Knappen for å vise hele beskrivelsen har kun en visuell effekt.
NB: Knappen for å vise hele beskrivelsen har kun en visuell effekt.
Salgsoppgaven beskriver vesentlig og lovpålagt informasjon om eiendommen
Se komplett salgsoppgaveNyttige lenker
Nærområdet
EiendomsMegler 1 Madla
En del av Sparebank 1 Sør-Norge
Annonseinformasjon
| FINN-kode | 453759799 |
|---|---|
| Sist endret | 04. mars 2026 21:30 |
| Referanse | 2205260047 |
Annonsene kan være mangelfulle i forhold til lovpålagt opplysningsplikt. Før bindende avtale inngås oppfordres interessenter til å innhente komplett informasjon fra meglerforetaket, selger eller utleier.

















































