Bildegalleri

Velkommen til Våkleivåsen 216 - En leilighet med en attraktiv beliggenhet, flott utsikt og rolig miljø.
Bønes
Pen 3-roms toppleilighet over to plan. Altan, gode solforhold & skjermet utsikt. Kort vei til buss, butikk & turområder!
Prisantydning3 700 000 kr
Nøkkelinfo
- Boligtype
- Leilighet
- Eieform
- Andel
- Soverom
- 2
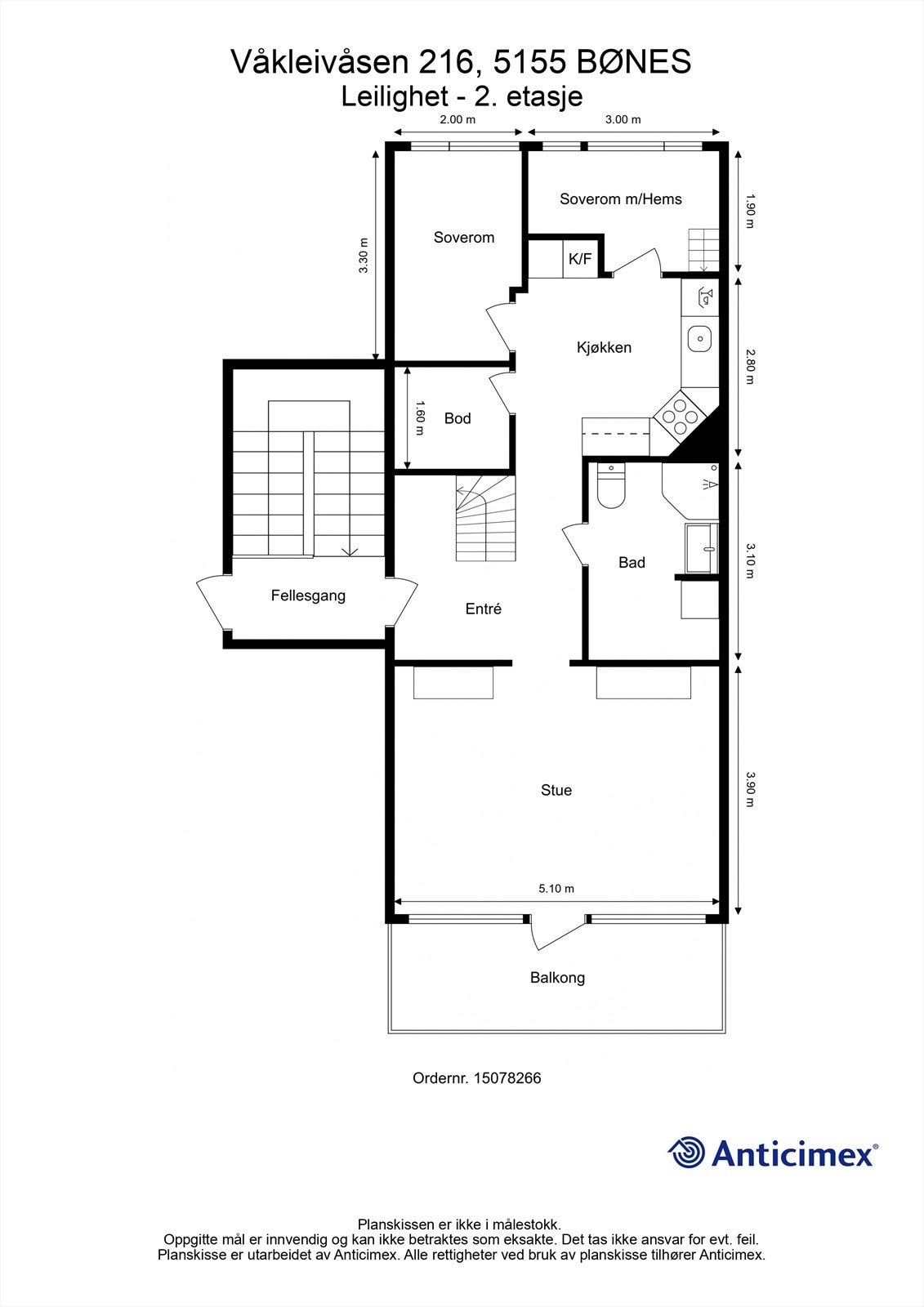
- Internt bruksareal
- 89 m² (BRA-i)
- Bruksareal
- 100 m²
- Eksternt bruksareal
- 11 m² (BRA-e)
- Balkong/Terrasse
- 9 m² (TBA)
- Etasje
- 3
- Byggeår
- 1983
- Energimerking
- E - Oransje
- Rom
- 3
- Tomteareal
- 13 264 m² (eiet)
Fasiliteter
Balkong/Terrasse
Barnevennlig
Garasje/P-plass
Rolig
Utsikt
Turterreng
Om boligen
Velkommen til denne flotte leiligheten i Våkleivåsen 216! En romslig toppleilighet over to plan med populær beliggenhet på Bønes - nært alt man trenger i hverdagen!
Høydepunkter:
Høydepunkter:
- Luftig leilighet med lyse og moderne overflater
- Usjenert beliggenhet med svært lite innsyn
- Borettslaget renoverte alle boligene utvendig i 2022 med nye vinduer, dører, kledning, etterisolering og tak
- Balansert ventilasjon fra 2022
- Tre soverom
- Alle hvitevarer på kjøkkenet medfølger i handelen
- Svært kort gangavstand til Fjellsdalen skole, idrettsplass, barnehage og treningssenter.
- Naturskjønne omgivelser like foran blokken som gir en fin utsikt fra balkong
- Lekeplass like ved boligen
- Kort vei til butikk og buss
NB: Knappen for å vise hele beskrivelsen har kun en visuell effekt.
NB: Knappen for å vise hele beskrivelsen har kun en visuell effekt.
Salgsoppgaven beskriver vesentlig og lovpålagt informasjon om eiendommen
Se komplett salgsoppgaveNyttige lenker
Nærområdet
Krogsveen Fyllingsdalen
Verdien av en god megler.
Annonseinformasjon
| FINN-kode | 453757064 |
|---|---|
| Sist endret | 05. mars 2026 10:16 |
| Referanse | KR70.263 |
Annonsene kan være mangelfulle i forhold til lovpålagt opplysningsplikt. Før bindende avtale inngås oppfordres interessenter til å innhente komplett informasjon fra meglerforetaket, selger eller utleier.
































