Bildegalleri

Eiendomsmegler Norge ved Kristian Lossius har gleden av å ønske deg velkommen til Dvergsneslia 9!
Dvergsnes
Påkostet/særegen enebolig med alt på en flate på Dvergsnes. Solrikt uteområde. Meget populært og barnevennlig område.
Prisantydning9 700 000 kr
Nøkkelinfo
- Boligtype
- Enebolig
- Eieform
- Eier (Selveier)
- Soverom
- 3
- Internt bruksareal
- 137 m² (BRA-i)
- Bruksareal
- 145 m²
- Eksternt bruksareal
- 8 m² (BRA-e)
- Balkong/Terrasse
- 29 m² (TBA)
- Byggeår
- 2018
- Energimerking
- B
- Rom
- 4
- Tomteareal
- 453 m² (eiet)
Fasiliteter
Garasje/P-plass
Hage
Kjæledyr tillatt
Peis/Ildsted
Rolig
Turterreng
Om boligen
Eiendomsmegler Norge ved Kristian Lossius har gleden av å ønske deg velkommen til Dvergsneslia 9!
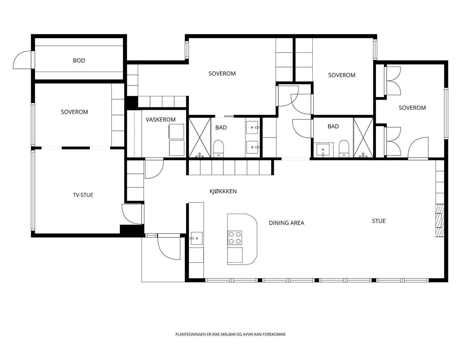
Entrè med skap til oppbevaring. Innredet tv-stue som igjen har inngang til soverom (disse rommene er godkjent til garasje). Praktisk vaskerom med oppbevaring. Lys og lekker stue med raus takhøyde. Koselig peisovn i stue. Fra stuen er det utgang til hage og platting. Stuen er åpen mot lekkert spesiallaget med bue i kjøkkenøy og på vegg over vask. Fra stue er det inngang til soverom 2.
Videre er det inngang til mellomgang som videre fører deg inn til et lekkert gjestebad med eksklusiv utførsel i marmor. Soverom 3 med plass til seng og skap. Hovedsoverom med inngang til eget påkostet bad også eksklusiv og gjennomført utførsel i marmor. Inngang til walk in garderobe.
Utvendig bod.
Entrè med skap til oppbevaring. Innredet tv-stue som igjen har inngang til soverom (disse rommene er godkjent til garasje). Praktisk vaskerom med oppbevaring. Lys og lekker stue med raus takhøyde. Koselig peisovn i stue. Fra stuen er det utgang til hage og platting. Stuen er åpen mot lekkert spesiallaget med bue i kjøkkenøy og på vegg over vask. Fra stue er det inngang til soverom 2.
Videre er det inngang til mellomgang som videre fører deg inn til et lekkert gjestebad med eksklusiv utførsel i marmor. Soverom 3 med plass til seng og skap. Hovedsoverom med inngang til eget påkostet bad også eksklusiv og gjennomført utførsel i marmor. Inngang til walk in garderobe.
Utvendig bod.
NB: Knappen for å vise hele beskrivelsen har kun en visuell effekt.
NB: Knappen for å vise hele beskrivelsen har kun en visuell effekt.
Salgsoppgaven beskriver vesentlig og lovpålagt informasjon om eiendommen
Se komplett salgsoppgaveNyttige lenker
Nærområdet
Eiendomsmegler Norge Kristiansand
Best der du bor
Annonseinformasjon
| FINN-kode | 453751328 |
|---|---|
| Sist endret | 04. mars 2026 14:13 |
| Referanse | 50260087 |
Annonsene kan være mangelfulle i forhold til lovpålagt opplysningsplikt. Før bindende avtale inngås oppfordres interessenter til å innhente komplett informasjon fra meglerforetaket, selger eller utleier.












































