Bildegalleri

Velkommen til Øvre Drognesveg 10E! Foto: Efkt/Bjørn Sørheim
Årnes Hagaskog
Moderne rekkehus fra 2016 m/ 4 sov. og 2 bad | Tre uteplasser, peisovn og vannbåren varme | Carport
Prisantydning4 100 000 kr
Nøkkelinfo
- Boligtype
- Rekkehus
- Eieform
- Eier (Selveier)
- Soverom
- 4
- Internt bruksareal
- 136 m² (BRA-i)
- Bruksareal
- 145 m²
- Eksternt bruksareal
- 9 m² (BRA-e)
- Balkong/Terrasse
- 54 m² (TBA)
- Byggeår
- 2016
- Energimerking
- B
- Tomteareal
- 5 797 m² (eiet)
Visning
søndag, 15. mars
14:00 – 15:00
Ønsker du å delta på visningen ber vi deg melde deg på slik at vi vet at du kommer. Da kan vi bistå alle best mulig og gi deg tiden du trenger på visningen. Visningen avholdes bare dersom det er påmeldte. Ta gjerne kontakt med megler før visning hvis du har noen spørsmål. Velkommen!
VisningspåmeldingOm boligen
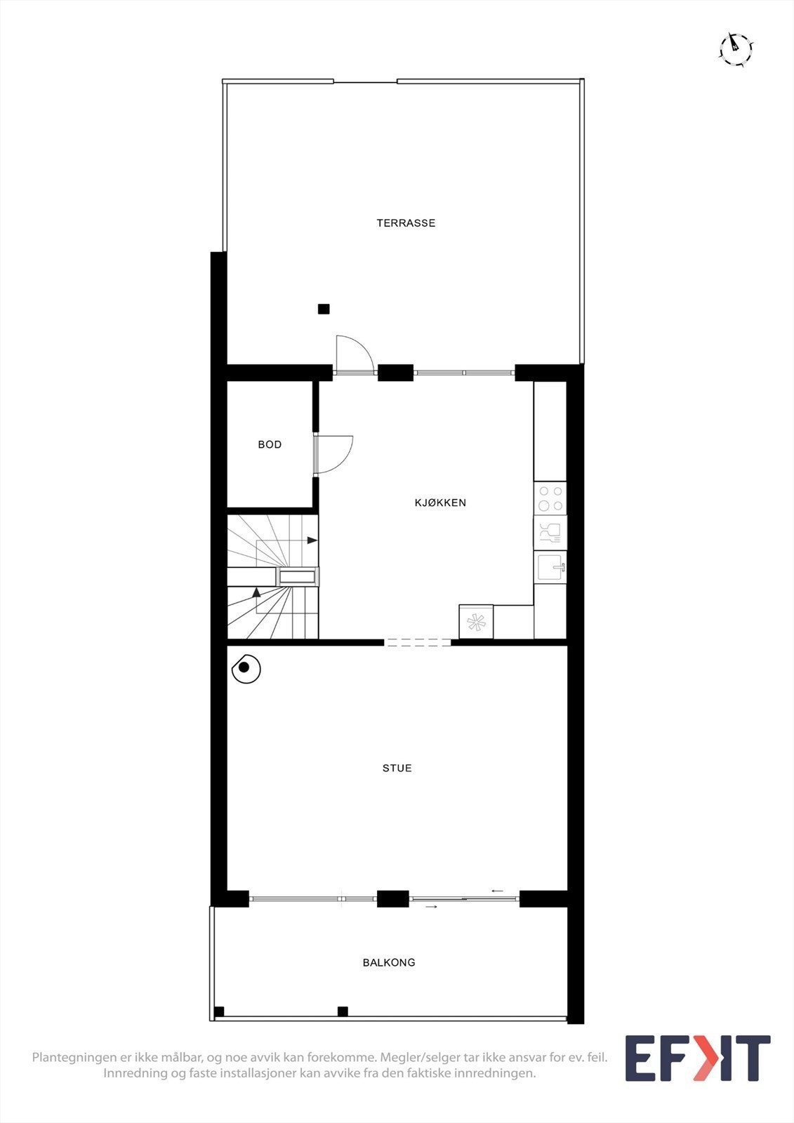
Velkommen til Øvre Drognesveg 10E! Et moderne og innholdsrikt selveier-rekkehus fra 2016 i et familievennlig område.
Her bor du i et trygt og veletablert nabolag med kort vei til alt en aktiv familie trenger, som skog, barnehager og skoler. Boligen har en smart planløsning over tre etasjer, med sosiale soner og utgang til en stor terrasse fra kjøkkenet. To andre balkonger gir rikelig med uteplass, og peisovnen i stuen sørger for ekstra hygge.
Høydepunkter:
- Rekkehus fra 2016 med fire soverom og to bad
- Tre flotte uteplasser, inkludert en terrasse på 30 m²
- Vannbåren varme og balansert ventilasjon
- Kjøkken med integrerte hvitevarer
- Parkering i egen carport og to eksterne boder
Velkommen til visning!
Her bor du i et trygt og veletablert nabolag med kort vei til alt en aktiv familie trenger, som skog, barnehager og skoler. Boligen har en smart planløsning over tre etasjer, med sosiale soner og utgang til en stor terrasse fra kjøkkenet. To andre balkonger gir rikelig med uteplass, og peisovnen i stuen sørger for ekstra hygge.
Høydepunkter:
- Rekkehus fra 2016 med fire soverom og to bad
- Tre flotte uteplasser, inkludert en terrasse på 30 m²
- Vannbåren varme og balansert ventilasjon
- Kjøkken med integrerte hvitevarer
- Parkering i egen carport og to eksterne boder
Velkommen til visning!
NB: Knappen for å vise hele beskrivelsen har kun en visuell effekt.
NB: Knappen for å vise hele beskrivelsen har kun en visuell effekt.
Salgsoppgaven beskriver vesentlig og lovpålagt informasjon om eiendommen
Se komplett salgsoppgaveNyttige lenker
Nærområdet
EiendomsMegler 1 Årnes
Vi loser deg trygt gjennom hele boligsalget
Annonseinformasjon
| FINN-kode | 453722895 |
|---|---|
| Sist endret | 06. mars 2026 13:03 |
| Referanse | 6048260091 |
Annonsene kan være mangelfulle i forhold til lovpålagt opplysningsplikt. Før bindende avtale inngås oppfordres interessenter til å innhente komplett informasjon fra meglerforetaket, selger eller utleier.


































