Bildegalleri

Velkommen til Tastatunet 52! Foto: Arve Gravdal.

Tasta

Leilighet med luftig beliggenhet i 4. etasje | Gode solforhold | IN-ordning | Parkering

Prisantydning2 800 000 kr
Totalpris
3 994 538 kr
Omkostninger
1 350 kr
Fellesgjeld
1 193 188 kr
Felleskost/mnd.
9 087 kr
Fellesformue
34 273 kr
Formuesverdi
812 320 kr

Nøkkelinfo

Boligtype
Leilighet
Eieform
Andel
Soverom
1
Internt bruksareal
58 m² (BRA-i)
Bruksareal
63 m²
Eksternt bruksareal
5 m² (BRA-e)
Balkong/Terrasse
15 m² (TBA)
Etasje
4
Byggeår
2013
Energimerking
C - Lysegrønn
Rom
2
Tomteareal
1 647 m² (eiet)

Les mer om bruksareal her

Fasiliteter

Balkong/Terrasse
Garasje/P-plass
Kabel-TV
Heis
Offentlig vann/kloakk
Parkett
Turterreng
Sentralt
Bredbåndstilknytning
Rolig
Lademulighet
Balansert ventilasjon

Visning

onsdag, 11. mars
16:00 – 17:00
For å yte premium rådgivning, har alle våre visninger påmelding. Dette sikrer at megler har god oversikt og tid til å imøtekomme alle interessenter på aller beste måte. Dersom ingen interessenter er påmeldt, kan visningen bli avlyst.
Visningspåmelding

Om boligen

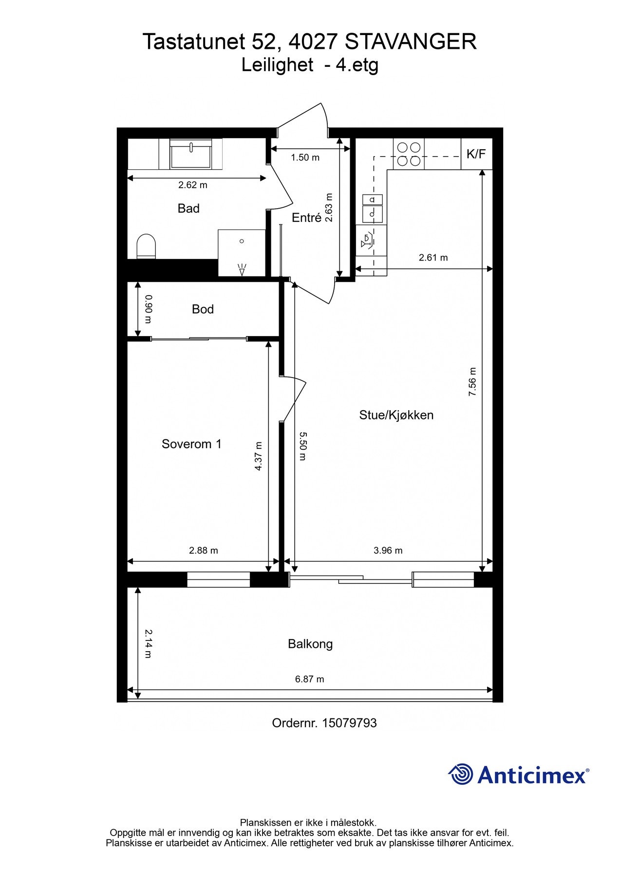
Lys og trivelig leilighet fra 2013 sentralt på Tasta. Beliggenheten i 4. etasje kombinert med takhøyde på nærmere 2,80 m i stue- og kjøkkenområde gir en herlig romfølelse.

Innhold:
Gang, bad, soverom, bod/walk-in closet og stue/kjøkken.

Kort fortalt:
- Lys og luftig leilighet i 4. etasje
- Sørvestvendt balkong på 15 kvm
- God planløsning
- Bod på 5 kvm like over gangen
- Fast parkeringsplass med elbillader
- Heis
- To stk gjestehybler
- Mulighet for å innfri fellesgjeld
- Felleskostnader pr mnd ved nedbetalt fellesgjeld: kr. 2 523,-
- Tastasenteret som nærmeste nabo
- Kort vei til Stokkavannet
- Ca. 4 km til sentrum

Velkommen til visning!

Salgsoppgaven beskriver vesentlig og lovpålagt informasjon om eiendommen

Se komplett salgsoppgave

Nærområdet

Annonseinformasjon

FINN-kode453720087
Sist endret05. mars 2026 10:05
Referanse82260019

Rapporter annonse

Annonsene kan være mangelfulle i forhold til lovpålagt opplysningsplikt. Før bindende avtale inngås oppfordres interessenter til å innhente komplett informasjon fra meglerforetaket, selger eller utleier.