Bildegalleri

EiendomsMegler1 v/Morten Høvik har gleden av presentere Kvernesveien 1253!
Enebolig m/? sokkelleilighet med leieinntekt på 8.700,- pr mnd. - Nydelig utsikt og fine solforhold!
Prisantydning2 490 000 kr
Nøkkelinfo
- Boligtype
- Enebolig
- Eieform
- Eier (Selveier)
- Soverom
- 4
- Internt bruksareal
- 276 m² (BRA-i)
- Bruksareal
- 276 m²
- Balkong/Terrasse
- 29 m² (TBA)
- Byggeår
- 1981
- Energimerking
- D - Gul
- Rom
- 5
- Tomteareal
- 1 638 m² (eiet)
Fasiliteter
Balkong/Terrasse
Garasje/P-plass
Ingen gjenboere
Peis/Ildsted
Turterreng
Utsikt
Visning
onsdag, 11. mars
16:30 – 17:30
Våre visninger har påmelding. Dette gjør vi for å kunne yte bedre service for våre kunder. Verdifullt for boligkjøper og for oss. Vi anbefaler at salgsoppgaven lastes ned digitalt før visning, og ring oss gjerne på forhånd for spørsmål om boligen. Passer ikke angitt tidspunkt, ta kontakt så finner vi en løsning. Skulle det mot formodning ikke være påmeldte til angitt visningstidspunkt vil ikke visning bli gjennomført.
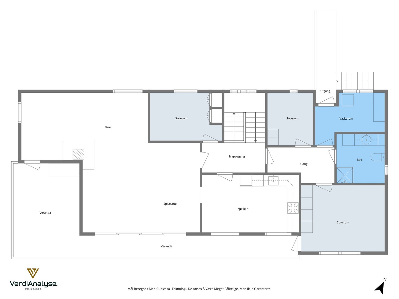
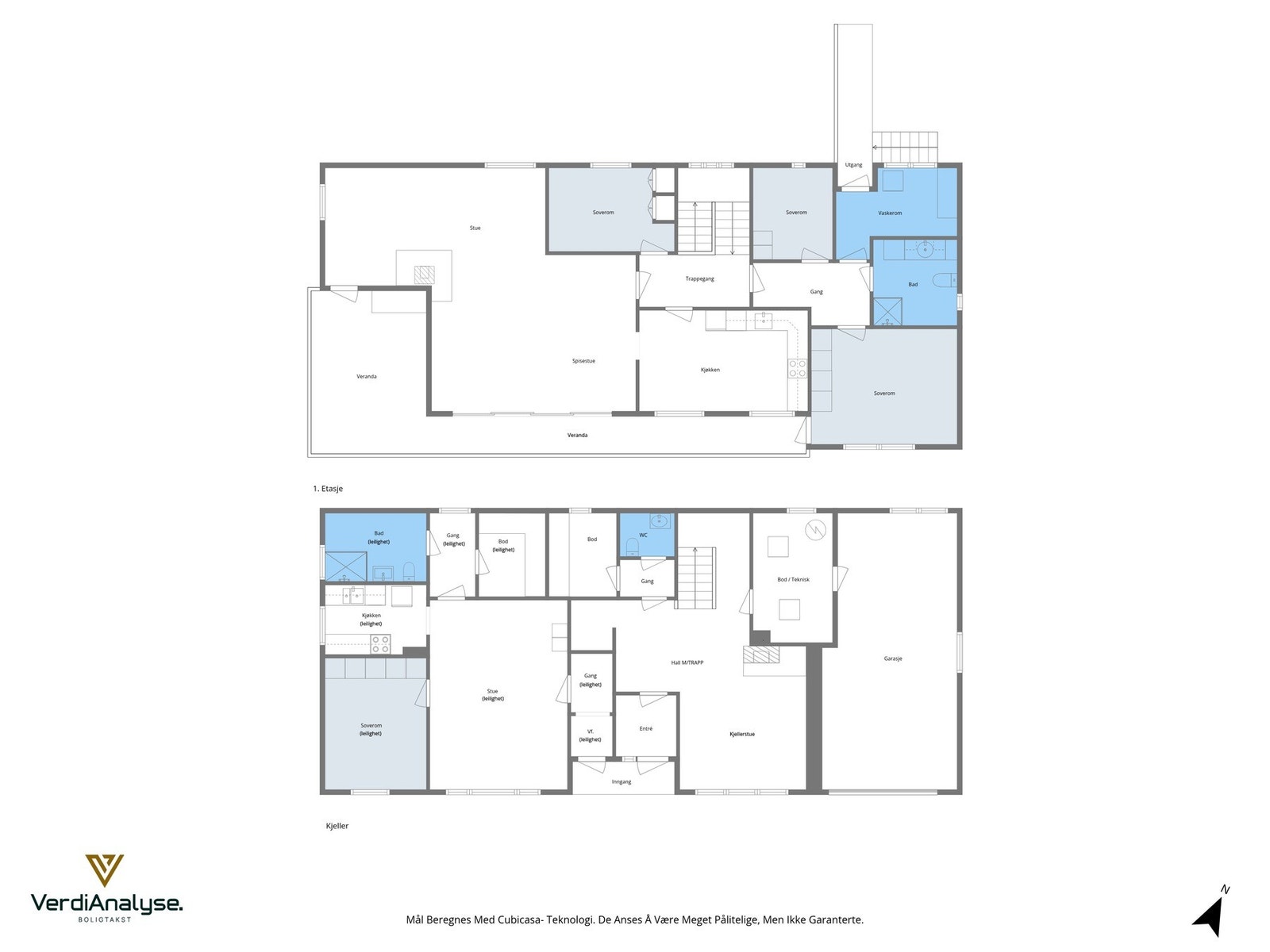
Om boligen
EiendomsMegler 1 v/ Morten Høvik har gleden av å presentere Kvernesveien 1253!
Enebolig m/garasje og sokkelleilighet på Kvernes på Averøy. Solrike omgivelser og fantastisk flott utsikt mot Bergsøya og Krifast! Boligen går over 2 plan, hvor hoveddel inneholder Stue, kjøkken, 3 soverom, bad, vaskerom, toalettrom, bod, bod/teknisk rom, entre, gang- og trappeareal. Utleiedel i sokkel inneholder stue, kjøkken, bad, soverom, bod, gang og vindfang. Kjøkken i hoveddel ble renovert i 2023. På bad i utleiedel ble baderomsplater skiftet i 2023. Bad i hoveddel ble oppgradet i 2017. Boligen blir oppvarmet ved bruk av elektrisk varme og vedovn, samt at både hovedbolig og utleieenhet fikk installert luft/luft-varmepumper i 2023.
Pt. er utleiedelen utleid for 8.710,- pr mnd
Velkommen til visning!
Enebolig m/garasje og sokkelleilighet på Kvernes på Averøy. Solrike omgivelser og fantastisk flott utsikt mot Bergsøya og Krifast! Boligen går over 2 plan, hvor hoveddel inneholder Stue, kjøkken, 3 soverom, bad, vaskerom, toalettrom, bod, bod/teknisk rom, entre, gang- og trappeareal. Utleiedel i sokkel inneholder stue, kjøkken, bad, soverom, bod, gang og vindfang. Kjøkken i hoveddel ble renovert i 2023. På bad i utleiedel ble baderomsplater skiftet i 2023. Bad i hoveddel ble oppgradet i 2017. Boligen blir oppvarmet ved bruk av elektrisk varme og vedovn, samt at både hovedbolig og utleieenhet fikk installert luft/luft-varmepumper i 2023.
Pt. er utleiedelen utleid for 8.710,- pr mnd
Velkommen til visning!
NB: Knappen for å vise hele beskrivelsen har kun en visuell effekt.
NB: Knappen for å vise hele beskrivelsen har kun en visuell effekt.
Salgsoppgaven beskriver vesentlig og lovpålagt informasjon om eiendommen
Se komplett salgsoppgaveNyttige lenker
Nærområdet
EiendomsMegler 1 Kristiansund
Vi loser deg trygt gjennom hele boligsalget
Annonseinformasjon
| FINN-kode | 453636243 |
|---|---|
| Sist endret | 03. mars 2026 16:11 |
| Referanse | 17260059 |
Annonsene kan være mangelfulle i forhold til lovpålagt opplysningsplikt. Før bindende avtale inngås oppfordres interessenter til å innhente komplett informasjon fra meglerforetaket, selger eller utleier.




































