Bildegalleri

Velkommen til Hiltonkroken 2 d,1341 Slependen. Presentert av eiendomsmegler Robert Eckmann v/eiendomsmeglerne.no
SANDVIKA / SLEPENDEN
NY, LEKKER OG UNIK ENEBOLIG PÅ SLEPENDEN - UTLEIEMULIGHET - DBL GARASJE - SOLRIKE BALKONGER/UTSIKT - HAGE
Prisantydning16 980 000 kr
Nøkkelinfo
- Boligtype
- Enebolig
- Eieform
- Eier (Selveier)
- Soverom
- 6
- Internt bruksareal
- 265 m² (BRA-i)
- Bruksareal
- 265 m²
- Balkong/Terrasse
- 30 m² (TBA)
- Etasje
- 3
- Byggeår
- 2025
- Energimerking
- B - Oransje
- Rom
- 3
- Tomteareal
- 712 m² (eiet)
Fasiliteter
Barnevennlig
Balkong/Terrasse
Garasje/P-plass
Offentlig vann/kloakk
Parkett
Turterreng
Utsikt
Sentralt
Moderne
Rolig
Balansert ventilasjon
Visning
søndag, 08. mars
15:30 – 16:15
Meld deg på visning eller kontakt eiendomsmegler for privatvisning.
Visning blir ikke gjennomført uten påmeldte.
mandag, 09. mars
17:30 – 18:15
Meld deg p å visning eller kontakt eiendomsmegler for privatvisning.
Visning blir ikke gjennomført uten påmeldte.
Om boligen
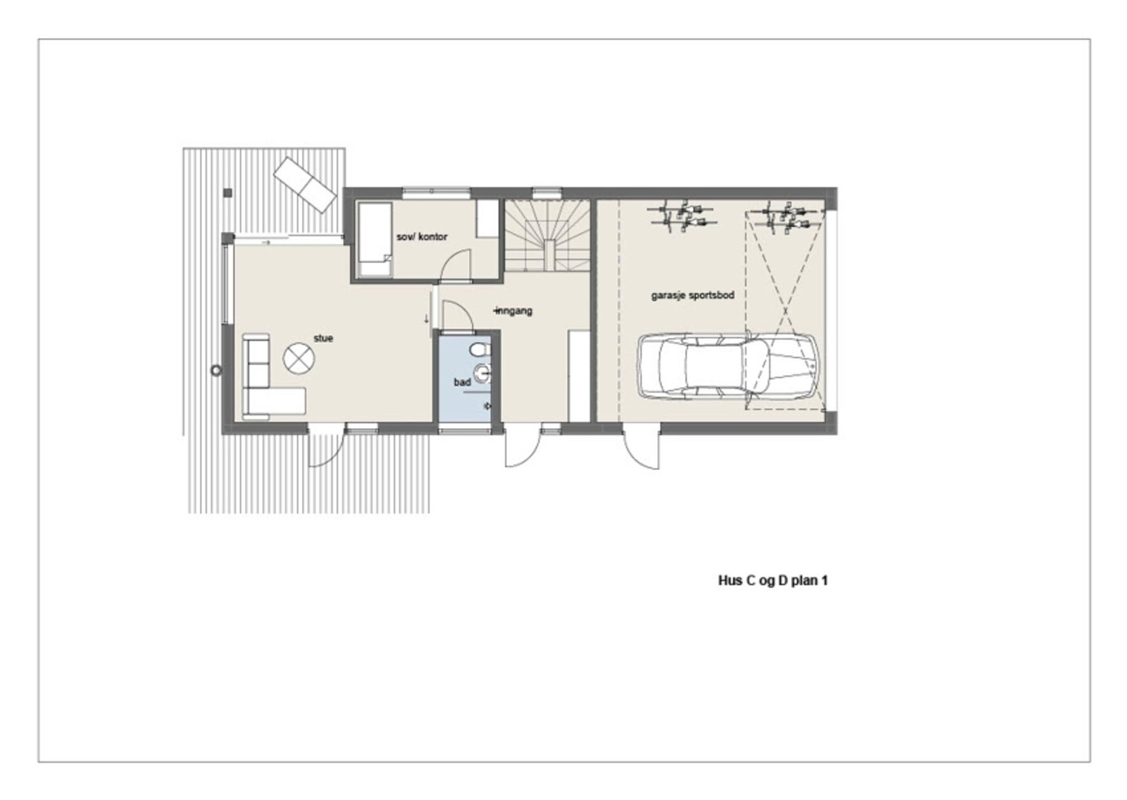
Vi har gleden av å presentere en arkitekttegnet enebolig med dobbelgarasje og utleiemulighet på Slependen.
Tilbaketrukket og barnevennlig beliggende i enden av stikkvei. Nærhet til buss og en rekke flotte tur- og rekreasjonsmuligheter.
Kort avstand til skole, barnehage og dagligvarebutikk. Kort avstand til togstasjonen, ca 5 min gange. Nærhet til Sandvika sentrum.
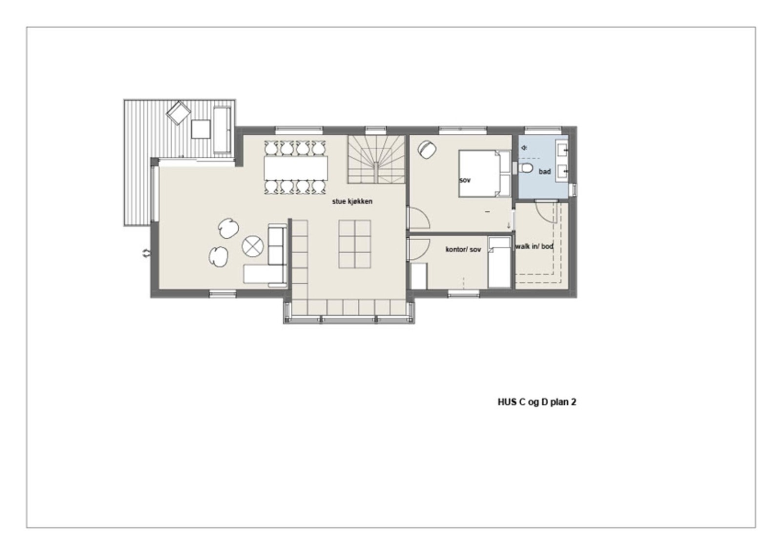
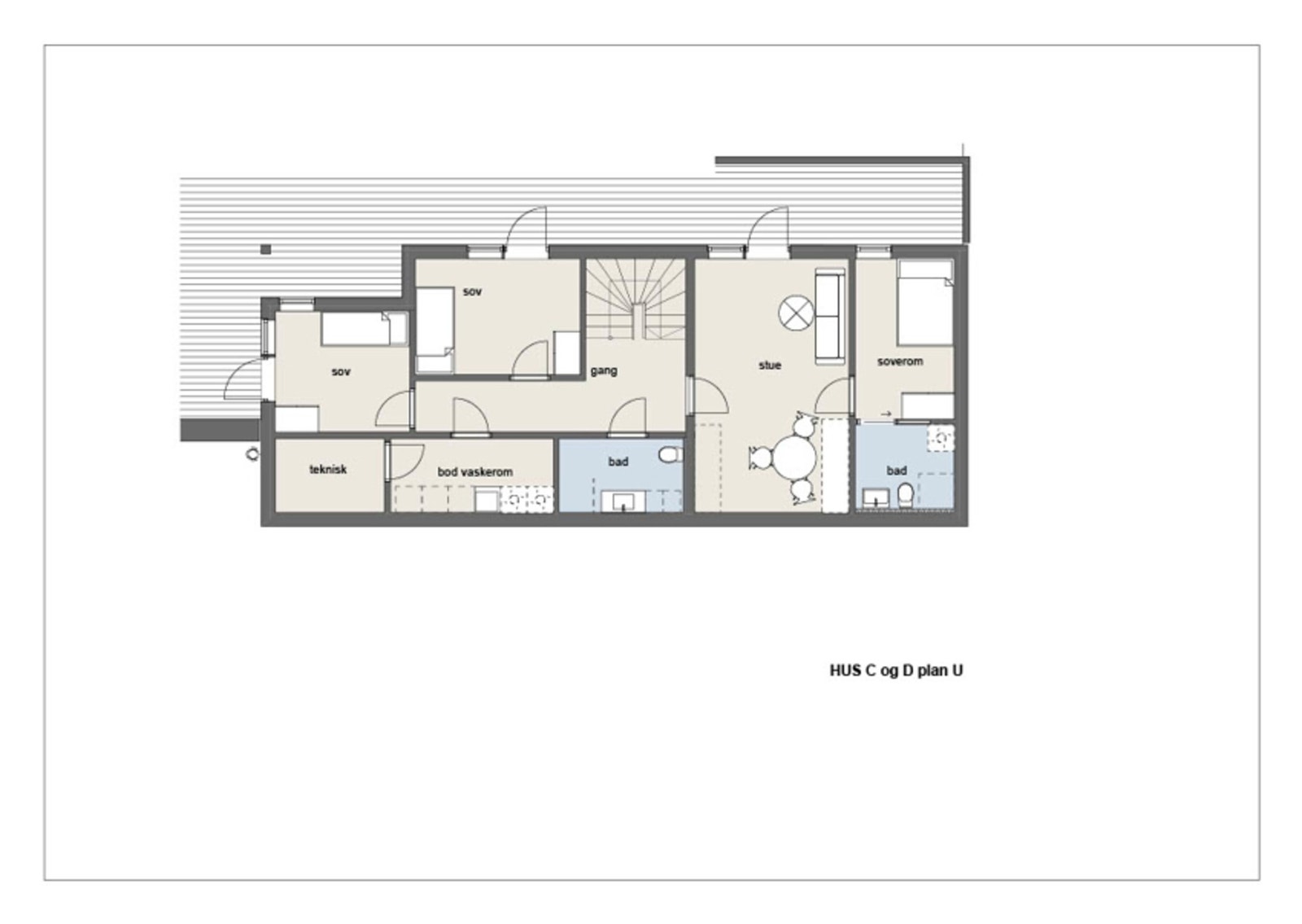
Eneboligen har åpne og lyse oppholdsrom med store vinduer, dansk design kjøkken, 3 bad/wc, vaskerom, 5 sov, kontor, tv-stue og en hyggelig entré. Solrike terrasser med flott utsyn.
Romslig hage med gode solforhold. Barnevennlig og skjermet beliggenhet med lite innsyn og begrenset med gjenboere.
Utsikt mot Kolsåstoppen.
Tilbaketrukket og barnevennlig beliggende i enden av stikkvei. Nærhet til buss og en rekke flotte tur- og rekreasjonsmuligheter.
Kort avstand til skole, barnehage og dagligvarebutikk. Kort avstand til togstasjonen, ca 5 min gange. Nærhet til Sandvika sentrum.
Eneboligen har åpne og lyse oppholdsrom med store vinduer, dansk design kjøkken, 3 bad/wc, vaskerom, 5 sov, kontor, tv-stue og en hyggelig entré. Solrike terrasser med flott utsyn.
Romslig hage med gode solforhold. Barnevennlig og skjermet beliggenhet med lite innsyn og begrenset med gjenboere.
Utsikt mot Kolsåstoppen.
NB: Knappen for å vise hele beskrivelsen har kun en visuell effekt.
NB: Knappen for å vise hele beskrivelsen har kun en visuell effekt.
Salgsoppgaven beskriver vesentlig og lovpålagt informasjon om eiendommen
Se komplett salgsoppgaveNærområdet
Eiendomsmeglerne AS
Erfaring og lokalkunnskap
Annonseinformasjon
| FINN-kode | 453617161 |
|---|---|
| Sist endret | 03. mars 2026 15:52 |
| Referanse | 202260069 |
Annonsene kan være mangelfulle i forhold til lovpålagt opplysningsplikt. Før bindende avtale inngås oppfordres interessenter til å innhente komplett informasjon fra meglerforetaket, selger eller utleier.






































































