Bildegalleri

Velkommen til Kornvegen 78! Presenteres av Kyrre Otto i Eiendomsmegler 1 Jærmegleren. Foto: Eivind Dirdal
Kleppestemmen
Velholdt leilighet med sørvendt terrasse - Store terrasser - 2 soverom
Prisantydning3 490 000 kr
Nøkkelinfo
- Boligtype
- Leilighet
- Eieform
- Eier (Selveier)
- Soverom
- 2
- Internt bruksareal
- 60 m² (BRA-i)
- Bruksareal
- 65 m²
- Eksternt bruksareal
- 5 m² (BRA-e)
- Balkong/Terrasse
- 62 m² (TBA)
- Byggeår
- 2007
- Rom
- 3
- Tomteareal
- 3 955 m² (eiet)
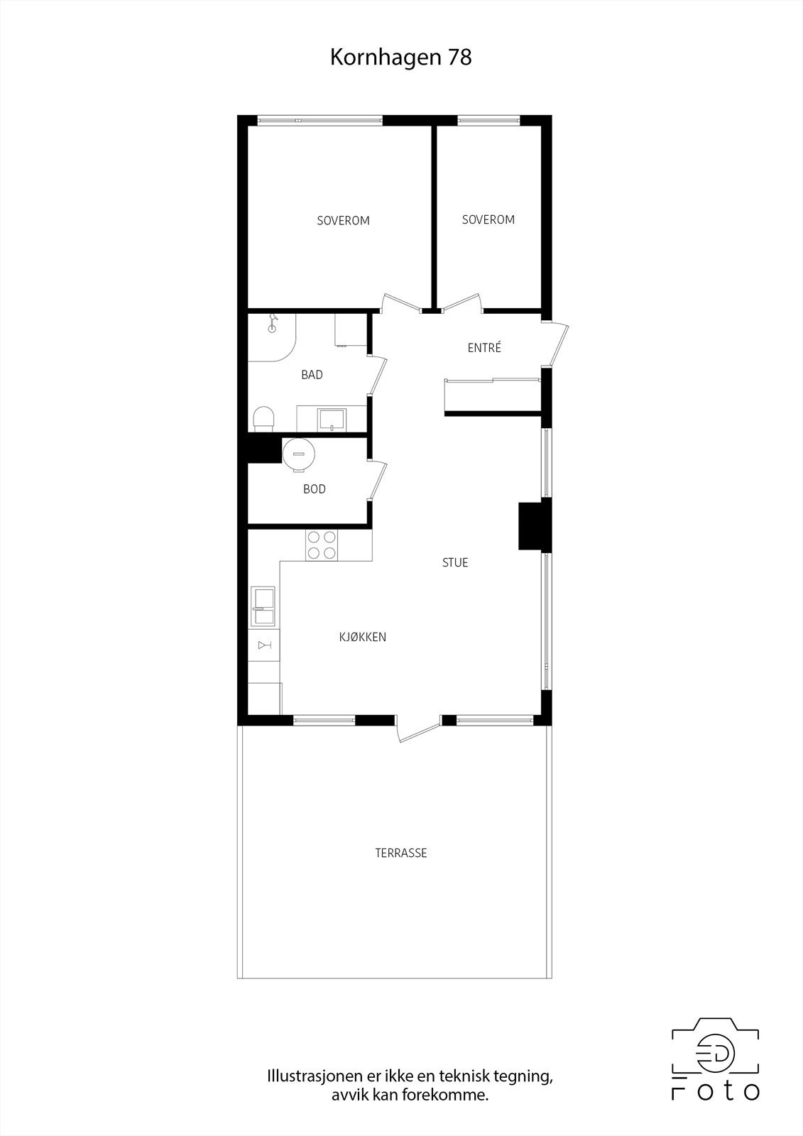
Om boligen
Kornvegen 78 har en attraktiv beliggenhet med skjermet terrasse og hage. Boligen ligger sentralt til i populært området. Boligfeltet består av en fin og jevn fordeling av eneboliger, rekkehus og leiligheter. Barnevennlig område med lekeplass like utenfor og fotballbane tilrettelagt for barn i alle alder. Fra boligen er det gangavstand til flere barnehager, Jærbakeren og Klepp bistro.
Kort om leiligheten
- Praktisk leilighet på bakkeplan
- 2 soverom
- Stue og kjøkken i åpen løsning
- God planløsning
- Skjermet uteområde
Velkommen på visning
Kort om leiligheten
- Praktisk leilighet på bakkeplan
- 2 soverom
- Stue og kjøkken i åpen løsning
- God planløsning
- Skjermet uteområde
Velkommen på visning
NB: Knappen for å vise hele beskrivelsen har kun en visuell effekt.
NB: Knappen for å vise hele beskrivelsen har kun en visuell effekt.
Salgsoppgaven beskriver vesentlig og lovpålagt informasjon om eiendommen
Se komplett salgsoppgaveNyttige lenker
Nærområdet
EiendomsMegler 1 Jærmegleren
En del av Sparebank 1 Sør-Norge
Annonseinformasjon
| FINN-kode | 453613841 |
|---|---|
| Sist endret | 03. mars 2026 13:54 |
| Referanse | 2404260014 |
Annonsene kan være mangelfulle i forhold til lovpålagt opplysningsplikt. Før bindende avtale inngås oppfordres interessenter til å innhente komplett informasjon fra meglerforetaket, selger eller utleier.





























