Bildegalleri

PrivatMegleren har gleden av å presentere Lidvangvegen 15, stor 4-roms leilighet med sentral og attraktiv beliggenhet på Nesbakken. bomull
NESBAKKEN/JEVNAKER SENTRUM
Flott 4-roms | Solrik balkong | Vannbåren fjernvarme | Lave strømutgifter | Gunstig investeringsobjekt
Prisantydning2 250 000 kr
Nøkkelinfo
- Boligtype
- Leilighet
- Eieform
- Eier (Selveier)
- Soverom
- 3
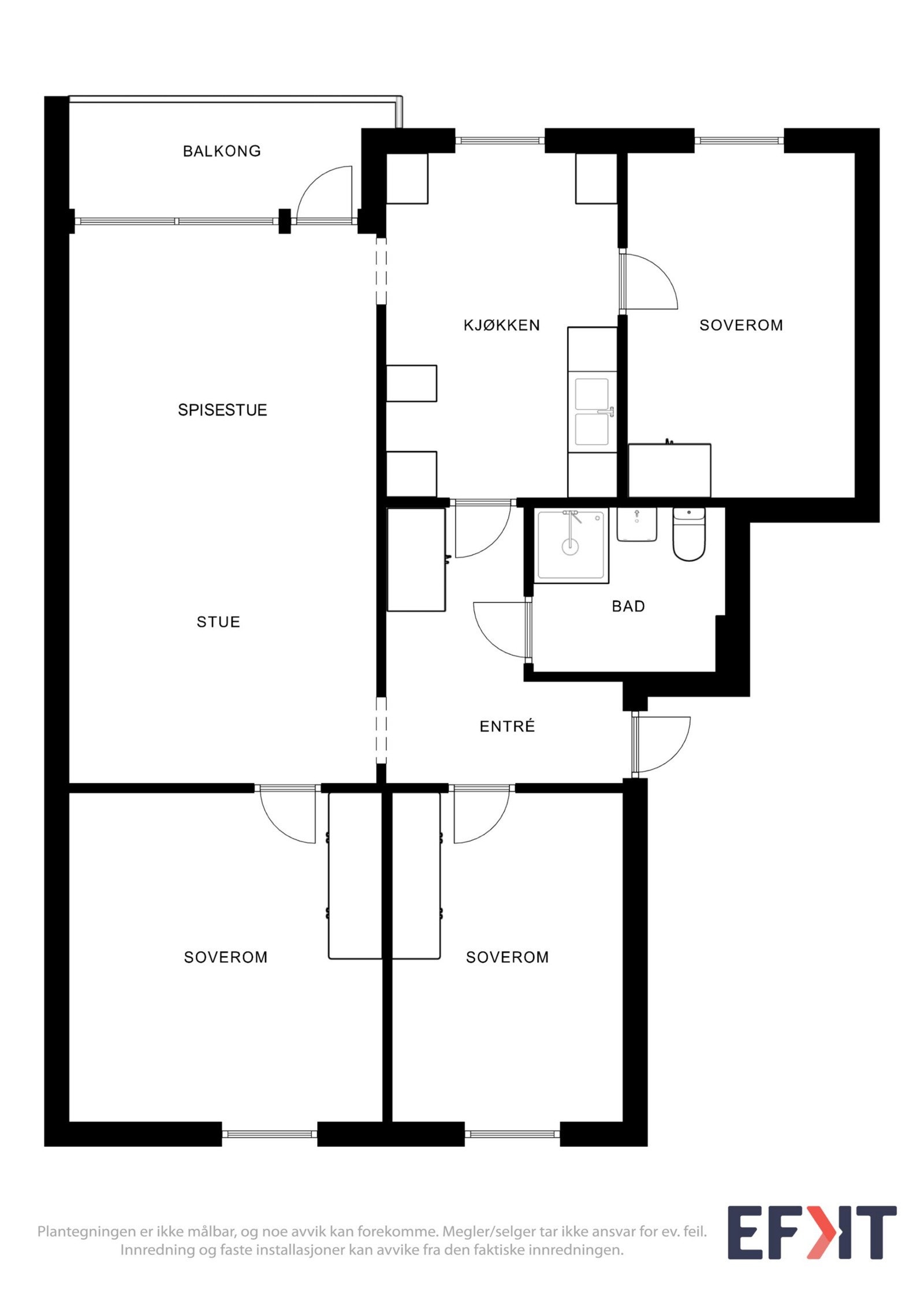
- Internt bruksareal
- 86 m² (BRA-i)
- Bruksareal
- 93 m²
- Eksternt bruksareal
- 7 m² (BRA-e)
- Balkong/Terrasse
- 5 m² (TBA)
- Etasje
- 1
- Byggeår
- 1973
- Energimerking
- E - Mørkegrønn
- Tomteareal
- 3 293 m² (eiet)
Fasiliteter
Balkong/Terrasse
Barnevennlig
Rolig
Sentralt
Garasje/P-plass
Turterreng
Offentlig vann/kloakk
Bredbåndstilknytning
Visning
søndag, 08. mars
17:00 – 17:30
mandag, 09. mars
17:30 – 18:15
Alle våre visninger har påmelding. På denne måten sikrer vi at megler har god oversikt og tid til å imøtekomme alle interessenter på beste måte. Dette er veldig verdifullt for boligkjøpere og for oss. Det er enkelt å melde seg på, og du kan like enkelt melde deg av. Kontakt også gjerne megler i forkant av visning dersom du har spørsmål.
VisningspåmeldingOm boligen
Flott 4-roms selveierleilighet med gjennomgående planløsning med romslige oppholdsrom og fint dagslys. Fra stuen er det utgang til solrik syd-vestvendt balkong med fri utsikt.
- Romslig bod på 7 kvm i kjeller.
- Egen parkering rett utenfor blokken, i tillegg gjesteparkeringer.
- Fjernvarmen som er inkl. i fellesutgiftene gjør at man har lave strømutgifter.
- Fellesutgiftene dekker bl.a. oppvarming, forbruk vann/avløp, varmtvann, vask av trappeganger, brøyting m.m.
- Perfekt beliggenhet på Nesbakken med kun 50 meter til Rema, apotek, vinmonopol og restaurant.
- Kort gangavstand til sentrum med det meste av fasiliteter og bussforbindelser.
NB: Knappen for å vise hele beskrivelsen har kun en visuell effekt.
NB: Knappen for å vise hele beskrivelsen har kun en visuell effekt.
Salgsoppgaven beskriver vesentlig og lovpålagt informasjon om eiendommen
Se komplett salgsoppgaveNyttige lenker
Nærområdet

PrivatMegleren Park
Kun det beste på dine vegne
Annonsene kan være mangelfulle i forhold til lovpålagt opplysningsplikt. Før bindende avtale inngås oppfordres interessenter til å innhente komplett informasjon fra meglerforetaket, selger eller utleier.





















