Bildegalleri

EiendomsMegler1 ved Markus Tangvik har gleden av å presentere en nydelig og urban 2-roms leilighet i Nygata 12.
Bakklandet
SÆRDELES FLOTT 2-ROMS HJØRNELEILIGHET FRA 1993 MED PARKERING. Oppgradert 2012-2026. Ingen dok.avgift. Nært NTNU.
Prisantydning3 590 000 kr
Nøkkelinfo
- Boligtype
- Leilighet
- Eieform
- Andel
- Soverom
- 1
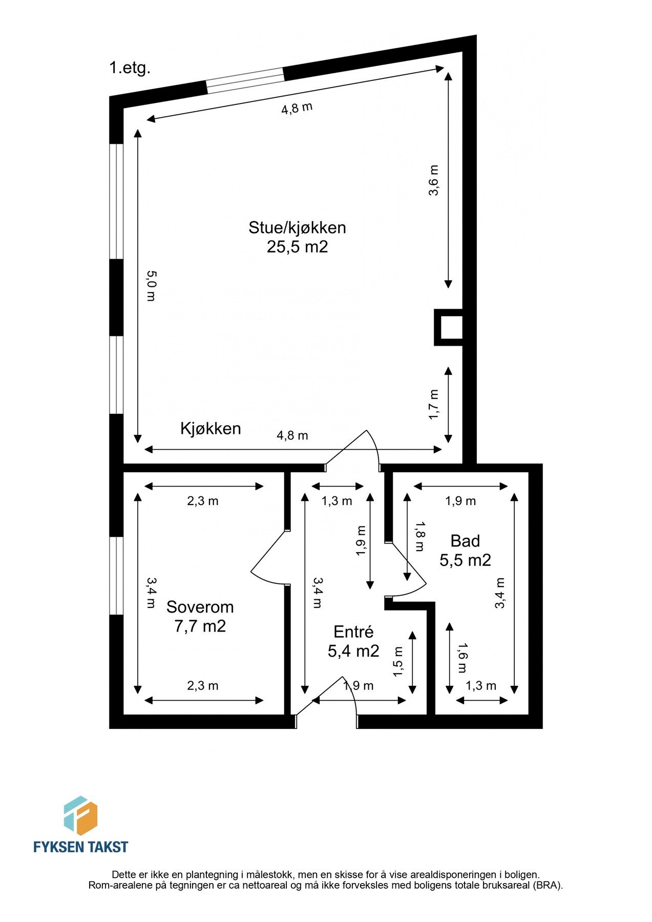
- Internt bruksareal
- 46 m² (BRA-i)
- Bruksareal
- 48 m²
- Eksternt bruksareal
- 2 m² (BRA-e)
- Etasje
- 1
- Byggeår
- 1993
- Energimerking
- D - Gul
- Rom
- 2
- Tomteareal
- 585 m² (eiet)
Fasiliteter
Barnevennlig
Garasje/P-plass
Offentlig vann/kloakk
Parkett
Turterreng
Sentralt
Moderne
Rolig
Lademulighet
Visning
onsdag, 11. mars
16:30 – 17:15
Våre visninger har påmelding. Dette gjør vi for å kunne yte bedre service for våre kunder. Verdifullt for boligkjøper og for oss. Vi anbefaler at salgsoppgaven lastes ned digitalt før visning, og ring oss gjerne på forhånd for spørsmål om boligen. Passer ikke angitt tidspunkt, ta kontakt så finner vi en løsning. Skulle det mot formodning ikke være påmeldte til angitt visningstidspunkt vil ikke visning bli gjennomført.
Om boligen
EiendomsMegler1 ved Markus Tangvik har gleden av å presentere en stilren 2-roms hjørneleilighet i Nygata 12 på Bakklandet. Leiligheten har byggeår fra 1993 og har en attraktiv beliggenhet på idylliske Bakklandet. Her får du en urban og nydelig hjørneleilighet med fine oppholdsrom og parkering.
Kvaliteter:
- Nydelig 2-roms leilighet fra 1993 med ypperlig beliggenhet på Bakklandet.
- Leiligheten disponerer egen parkeringsplass.
- Pen stue med store vindusflater og nytt parkettgulv fra 2017.
- Nydelig kjøkken som ble oppusset med ny innredning, ventilator, platetopp og stekeovn i 2013. Fronter og benkeplater ble overflatebehandlet og nytt blandebatteri ble montert i 2021
- Lyst baderom med opplegg for vaskemaskin. Varmtvannsbereder ble byttet i 2012, nytt toalett i 2024 og nytt dusjgarnityr og baderomsinnredning fra 2026.
- Bod i bakgård, samt fine fellesarealer med hyggelig uteplass.
- Ingen dok.avgift.
- Nært NTNU og Solsiden.
Velkommen!
Kvaliteter:
- Nydelig 2-roms leilighet fra 1993 med ypperlig beliggenhet på Bakklandet.
- Leiligheten disponerer egen parkeringsplass.
- Pen stue med store vindusflater og nytt parkettgulv fra 2017.
- Nydelig kjøkken som ble oppusset med ny innredning, ventilator, platetopp og stekeovn i 2013. Fronter og benkeplater ble overflatebehandlet og nytt blandebatteri ble montert i 2021
- Lyst baderom med opplegg for vaskemaskin. Varmtvannsbereder ble byttet i 2012, nytt toalett i 2024 og nytt dusjgarnityr og baderomsinnredning fra 2026.
- Bod i bakgård, samt fine fellesarealer med hyggelig uteplass.
- Ingen dok.avgift.
- Nært NTNU og Solsiden.
Velkommen!
NB: Knappen for å vise hele beskrivelsen har kun en visuell effekt.
NB: Knappen for å vise hele beskrivelsen har kun en visuell effekt.
Salgsoppgaven beskriver vesentlig og lovpålagt informasjon om eiendommen
Se komplett salgsoppgaveNærområdet
EiendomsMegler 1 Trondheim sentrum, Kongens gate
Vi loser deg trygt gjennom hele boligsalget
Annonseinformasjon
| FINN-kode | 453576666 |
|---|---|
| Sist endret | 03. mars 2026 13:07 |
| Referanse | 32260044 |
Annonsene kan være mangelfulle i forhold til lovpålagt opplysningsplikt. Før bindende avtale inngås oppfordres interessenter til å innhente komplett informasjon fra meglerforetaket, selger eller utleier.

























