Bildegalleri

Foto: Joakim Bjerk. EiendomsMegler1 v/Torill Kalsaas presenterer Solåsveien 36
SOLÅS
Enebolig med potensiale på stor tomt - Gode solforhold - Sentralt - Garasje
Prisantydning4 900 000 kr
Nøkkelinfo
- Boligtype
- Enebolig
- Eieform
- Eier (Selveier)
- Soverom
- 3
- Internt bruksareal
- 169 m² (BRA-i)
- Bruksareal
- 192 m²
- Eksternt bruksareal
- 23 m² (BRA-e)
- Balkong/Terrasse
- 17 m² (TBA)
- Byggeår
- 1967
- Rom
- 4
- Tomteareal
- 934 m² (eiet)
Fasiliteter
Balkong/Terrasse
Barnevennlig
Garasje/P-plass
Hage
Rolig
Sentralt
Turterreng
Visning
mandag, 09. mars
16:00 – 17:00
Ønsker du å delta på visningen ber vi deg melde deg på slik at vi vet at du kommer. Da kan vi bistå alle best mulig og gi deg tiden du trenger på visningen. Kontakt gjerne megler før visning hvis du har spørsmål. Visningen avholdes bare dersom det er påmeldte. Hvis det ikke er oppsatt visningstidspunkt eller tidspunkt ikke passer, kontakt megler.
VisningspåmeldingOm boligen
Solåsveien 36 er en kjekk enebolig med potensiale og etterspurt beliggenhet på Solås. Boligen er godt ivaretatt med blant annet nye vinduer i hovedetasjen og tak skiftet etter byggeår. Men oppgraderinger må påregnes.
Boligen har bra planløsning og kjeller med god takhøyde. En god familiebolig som gir deg enkel hverdagslogistikk. Velholdt hage med gode solforhold. En fin enebolig som har et supert utgangspunkt for modernisering, en sjelden mulighet i dette området!
Kjeller: 4 uinnredet kjellerrom, gang, soverom (ikke godkjent), hobbyrom, vaskerom.
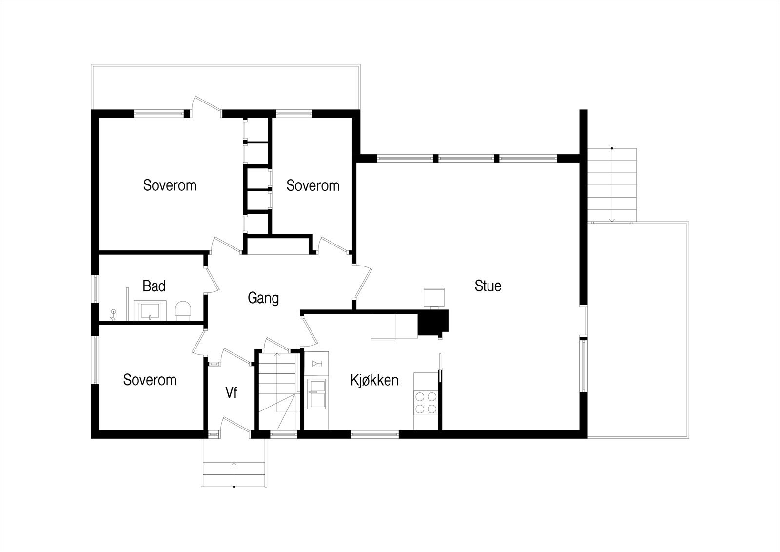
1. etasje: Stue, 3 soverom, bad, gang, entré, kjøkken.
Fantastiske fritidstilbud på sentralidrettsanlegget hvor alle idrettstilbud er samlet på ett sted. Nydelige turområder og bademuligheter i nærheten.
Boligen har bra planløsning og kjeller med god takhøyde. En god familiebolig som gir deg enkel hverdagslogistikk. Velholdt hage med gode solforhold. En fin enebolig som har et supert utgangspunkt for modernisering, en sjelden mulighet i dette området!
Kjeller: 4 uinnredet kjellerrom, gang, soverom (ikke godkjent), hobbyrom, vaskerom.
1. etasje: Stue, 3 soverom, bad, gang, entré, kjøkken.
Fantastiske fritidstilbud på sentralidrettsanlegget hvor alle idrettstilbud er samlet på ett sted. Nydelige turområder og bademuligheter i nærheten.
NB: Knappen for å vise hele beskrivelsen har kun en visuell effekt.
NB: Knappen for å vise hele beskrivelsen har kun en visuell effekt.
Salgsoppgaven beskriver vesentlig og lovpålagt informasjon om eiendommen
Se komplett salgsoppgaveNyttige lenker
Nærområdet
EiendomsMegler 1 Gjesdal
Vi er der du er - EiendomsMegler 1
Annonseinformasjon
| FINN-kode | 453570266 |
|---|---|
| Sist endret | 03. mars 2026 12:01 |
| Referanse | 2402260028 |
Annonsene kan være mangelfulle i forhold til lovpålagt opplysningsplikt. Før bindende avtale inngås oppfordres interessenter til å innhente komplett informasjon fra meglerforetaket, selger eller utleier.

































