Bildegalleri

Velkommen til Spannatoppen 63!
Særdeles flott rekkehus på populære Spannatoppen - 2 bad og 3 soverom - Carport, elbil lader og flere terrasser!
Prisantydning4 990 000 kr
Nøkkelinfo
- Boligtype
- Rekkehus
- Eieform
- Eier (Selveier)
- Soverom
- 3
- Internt bruksareal
- 130 m² (BRA-i)
- Bruksareal
- 143 m²
- Eksternt bruksareal
- 13 m² (BRA-e)
- Balkong/Terrasse
- 84 m² (TBA)
- Etasje
- 2
- Byggeår
- 2021
- Energimerking
- B
- Rom
- 4
- Tomteareal
- 1 196 m² (eiet)
Fasiliteter
Aircondition
Balkong/Terrasse
Barnevennlig
Bredbåndstilknytning
Garasje/P-plass
Kjæledyr tillatt
Ingen gjenboere
Offentlig vann/kloakk
Peis/Ildsted
Rolig
Utsikt
Turterreng
Lademulighet
Balansert ventilasjon
Visning
torsdag, 12. mars
16:15 – 17:15
Eiendomsmegler Norge sine visninger har påmelding. Påmelding gjøres enkelt ved å benytte knappen under. Ta kontakt med megler dersom oppsatt tidspunkt ikke passer. Det vil ikke bli avholdt visning uten påmelding, frist for påmelding er senest kl. 12.00 på visningsdagen. Husk å laste ned salgsoppgaven digitalt før visning. Velkommen til en hyggelig visning!
VisningspåmeldingOm boligen
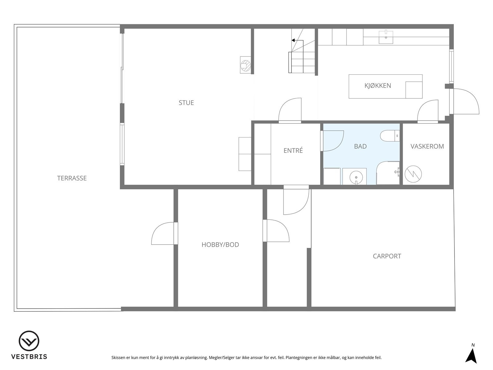
Velkommen til Spannatoppen 63 - Moderne og innholdsrik rekkehus fra 2021, betydelig oppgradert utover standard leveranse.
Her får du en gjennomført og velutstyrt bolig med smarte og funksjonelle løsninger. Boligen går over to plan og byr blant annet på romslig stue, kjøkken, tre soverom og to bad. Utvendig finner du solrike uteplasser, pent opparbeidet inngangsparti, carport med elbillader samt direkte adkomst til en stor, isolert bod.
På Spanne er det kort avstand til skole, barnehager og alle fasilitetene på Oasen Storsenter, Norheim industripark og Raglamyr. Turmulighetene er også mange!
Velkommen til visning!
Her får du en gjennomført og velutstyrt bolig med smarte og funksjonelle løsninger. Boligen går over to plan og byr blant annet på romslig stue, kjøkken, tre soverom og to bad. Utvendig finner du solrike uteplasser, pent opparbeidet inngangsparti, carport med elbillader samt direkte adkomst til en stor, isolert bod.
På Spanne er det kort avstand til skole, barnehager og alle fasilitetene på Oasen Storsenter, Norheim industripark og Raglamyr. Turmulighetene er også mange!
Velkommen til visning!
NB: Knappen for å vise hele beskrivelsen har kun en visuell effekt.
NB: Knappen for å vise hele beskrivelsen har kun en visuell effekt.
Salgsoppgaven beskriver vesentlig og lovpålagt informasjon om eiendommen
Se komplett salgsoppgaveNyttige lenker
Nærområdet
Eiendomsmegler Norge Haugesund
Best der du bor
Annonseinformasjon
| FINN-kode | 453568001 |
|---|---|
| Sist endret | 04. mars 2026 12:53 |
| Referanse | 19260040 |
Annonsene kan være mangelfulle i forhold til lovpålagt opplysningsplikt. Før bindende avtale inngås oppfordres interessenter til å innhente komplett informasjon fra meglerforetaket, selger eller utleier.






























