Bildegalleri

Velkommen til Rosenvinges Vei 30 - presentert av Eiendomsmegler1 v/ Anders N. Ruud
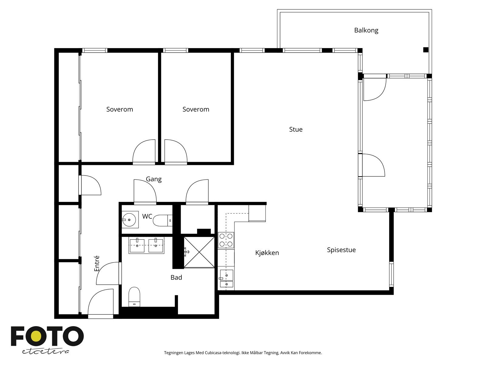
Moderne 3-roms fra 2021 i 5. etg. m/ heis og garasjeplass. | Balkong og privat parsell på takterrasse
Prisantydning7 100 000 kr
Nøkkelinfo
- Boligtype
- Leilighet
- Eieform
- Eier (Selveier)
- Soverom
- 2
- Internt bruksareal
- 97 m² (BRA-i)
- Bruksareal
- 113 m²
- Eksternt bruksareal
- 5 m² (BRA-e)
- Innglasset balkong
- 11 m² (BRA-b)
- Balkong/Terrasse
- 22 m² (TBA)
- Byggeår
- 2021
- Energimerking
- A
- Rom
- 3
- Tomteareal
- 2 285 m² (eiet)
Fasiliteter
Balkong/Terrasse
Barnevennlig
Garasje/P-plass
Heis
Rolig
Sentralt
Visning
onsdag, 11. mars
17:00 – 18:00
Ønsker du å delta på visningen, ber vi om at du melder deg på slik at vi vet at du kommer. Da kan vi orientere deg om bud og bistå alle, samt gi deg tiden du trenger på visning. Passer ikke angitt tidspunkt, så finner vi en løsning. Ta kontakt med megler om du har noen spørsmål på: 980 94 927. Velkommen!
VisningspåmeldingOm boligen
Velkommen til Rosenvinges Vei 30! En moderne og lettstelt 3-roms selveierleilighet fra 2021 med herlige uteplasser.
Dette er en gjennomført leilighet med effektiv planløsning og høy standard. Den åpne stue- og kjøkkenløsningen gir en lys og luftig atmosfære, med utgang til en innglasset balkong som forlenger sesongen, og videre til enda en uteplass. Komforten sikres med vannbåren gulvvarme i alle rom, og bygget har heis for enkel adkomst.
Høydepunkter:
Dette er en gjennomført leilighet med effektiv planløsning og høy standard. Den åpne stue- og kjøkkenløsningen gir en lys og luftig atmosfære, med utgang til en innglasset balkong som forlenger sesongen, og videre til enda en uteplass. Komforten sikres med vannbåren gulvvarme i alle rom, og bygget har heis for enkel adkomst.
Høydepunkter:
- Nyere selveier fra 2021
- Heis, garasjeplass og bod på 5 m²
- Vannbåren gulvvarme og balansert ventilasjon
- Ingen fellesgjeld
- Moderne kjøkken med integrerte hvitevarer
- Kabel-TV inkludert i felleskostnadene
Velkommen til visning!
NB: Knappen for å vise hele beskrivelsen har kun en visuell effekt.
NB: Knappen for å vise hele beskrivelsen har kun en visuell effekt.
Salgsoppgaven beskriver vesentlig og lovpålagt informasjon om eiendommen
Se komplett salgsoppgaveNyttige lenker
Nærområdet
EiendomsMegler 1 Moss
Vi loser deg trygt gjennom hele boligsalget
Annonseinformasjon
| FINN-kode | 453562952 |
|---|---|
| Sist endret | 04. mars 2026 09:37 |
| Referanse | 5230260018 |
Annonsene kan være mangelfulle i forhold til lovpålagt opplysningsplikt. Før bindende avtale inngås oppfordres interessenter til å innhente komplett informasjon fra meglerforetaket, selger eller utleier.






























