Bildegalleri

Tor André Selåsdal og EIE eiendomsmegling ønsker velkommen til Rosenvolds gate 26
Stor villa i et attraktivt område rett utenfor sentrumskjernen | Stort potensiale for utleie
Prisantydning4 690 000 kr
Nøkkelinfo
- Boligtype
- Enebolig
- Eieform
- Eier (Selveier)
- Soverom
- 4
- Internt bruksareal
- 226 m² (BRA-i)
- Bruksareal
- 226 m²
- Balkong/Terrasse
- 7 m² (TBA)
- Byggeår
- 1923
- Energimerking
- D - Gul
- Tomteareal
- 558 m² (eiet)
Fasiliteter
Barnevennlig
Balkong/Terrasse
Offentlig vann/kloakk
Parkett
Peis/Ildsted
Sentralt
Bredbåndstilknytning
Moderne
Rolig
Om boligen
EIE Eiendomsmegling ønsker velkommen til Rosenvolds gate 26 - en stor villa på to plan + kjeller og en attraktiv, sentral beliggenhet.
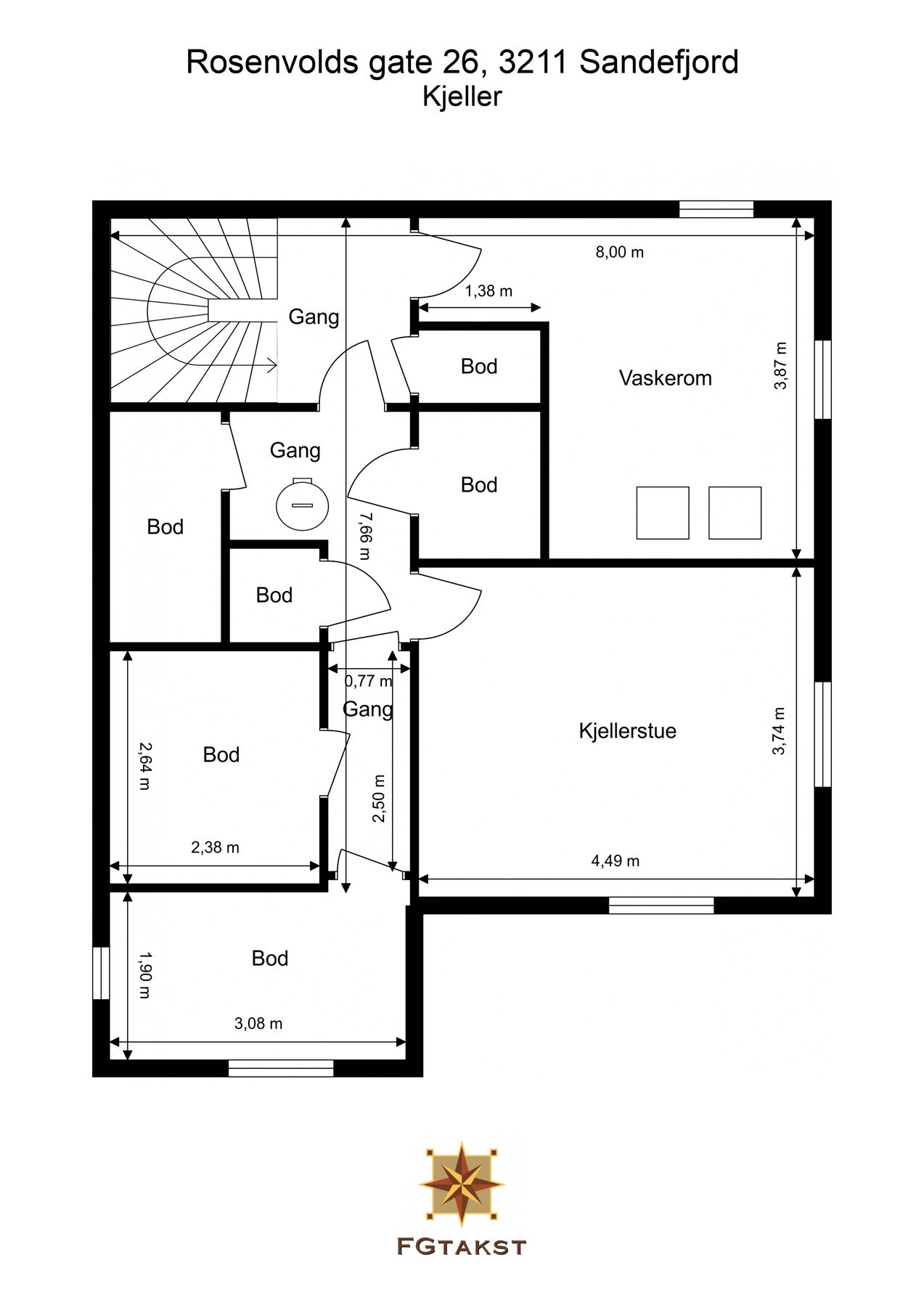
Begge etasjene er innredet med stue og kjøkken i åpen løsning, to soverom og flislagt bad. Begge etasjene har gode lagringsmuligheter på hhv. loft og i kjeller. Overflatene ble malt i 2021, og gulvet i 1. etasje ble fornyet samme år, noe som gir et oppdatert og innbydende uttrykk. Peisovn i stuen sørger for lun og behagelig varme, mens store vindusflater slipper inn rikelig med naturlig lys.
Eiendommen ligger på en romslig tomt med grøntarealer som kan nytes i sommerhalvåret, samt gode parkeringsmuligheter på egen grunn.
I Nybyen bor du med gangavstand til det meste - kort vei til bykjernen, Indre Havn med badeanlegg, Badeparken og Bugårdsparken. I tillegg er det kun få minutters gange til jernbane og bussterminal, noe som gjør hverdagen enkel og fleksibel.
Velkommen til visning!
Begge etasjene er innredet med stue og kjøkken i åpen løsning, to soverom og flislagt bad. Begge etasjene har gode lagringsmuligheter på hhv. loft og i kjeller. Overflatene ble malt i 2021, og gulvet i 1. etasje ble fornyet samme år, noe som gir et oppdatert og innbydende uttrykk. Peisovn i stuen sørger for lun og behagelig varme, mens store vindusflater slipper inn rikelig med naturlig lys.
Eiendommen ligger på en romslig tomt med grøntarealer som kan nytes i sommerhalvåret, samt gode parkeringsmuligheter på egen grunn.
I Nybyen bor du med gangavstand til det meste - kort vei til bykjernen, Indre Havn med badeanlegg, Badeparken og Bugårdsparken. I tillegg er det kun få minutters gange til jernbane og bussterminal, noe som gjør hverdagen enkel og fleksibel.
Velkommen til visning!
NB: Knappen for å vise hele beskrivelsen har kun en visuell effekt.
NB: Knappen for å vise hele beskrivelsen har kun en visuell effekt.
Salgsoppgaven beskriver vesentlig og lovpålagt informasjon om eiendommen
Se komplett salgsoppgaveNyttige lenker
Nærområdet
EIE eiendomsmegling Sandefjord
Annonseinformasjon
| FINN-kode | 453522482 |
|---|---|
| Sist endret | 04. mars 2026 17:45 |
| Referanse | 87260022 |
Annonsene kan være mangelfulle i forhold til lovpålagt opplysningsplikt. Før bindende avtale inngås oppfordres interessenter til å innhente komplett informasjon fra meglerforetaket, selger eller utleier.





























































