Bildegalleri

Velkommen til Guri Øverbys veg 20!
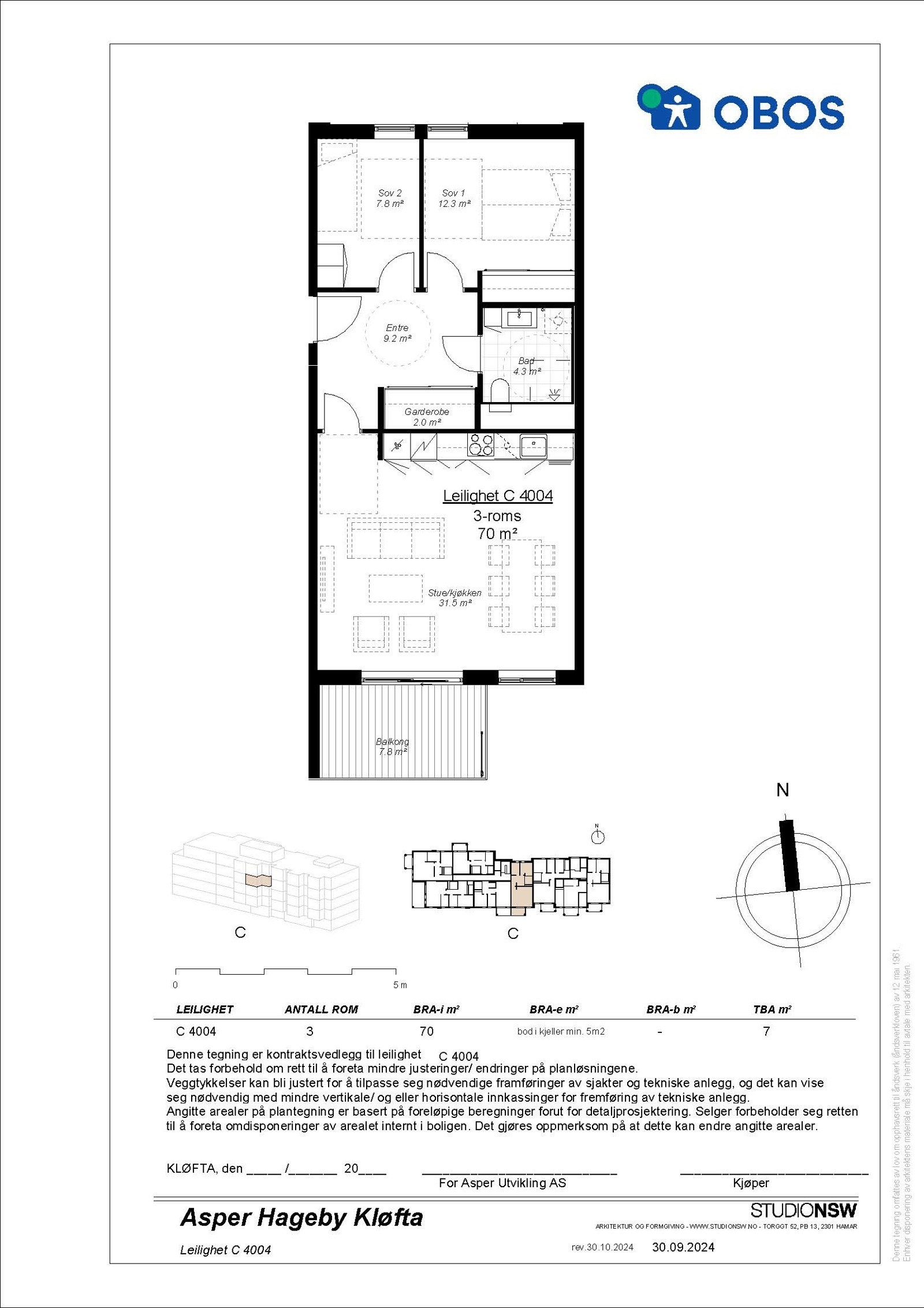
Asper Hageby / Kløfta
Nyoppført og moderne 3-roms leilighet fra 2026 | Innflytningsklar | Garasjeplass | Vannbåren varme | IN-ordning
Prisantydning2 168 000 kr
Nøkkelinfo
- Boligtype
- Leilighet
- Eieform
- Andel
- Soverom
- 2
- Internt bruksareal
- 70 m² (BRA-i)
- Bruksareal
- 75 m²
- Eksternt bruksareal
- 5 m² (BRA-e)
- Balkong/Terrasse
- 7 m² (TBA)
- Etasje
- 4
- Byggeår
- 2026
- Energimerking
- A - Gul
- Rom
- 3
- Tomteareal
- 921 m² (eiet)
Fasiliteter
Balkong/Terrasse
Parkett
Heis
Ingen gjenboere
Barnevennlig
Rolig
Kabel-TV
Moderne
Sentralt
Garasje/P-plass
Turterreng
Offentlig vann/kloakk
Vaktmester-/vektertjeneste
Bredbåndstilknytning
Visning
mandag, 09. mars
17:30 – 18:00
Alle våre visninger har påmelding. På denne måten sikrer vi at megler har god oversikt og tid til å imøtekomme alle interessenter på beste måte. Dette er veldig verdifullt for boligkjøpere og for oss. Det er enkelt å melde seg på, og du kan like enkelt melde deg av.
Kontakt også gjerne megler i forkant av visning dersom du har spørsmål.
VisningspåmeldingOm boligen
Nyoppført og moderne 3-roms leilighet i det nye og attraktive prosjektet Asper Hageby på Kløfta - ferdigstilt i 2026! Leiligheten har en svært god internbeliggenhet i byggets 4. etasje med fine solfrohold og utsyn over nærområdet.
Kort fortalt:
- HTH-kjøkken med integrerte hvitevarer.
- Sydvendt balkong på ca. 7 kvm.
- Sportsbod i kjeller.
- Parkeringsplass i garasjeanlegg.
- Mulighet for elbil-lader.
- IN-ordning (individuell nedbetaling) på sikt: Mulighet for nedbetaling av fellesgjeld.
- 5 års avdragsfrihet på fellesgjeld.
- Ved full innfrielse av fellesgjeld vil felleskostnadene utgjøre kr. 3 348,- pr mnd.
- Mulighet for rask overtagelse.
- Lave kjøpsomkostninger.
- Nærhet til skoler, barnehager, kjøpesenter og offentlig transport.
Velkommen til en hyggelig visning!
NB: Knappen for å vise hele beskrivelsen har kun en visuell effekt.
NB: Knappen for å vise hele beskrivelsen har kun en visuell effekt.
Salgsoppgaven beskriver vesentlig og lovpålagt informasjon om eiendommen
Se komplett salgsoppgaveNyttige lenker
Nærområdet

PrivatMegleren Brustad & Partnere
Kun det beste på dine vegne
Annonseinformasjon
| FINN-kode | 453496367 |
|---|---|
| Sist endret | 04. mars 2026 03:11 |
| Referanse | 121250468 |
Annonsene kan være mangelfulle i forhold til lovpålagt opplysningsplikt. Før bindende avtale inngås oppfordres interessenter til å innhente komplett informasjon fra meglerforetaket, selger eller utleier.



















