Bildegalleri

Aktiv Eiendom v/Wenche Roterud har gleden av å presentere Pegasusvegen 3.
Neskollen
Moderne, kjedet enebolig fra 2017, med integrert garasje, flott utsikt og vannbåren varme. Barnevennlig område.
Prisantydning4 800 000 kr
Nøkkelinfo
- Boligtype
- Enebolig
- Eieform
- Eier (Selveier)
- Soverom
- 3
- Internt bruksareal
- 146 m² (BRA-i)
- Bruksareal
- 150 m²
- Eksternt bruksareal
- 4 m² (BRA-e)
- Balkong/Terrasse
- 24 m² (TBA)
- Byggeår
- 2017
- Energimerking
- C
- Tomteareal
- 539 m² (eiet)
Fasiliteter
Balkong/Terrasse
Barnevennlig
Garasje/P-plass
Hage
Peis/Ildsted
Rolig
Utsikt
Turterreng
Om boligen
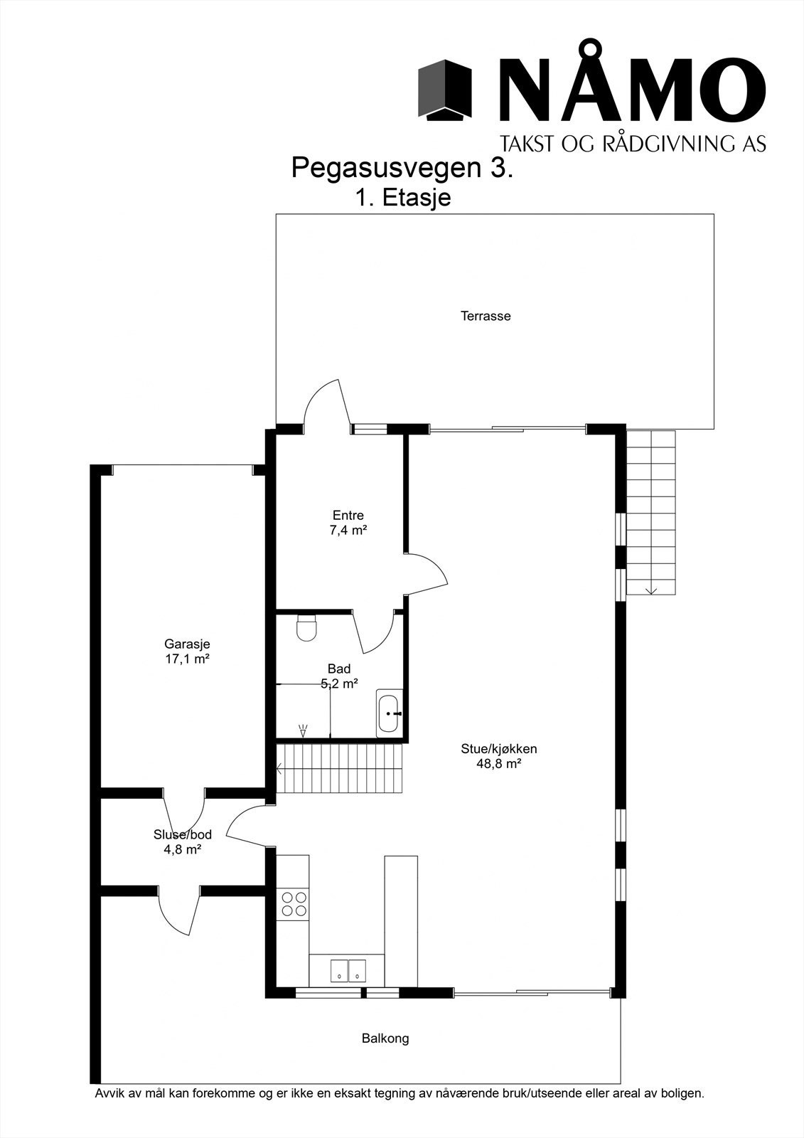
Pegasusvegen 3 er en velholdt, kjedet og innbydende enebolig over to plan, oppført med god og moderne standard i 2017. Boligen har en fin beliggenhet i et naturskjønt og familievennlig område, rett ved barnehage og flotte turmuligheter i marka. Tomten ligger høyt til, med flott terrasse, stor balkong og fin, vidstrakt utsikt over nærområdene. Det er god parkering på gårdsplassen, og i en integrert garasje med direkte inngang til huset.
Vel inne får man en åpen og luftig stue med peisovn og god takhøyde, mens kjøkkenet har smart barløsning, mye skapplass og integrerte hvitevarer. Videre er det to stilrene bad i hver sin etasje, to boder, og tre delikate soverom hvor det ene har en stor skyvedørsgarderobe. Alle rommene i huset er utstyrt med vannbåren gulvvarme, med unntak av bodene.
Vel inne får man en åpen og luftig stue med peisovn og god takhøyde, mens kjøkkenet har smart barløsning, mye skapplass og integrerte hvitevarer. Videre er det to stilrene bad i hver sin etasje, to boder, og tre delikate soverom hvor det ene har en stor skyvedørsgarderobe. Alle rommene i huset er utstyrt med vannbåren gulvvarme, med unntak av bodene.
NB: Knappen for å vise hele beskrivelsen har kun en visuell effekt.
NB: Knappen for å vise hele beskrivelsen har kun en visuell effekt.
Salgsoppgaven beskriver vesentlig og lovpålagt informasjon om eiendommen
Se komplett salgsoppgaveNærområdet
Aktiv Årnes
Annonseinformasjon
| FINN-kode | 453441228 |
|---|---|
| Sist endret | 03. mars 2026 17:29 |
| Referanse | 1207260009 |
Annonsene kan være mangelfulle i forhold til lovpålagt opplysningsplikt. Før bindende avtale inngås oppfordres interessenter til å innhente komplett informasjon fra meglerforetaket, selger eller utleier.















































