Bildegalleri

Velkommen til Notringen 1 presentert av Marie Traasdahl Hansen v/ Hjem Eiendomsmegling

Hamna

Familievennlig enebolig over tre plan med flotte uteområder, garasje og utleie!

Prisantydning9 600 000 kr
Totalpris
9 841 350 kr
Omkostninger
241 350 kr
Kommunale avg.
29 422 kr per år
Formuesverdi
2 188 806 kr

Nøkkelinfo

Boligtype
Enebolig
Eieform
Eier (Selveier)
Soverom
5
Internt bruksareal
210 m² (BRA-i)
Bruksareal
268 m²
Eksternt bruksareal
58 m² (BRA-e)
Balkong/Terrasse
57 m² (TBA)
Byggeår
1989
Energimerking
C
Rom
8
Tomteareal
638 m² (eiet)

Les mer om bruksareal her

Fasiliteter

Balkong/Terrasse
Barnevennlig
Garasje/P-plass
Hage
Kjæledyr tillatt
Offentlig vann/kloakk
Parkett
Peis/Ildsted
Rolig
Utsikt
Turterreng

Visning

onsdag, 11. mars
17:00 – 18:00
Vi ønsker visninger med høyest mulig servicegrad og forutsigbarhet. Derfor har vi alltid påmelding til visning. Meld deg på visning via lenken Visningspåmelding eller kontakt meg på tlf. eller e-post for å avtale tidspunkt. Visninger uten påmeldte deltagere vil bli avlyst.
Visningspåmelding

Om boligen

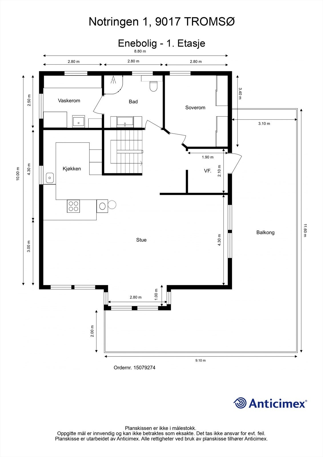
Boligen strekker seg over tre plan og har en familievennlig og funksjonell planløsning. Hoveddelen byr på flislagt entré med gulvvarme, en lys og romslig stue med god plass til flere soner, moderne og velutstyrt kjøkken, to bad (det ene fra 2023), praktisk og romslig vaskerom, tre gode soverom med praktiske oppbevaringsløsninger og loftstue. Boligen har en romslig veranda med flotte sol- og utsiktsforhold. I underetasjen er det en leilighet med egen inngang, arealet leies i dag ut som en enhet med to soverom. Arealet er godkjent for varig opphold, opprinnelig søkt og godkjent som to hybler.

Eiendommen har stor hage og grenser til friareal. Parkering i garasje og på tomt. Kort vei til skole, barnehage, flotte turområder og dagligvarebutikk.

Velkommen på visning!

Salgsoppgaven beskriver vesentlig og lovpålagt informasjon om eiendommen

Se komplett salgsoppgave

Nærområdet

Annonseinformasjon

FINN-kode453433330
Sist endret03. mars 2026 15:34
Referanse1-0039/26

Rapporter annonse

Annonsene kan være mangelfulle i forhold til lovpålagt opplysningsplikt. Før bindende avtale inngås oppfordres interessenter til å innhente komplett informasjon fra meglerforetaket, selger eller utleier.