Bildegalleri

PrivatMegler Stefan Safri ønsker velkommen til Mellombølgen 58
Lambertseter
Lys og pen 3-roms i 2.etg | Oppusset i 2024 | Balkong | 2 soverom | Oppvarming og v.vann inkl | Barnevennlig og sentralt
Prisantydning4 890 000 kr
Nøkkelinfo
- Boligtype
- Leilighet
- Eieform
- Andel
- Soverom
- 2
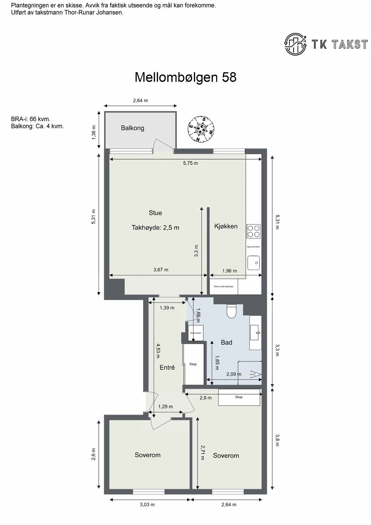
- Internt bruksareal
- 66 m² (BRA-i)
- Bruksareal
- 70 m²
- Eksternt bruksareal
- 4 m² (BRA-e)
- Balkong/Terrasse
- 4 m² (TBA)
- Etasje
- 2
- Byggeår
- 1960
- Energimerking
- C - Lysegrønn
- Rom
- 3
- Tomteareal
- 66 329 m² (eiet)
Fasiliteter
Barnevennlig
Balkong/Terrasse
Kabel-TV
Offentlig vann/kloakk
Parkett
Vaktmester-/vektertjeneste
Fellesvaskeri
Sentralt
Bredbåndstilknytning
Moderne
Rolig
Lademulighet
Visning
søndag, 08. mars
12:00 – 13:00
Velkommen til visning!
Alle våre visninger har påmelding. Det er enkelt å melde seg på, og du kan like enkelt melde deg av. Kontakt gjerne megler i forkant av visning dersom du har spørsmål.
mandag, 09. mars
16:30 – 17:30
Velkommen til visning!
Alle våre visninger har påmelding. Det er enkelt å melde seg på, og du kan like enkelt melde deg av. Kontakt gjerne megler i forkant av visning dersom du har spørsmål.
Om boligen
Lys og pen 3-roms leilighet i 2. etasje med super beliggenhet på populære Lambertseter/Bergkrystallen. Leiligheten med unntak av badet ble pusset opp i 2024. Badet ble pusset opp i regi av borettslaget og er tilrettelagt for badekar om ønskelig.
* Barnevennlig og rolig nabolag med nærhet til det meste
* Sydvendt balkong
* Lys og pen stue
* Delvis åpent kjøkken med integrerte hvitevarer og medfølgende kjøl/frys tilkoblet vann
* Stort bad med opplegg til vaskemaskin og vannbåren gulvvarme
* 2 soverom
* Kjellerbod
* Oppvarming, varmtvann og internett inkludert i f.utg.
* Oppgradert elektrisk anlegg i 2024
* Parkering etter venteliste
* Barnevennlig med kort vei til flere barnehager og skoler
* Kort vei til T-bane, buss, flybuss, bibliotek, flere matbutikker, lekeplasser, idrettsanlegg, kino, bibliotek, svømmehall, treningssentre, Lambertseter senter, Sæter Torg, marka m.m.
* Barnevennlig og rolig nabolag med nærhet til det meste
* Sydvendt balkong
* Lys og pen stue
* Delvis åpent kjøkken med integrerte hvitevarer og medfølgende kjøl/frys tilkoblet vann
* Stort bad med opplegg til vaskemaskin og vannbåren gulvvarme
* 2 soverom
* Kjellerbod
* Oppvarming, varmtvann og internett inkludert i f.utg.
* Oppgradert elektrisk anlegg i 2024
* Parkering etter venteliste
* Barnevennlig med kort vei til flere barnehager og skoler
* Kort vei til T-bane, buss, flybuss, bibliotek, flere matbutikker, lekeplasser, idrettsanlegg, kino, bibliotek, svømmehall, treningssentre, Lambertseter senter, Sæter Torg, marka m.m.
NB: Knappen for å vise hele beskrivelsen har kun en visuell effekt.
NB: Knappen for å vise hele beskrivelsen har kun en visuell effekt.
Salgsoppgaven beskriver vesentlig og lovpålagt informasjon om eiendommen
Se komplett salgsoppgaveNyttige lenker
Nærområdet

PrivatMegleren Panorama
Kun det beste på dine vegne
Annonseinformasjon
| FINN-kode | 453406660 |
|---|---|
| Sist endret | 03. mars 2026 18:19 |
| Referanse | 38251448 |
Annonsene kan være mangelfulle i forhold til lovpålagt opplysningsplikt. Før bindende avtale inngås oppfordres interessenter til å innhente komplett informasjon fra meglerforetaket, selger eller utleier.












































