Bildegalleri

Vestvendt 2-roms andelsleilighet i Berberissveien 31B - presentert av Proaktiv v/Alexander Abelseth.
Tranby
Lettstelt 2-roms leilighet med innglasset balkong. Garasjeplass. Vestvendt med flott utsikt. Fjernvarme
Prisantydning2 500 000 kr
Nøkkelinfo
- Boligtype
- Leilighet
- Eieform
- Andel
- Soverom
- 1
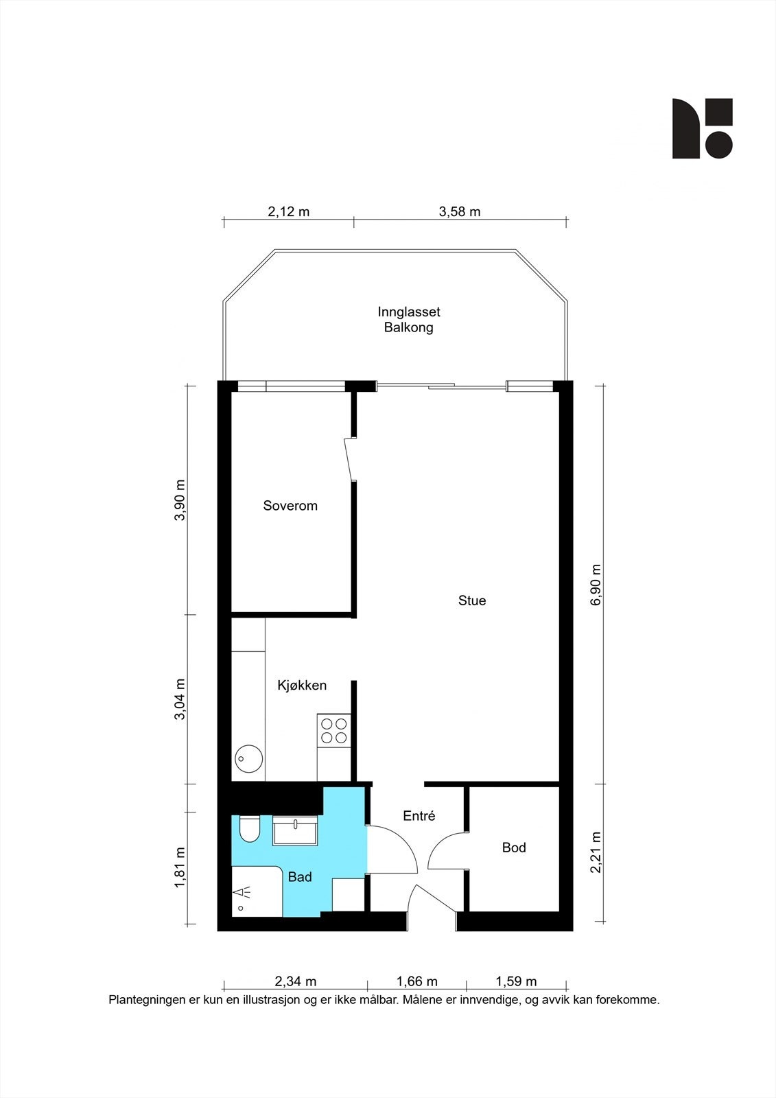
- Internt bruksareal
- 54 m² (BRA-i)
- Bruksareal
- 71 m²
- Eksternt bruksareal
- 2 m² (BRA-e)
- Innglasset balkong
- 15 m² (BRA-b)
- Etasje
- 3
- Byggeår
- 1972
- Energimerking
- C
- Rom
- 2
- Tomteareal
- 14 264 m² (eiet)
Fasiliteter
Balkong/Terrasse
Barnevennlig
Garasje/P-plass
Kjæledyr tillatt
Rolig
Sentralt
Utsikt
Turterreng
Visning
mandag, 09. mars
18:30 – 19:00
For at vår megler og selger skal kunne gi deg den beste oppfølgingen og kjøpsopplevelsen er det obligatorisk påmelding til alle våre visninger. Dette må gjøres INNEN kl. 13.00 på visningsdagen. Visninger uten påmeldte deltagere avlyses.
VisningspåmeldingOm boligen
Leiligheten i Berberissveien 31B ligger i de populære blokkene sentralt på Tranby. Her bor du i et rolig nabolag, hvor grønne omgivelser og et trygt miljø danner rammen rundt hverdagen. Rett utenfor døren finner du skoler, barnehage, fritidsaktiviteter, matbutikk og fine turområder. Det er også kort vei ut til E18-aksen hvor man bruker ca. 15 min til Drammen, eller under halvtimen til Oslo. Kort gangavstand til bussholdeplass med forbindelse til Asker, Drammen og Oslo.
Vestvendt beliggende i 3. etasje med innglasset balkong på 15 kvm. Her har man sol, flott utsikt og store vinduer som kan åpnes opp. Garasjeplass medfølger (opplegg for elbillader skal etableres). God planløsning med entré, bod, stue, separat kjøkken, bad med opplegg for vaskemaskin og ett soverom. Utvendig bod.
Vestvendt beliggende i 3. etasje med innglasset balkong på 15 kvm. Her har man sol, flott utsikt og store vinduer som kan åpnes opp. Garasjeplass medfølger (opplegg for elbillader skal etableres). God planløsning med entré, bod, stue, separat kjøkken, bad med opplegg for vaskemaskin og ett soverom. Utvendig bod.
NB: Knappen for å vise hele beskrivelsen har kun en visuell effekt.
NB: Knappen for å vise hele beskrivelsen har kun en visuell effekt.
Salgsoppgaven beskriver vesentlig og lovpålagt informasjon om eiendommen
Se komplett salgsoppgaveNyttige lenker
Nærområdet
Proaktiv Eiendomsmegling Drammen, Lier & Holmestrand
Alltid tid til deg
Annonseinformasjon
| FINN-kode | 453364809 |
|---|---|
| Sist endret | 02. mars 2026 15:19 |
| Referanse | 1600260029 |
Annonsene kan være mangelfulle i forhold til lovpålagt opplysningsplikt. Før bindende avtale inngås oppfordres interessenter til å innhente komplett informasjon fra meglerforetaket, selger eller utleier.























