Bildegalleri

Velkommen til Krokeidevegen 40 - presentert av Børge Systad i Eiendomsmegler Norge

Fana

Nydelig familiebolig (fra 2016) med innholdsrik planløsning og flott uteplass. Nærhet til butikk, barnehage og skole!

Prisantydning6 990 000 kr
Totalpris
7 178 440 kr
Omkostninger
188 440 kr
Felleskost/mnd.
3 116 kr
Kommunale avg.
25 174 kr per år
Formuesverdi
1 711 637 kr

Nøkkelinfo

Boligtype
Rekkehus
Eieform
Eier (Selveier)
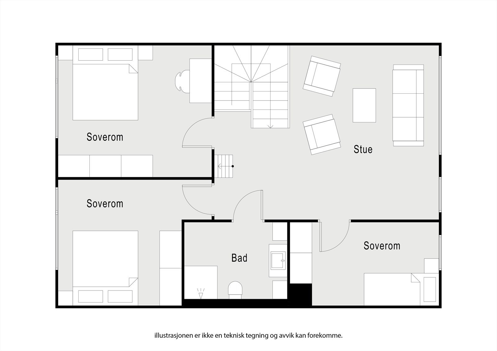
Soverom
3
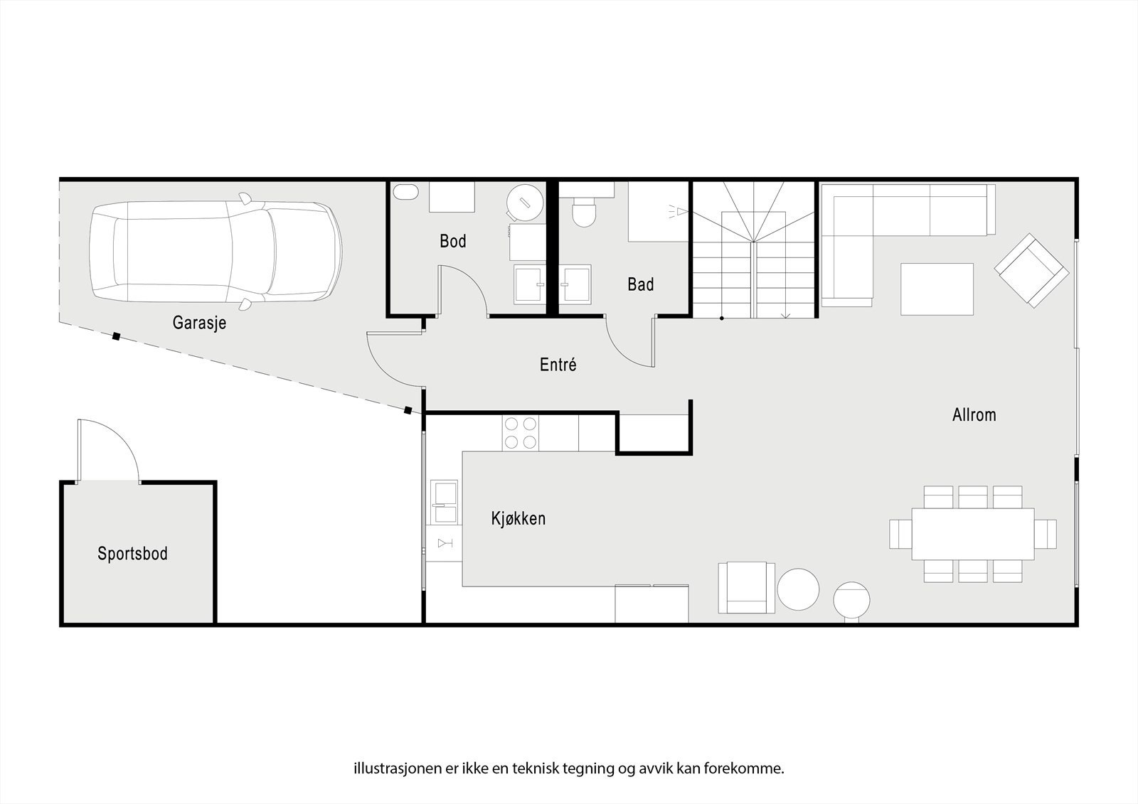
Internt bruksareal
142 m² (BRA-i)
Bruksareal
159 m²
Eksternt bruksareal
17 m² (BRA-e)
Balkong/Terrasse
18 m² (TBA)
Byggeår
2016
Energimerking
C
Rom
5
Tomteareal
53 m² (eiet)

Les mer om bruksareal her

Fasiliteter

Balkong/Terrasse
Barnevennlig
Bredbåndstilknytning
Garasje/P-plass
Hage
Kjæledyr tillatt
Kabel-TV
Parkett
Peis/Ildsted
Rolig
Sentralt
Turterreng
Balansert ventilasjon

Visning

onsdag, 11. mars
16:00 – 17:00
Visningspåmelding

Om boligen

Eiendomsmegler Norge har gleden av å presentere denne nydelige familieboligen i Krokeidevegen 40. Boligen går over to plan (+hems) og har en innholdsrik planløsning med bl.a. tre soverom, to bad og to stuer. Her er gjennomgående god standard fra byggeår 2016 - flytt rett inn!

Kort fortalt:
- Solrik uteplass i naturskjønne omgivelser
- Gjennomgående god standard fra 2016
- Carport like utenfor døren
- Vedovn og varmepumpe
- Godt med lagringsplass

Område:
Her kombineres landlig idyll med godt tilgjengelige fasiliteter. Kort gangavstand til to dagligvarebutikker, barnehage og Kirkevoll barne- og ungdomsskole. Variert terreng like ved som innbyr til både hverdagslige spaserturer eller lengre trimturer, f. eks. på Fanafjellet eller i Hordnesskogen.

Velkommen til hyggelig nyhetsvisning!

Salgsoppgaven beskriver vesentlig og lovpålagt informasjon om eiendommen

Se komplett salgsoppgave

Nærområdet

Annonseinformasjon

FINN-kode453349130
Sist endret04. mars 2026 08:23
Referanse14260026

Rapporter annonse

Annonsene kan være mangelfulle i forhold til lovpålagt opplysningsplikt. Før bindende avtale inngås oppfordres interessenter til å innhente komplett informasjon fra meglerforetaket, selger eller utleier.