Bildegalleri

Velkommen til Øvre Prinsdals Vei 53F - en tiltalende og innholdsrik enebolig på 335 kvm
Øvre Prinsdal
Tiltalende og innholdsrik enebolig på 335 BRA | Stort allrom med unik takhøyde og peis | Stor, solrik hage | Carport
Prisantydning12 900 000 kr
Nøkkelinfo
- Boligtype
- Enebolig
- Eieform
- Selveier
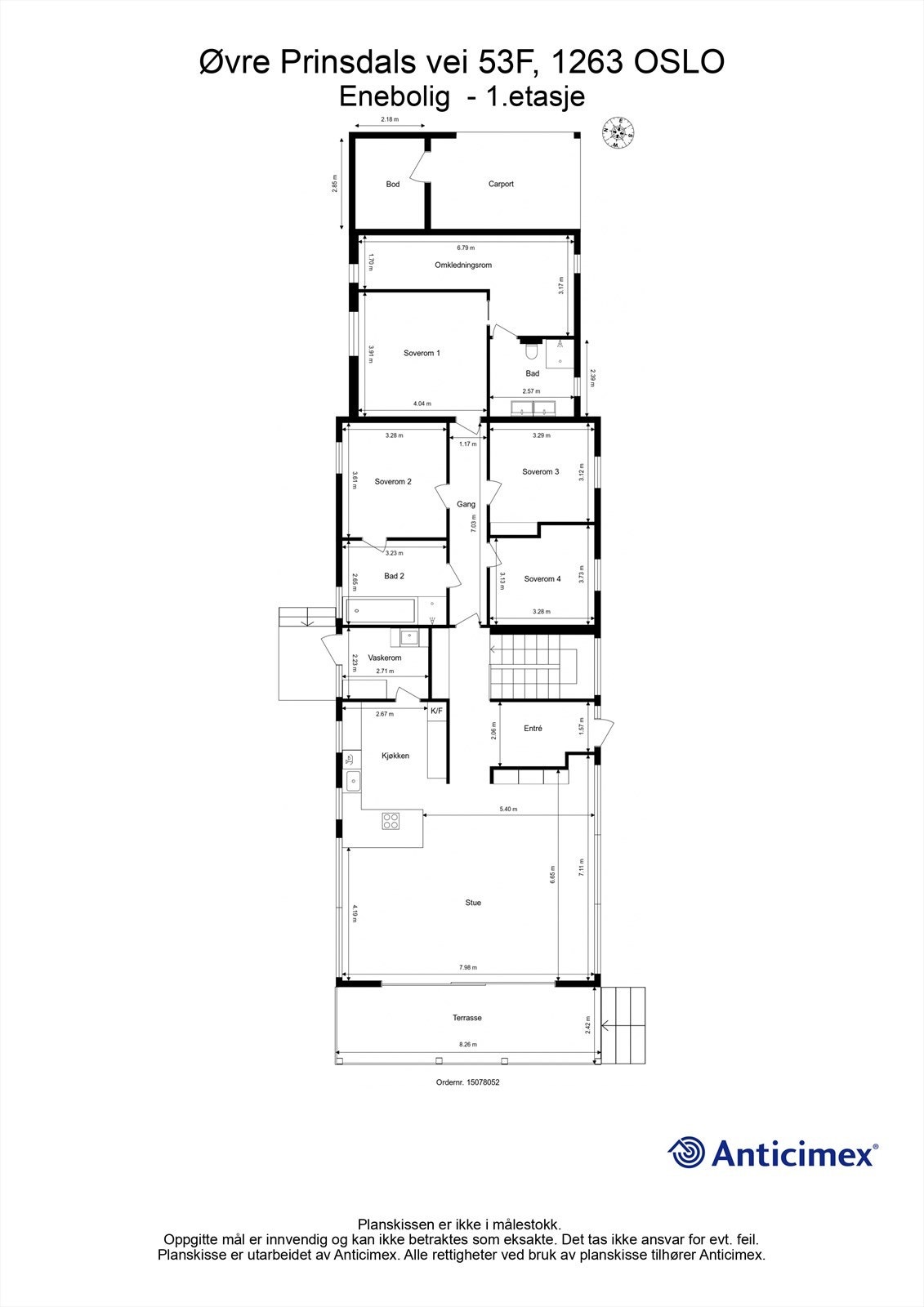
- Soverom
- 5
- Internt bruksareal
- 326 m² (BRA-i)
- Bruksareal
- 335 m²
- Eksternt bruksareal
- 9 m² (BRA-e)
- Balkong/Terrasse
- 55 m² (TBA)
- Byggeår
- 1973
- Energimerking
- Tomteareal
- 1 066 m² (eiet)
Fasiliteter
Balkong/Terrasse
Barnevennlig
Garasje/P-plass
Hage
Kjæledyr tillatt
Ingen gjenboere
Kabel-TV
Offentlig vann/kloakk
Parkett
Peis/Ildsted
Rolig
Turterreng
Visning
Ta kontakt med megler for avtale om privatvisning. Ønsker du kun å bli holdt orientert, kan du fra eiendommens hjemmeside få varsel om solgtpris, eller kontakte megler.
VisningspåmeldingOm boligen
Velkommen til Øvre Prinsdals Vei 53F! En stor og innholdsrik enebolig med familievennlig planløsning, tiltalende standard, og skikkelig wow faktor. Dette er et hjem perfekt for familien som ønsker rikelig med plass og moderne komfort. Husets naturlige samlingspunkt er det imponerende allrommet, med takhøyde opp mot 3,60 meter, som åpner seg mot en skjermet terrasse med utsikt. Boligen ligger i et stille og trygt nabolag med umiddelbar nærhet til skoler og Grønliåsen, noe som gjør hverdagen enkel og trivelig for både store og små.
Høydepunkter:
Kjøkken fra Poliform Varenna med integrerte hvitevarer
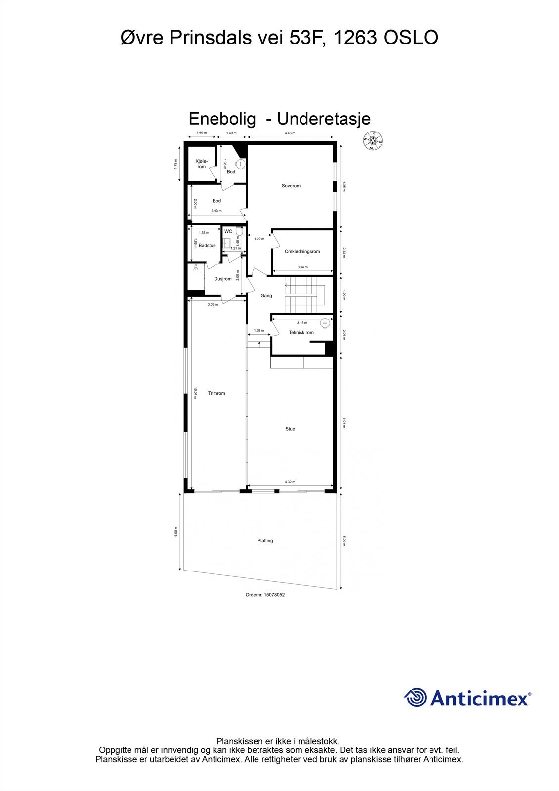
Tre bad, separat vaskerom og badstue
Vannbåren og elektrisk gulvvarme i de fleste rom
Solrik og pent opparbeidet hage med plen og beplanting
Terrasse med overbygg
Carport og godt med parkering
Høydepunkter:
Kjøkken fra Poliform Varenna med integrerte hvitevarer
Tre bad, separat vaskerom og badstue
Vannbåren og elektrisk gulvvarme i de fleste rom
Solrik og pent opparbeidet hage med plen og beplanting
Terrasse med overbygg
Carport og godt med parkering
NB: Knappen for å vise hele beskrivelsen har kun en visuell effekt.
NB: Knappen for å vise hele beskrivelsen har kun en visuell effekt.
Salgsoppgaven beskriver vesentlig og lovpålagt informasjon om eiendommen
Se komplett salgsoppgaveNyttige lenker
Nærområdet
Krogsveen Nordstrand
Verdien av en god megler.
Annonseinformasjon
| FINN-kode | 453274859 |
|---|---|
| Sist endret | 28. apr. 2026 07:52 |
| Referanse | KR44.25310 |
Annonsene kan være mangelfulle i forhold til lovpålagt opplysningsplikt. Før bindende avtale inngås oppfordres interessenter til å innhente komplett informasjon fra meglerforetaket, selger eller utleier.













































































