Bildegalleri

Velkommen til tråkka 12. Stor vindusflate slipper mye naturlig lys inn i stuen.
Attraktiv kjedet enebolig. Idyllisk beliggende i enveiskjørt gate | Meget god standard | Stor hage med flotte uteområder
Prisantydning20 990 000 kr
Nøkkelinfo
- Boligtype
- Tomannsbolig
- Eieform
- Eier (Selveier)
- Soverom
- 4
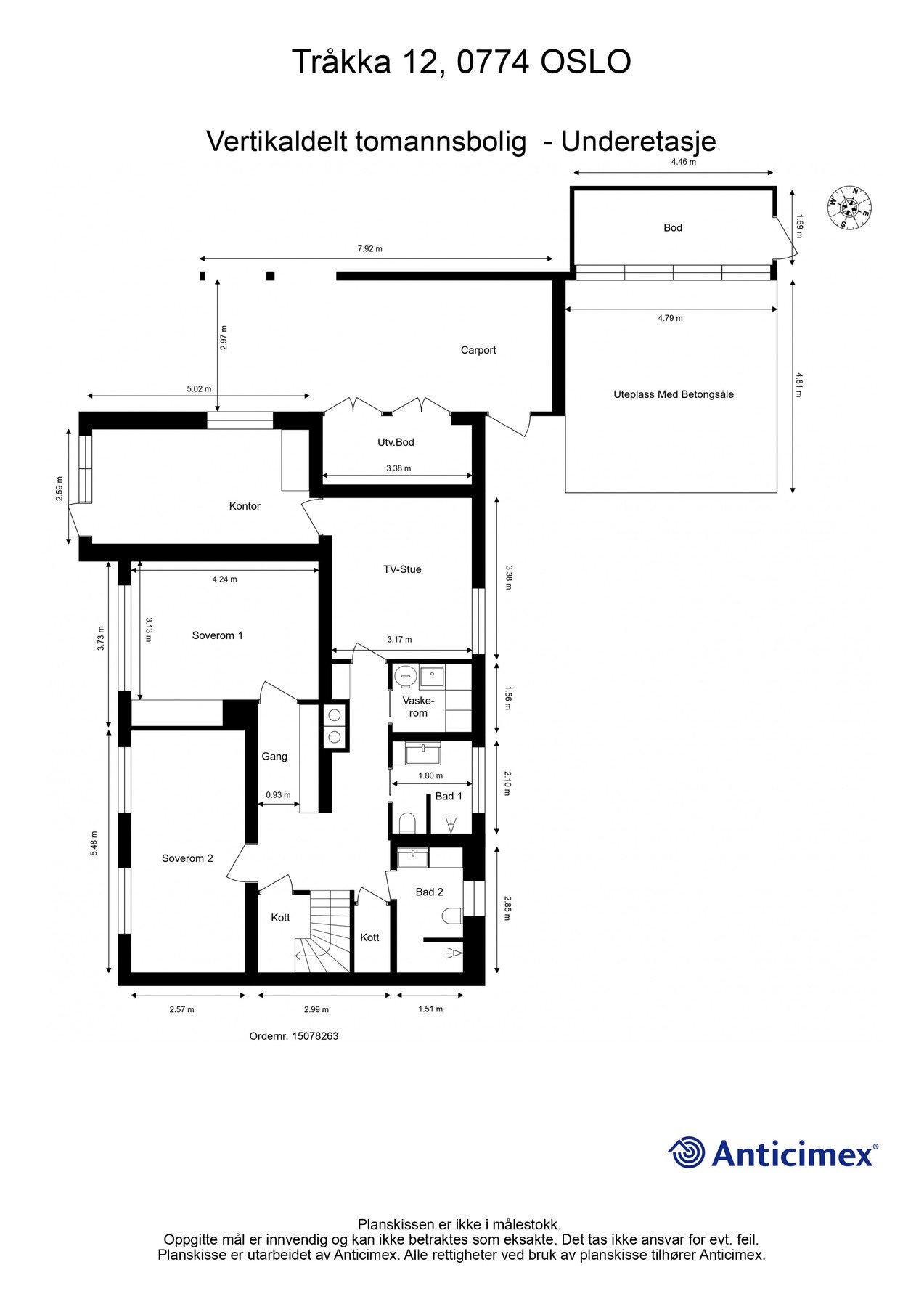
- Internt bruksareal
- 199 m² (BRA-i)
- Bruksareal
- 211 m²
- Eksternt bruksareal
- 12 m² (BRA-e)
- Balkong/Terrasse
- 41 m² (TBA)
- Byggeår
- 1952
- Energimerking
- F - Oransje
- Rom
- 6
- Tomteareal
- 890 m² (eiet)
Fasiliteter
Barnevennlig
Balkong/Terrasse
Garasje/P-plass
Kabel-TV
Alarm
Offentlig vann/kloakk
Ingen gjenboere
Parkett
Peis/Ildsted
Turterreng
Utsikt
Sentralt
Bredbåndstilknytning
Moderne
Rolig
Lademulighet
Visning
søndag, 08. mars
12:00 – 12:45
For å yte premium rådgivning, har alle våre visninger påmelding. Dette sikrer at megler har god oversikt og tid til å imøtekomme alle interessenter på aller beste måte. Dersom ingen interessenter er påmeldt, kan visningen bli avlyst.
Om boligen
Ettertraktet kjedet enebolig som fremstår som svært velholdt. Dagens eier har gjennomført omfattende oppussing og boligen har svært god standard. Eksklusivt materialvalg, kjøkken fra Bulthaup, garderobeinnredning fra Bultaup og heltre stav eikegulv fremhever boligens kvaliteter. Det elektriske anlegget er oppgradert i 2005 og 2021 og det er lagt nytt rør-i-rør system. Det ble installert gulvvarme og radonduk i kjelleren 2021.
- Komfyr, kombidampovn, kjøleskap (bred variant), platetopp med ventilator (mekanisk avtrekk) fra anerkjente Gaggenau.
- Integrert Quooker kran med kokevann
- Eksklusivt baderom fra 2021.
- Garderobe i entre, hovedsov fra italienske LEMA
- Utgang fra stue til delvis overbygget sydvestvendt terrasse på 18 kvm.
- Heltre stav eikegulv fra Svenneby Sag
- Carport og tilbygg fra 2025 oppført i jernvitrolbehandlet kjerneved i norsk malmfuru
- Isolert bod på 7 kvm tilknyttet carport
- Nyere vinduer
- Nytt tak i 2023
- Markterrasse med pergola på 23 kvm
- Komfyr, kombidampovn, kjøleskap (bred variant), platetopp med ventilator (mekanisk avtrekk) fra anerkjente Gaggenau.
- Integrert Quooker kran med kokevann
- Eksklusivt baderom fra 2021.
- Garderobe i entre, hovedsov fra italienske LEMA
- Utgang fra stue til delvis overbygget sydvestvendt terrasse på 18 kvm.
- Heltre stav eikegulv fra Svenneby Sag
- Carport og tilbygg fra 2025 oppført i jernvitrolbehandlet kjerneved i norsk malmfuru
- Isolert bod på 7 kvm tilknyttet carport
- Nyere vinduer
- Nytt tak i 2023
- Markterrasse med pergola på 23 kvm
NB: Knappen for å vise hele beskrivelsen har kun en visuell effekt.
NB: Knappen for å vise hele beskrivelsen har kun en visuell effekt.
Salgsoppgaven beskriver vesentlig og lovpålagt informasjon om eiendommen
Se komplett salgsoppgaveNyttige lenker
Nærområdet
EIE eiendomsmegling Solli & Frogner
Annonseinformasjon
| FINN-kode | 453212587 |
|---|---|
| Sist endret | 02. mars 2026 08:49 |
| Referanse | 14260050 |
Annonsene kan være mangelfulle i forhold til lovpålagt opplysningsplikt. Før bindende avtale inngås oppfordres interessenter til å innhente komplett informasjon fra meglerforetaket, selger eller utleier.






















































