Bildegalleri

Velkommen til denne fine tomannsboligen på Nymarktunet. Foto: EFKT v/Marcus Vinjevoll Sætre
Innholdsrik bolig med alt på ett plan og stor terrasse. 3 soverom. Parkering i carport m/ elbil lader. Sportsbod.
Prisantydning4 280 000 kr
Nøkkelinfo
- Boligtype
- Tomannsbolig
- Eieform
- Eier (Selveier)
- Soverom
- 3
- Internt bruksareal
- 108 m² (BRA-i)
- Bruksareal
- 115 m²
- Eksternt bruksareal
- 7 m² (BRA-e)
- Balkong/Terrasse
- 65 m² (TBA)
- Etasje
- 1
- Byggeår
- 2018
- Energimerking
- C - Lysegrønn
- Rom
- 4
- Tomteareal
- 598 m² (eiet)
Fasiliteter
Barnevennlig
Balkong/Terrasse
Garasje/P-plass
Offentlig vann/kloakk
Peis/Ildsted
Turterreng
Bredbåndstilknytning
Moderne
Rolig
Lademulighet
Balansert ventilasjon
Visning
mandag, 09. mars
16:00 – 17:00
Velkommen til visning!
Alle våre visninger har påmelding. På denne måten sikrer vi at megler har god oversikt og tid til å imøtekomme alle interessenter på beste måte. Dette er veldig verdifullt for boligkjøpere og for oss. Det er enkelt å melde seg på, og du kan like enkelt melde deg av. Kontakt også gjerne megler i forkant av visning dersom du har spørsmål.
Om boligen
Velkommen til Valle og Nymarktunet 9 - En innholdsrik vertikaldelt tomannsbolig med god planløsning.
Boligen har trappefri tilkomst, ligger i et familievennlig område og passer både for deg som skal ha din første bolig, en liten familie eller de godt voksne som ønsker en lettvint bolig.
Boligen har alt på ett plan med trappefri tilkomst.
Inneholder:
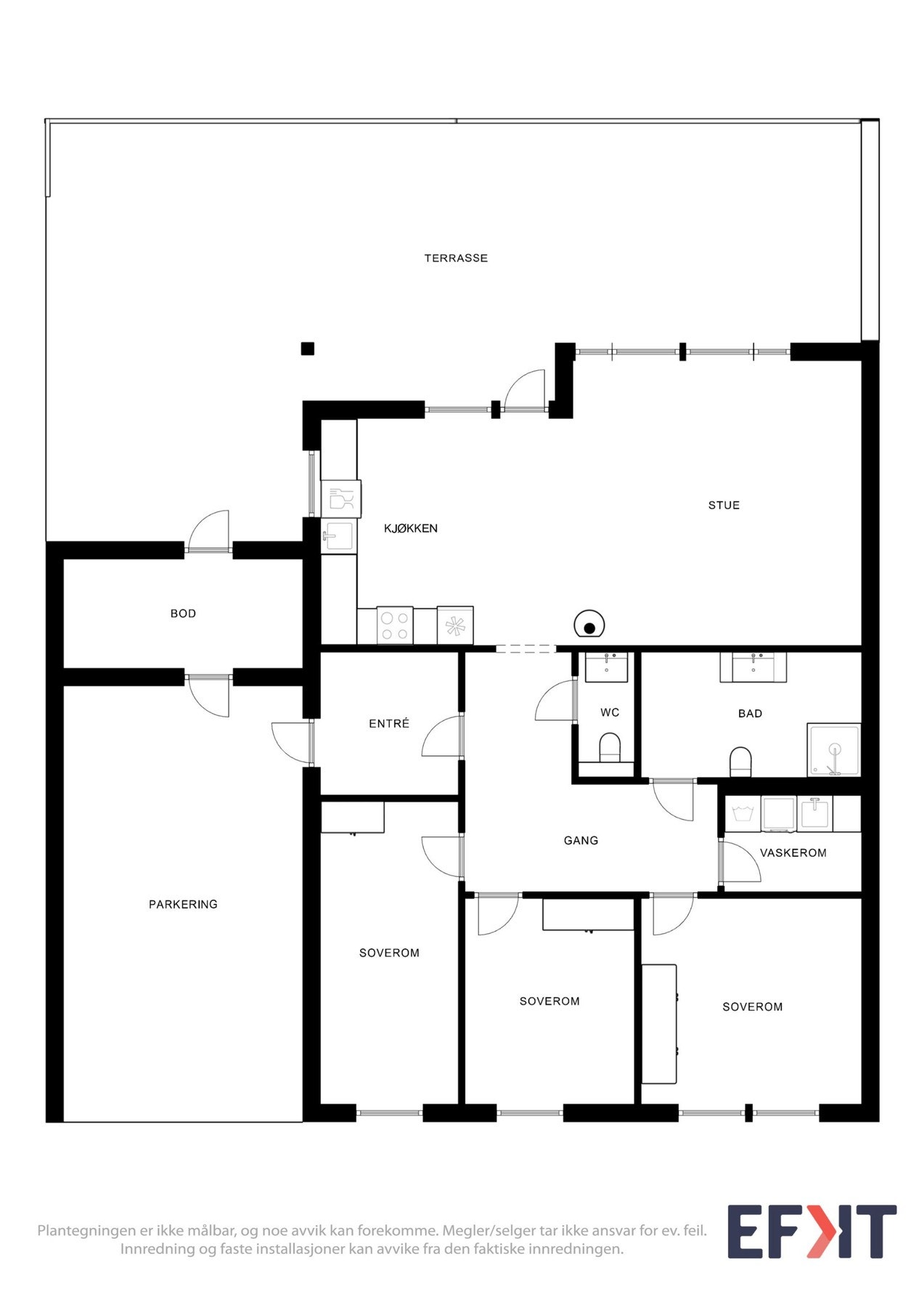
Entré, gang, stue/kjøkken, bad, vaskerom, wc-rom og 3 soverom. Carport med sportsbod og stor terrasse.
Eiendommen ligger i et etablert og rolig område med kort avstand til skole, barnehage, butikk og busstopp.
Velkommen til visning - husk påmelding.
Boligen har trappefri tilkomst, ligger i et familievennlig område og passer både for deg som skal ha din første bolig, en liten familie eller de godt voksne som ønsker en lettvint bolig.
Boligen har alt på ett plan med trappefri tilkomst.
Inneholder:
Entré, gang, stue/kjøkken, bad, vaskerom, wc-rom og 3 soverom. Carport med sportsbod og stor terrasse.
Eiendommen ligger i et etablert og rolig område med kort avstand til skole, barnehage, butikk og busstopp.
Velkommen til visning - husk påmelding.
NB: Knappen for å vise hele beskrivelsen har kun en visuell effekt.
NB: Knappen for å vise hele beskrivelsen har kun en visuell effekt.
Salgsoppgaven beskriver vesentlig og lovpålagt informasjon om eiendommen
Se komplett salgsoppgaveNyttige lenker
Nærområdet
PrivatMegleren Ålesund
Kun det beste på dine vegne
Annonseinformasjon
| FINN-kode | 453151559 |
|---|---|
| Sist endret | 28. feb. 2026 16:17 |
| Referanse | 313251186 |
Annonsene kan være mangelfulle i forhold til lovpålagt opplysningsplikt. Før bindende avtale inngås oppfordres interessenter til å innhente komplett informasjon fra meglerforetaket, selger eller utleier.














































