Bildegalleri

Stuen ble pusset opp i 2023 med bl.a. nytt korkvinyl gulv

Bjørset- Pen halvpart av tomannsbolig med nytt kjøkken (2023), stor veranda, fin hage og romslig garasje

Prisantydning5 900 000 kr
Totalpris
6 048 590 kr
Omkostninger
148 590 kr
Kommunale avg.
22 872 kr per år
Formuesverdi
758 093 kr

Nøkkelinfo

Boligtype
Tomannsbolig
Eieform
Eier (Selveier)
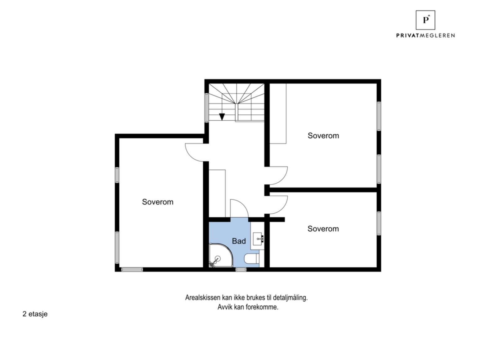
Soverom
3
Internt bruksareal
153 m² (BRA-i)
Bruksareal
153 m²
Eksternt bruksareal
43 m² (BRA-e)
Balkong/Terrasse
45 m² (TBA)
Byggeår
1959
Energimerking
F - Oransje
Rom
4
Tomteareal
1 155 m² (eiet)

Les mer om bruksareal her

Visning

mandag, 09. mars
16:00 – 17:00
Velkommen til visning! Alle våre visninger har påmelding. På denne måten sikrer vi at megler har god oversikt og tid til å imøtekomme alle interessenter på beste måte. Dette er veldig verdifullt for boligkjøpere og for oss. Det er enkelt å melde seg på, og du kan like enkelt melde deg av. Kontakt også gjerne megler i forkant av visning dersom du har spørsmål.
Visningspåmelding

Om boligen

Eiendomsmegler MNEF Randi Hollingen har gleden av å presentere Rekkebovegen 2b, en fin halvpart av tomannsbolig med tilbaketrukket og sentral beliggenhet på Bjørset. Følgende kan fremheves om boligen:

.Ny kjøkkeninnredning i 2023
.Nytt gulv i kjøkken og stue i 2023
.Ny rentbrennende vedovn montert i 2023
.Ny isolasjon og bordkledning på vestvegg i 2015
.Pen og bruksvennlig hage
.Stor veranda på ca. 20 kvm
.Gode solforhold
.Tomten grenser til friområde mot nord
.3 soverom, 2 bad
.Kjeller med god lagringsplass
.Romslig garasje med elbillader

Velkommen til visning!

Salgsoppgaven beskriver vesentlig og lovpålagt informasjon om eiendommen

Se komplett salgsoppgave

Nærområdet

Annonseinformasjon

FINN-kode453127231
Sist endret28. feb. 2026 18:13
Referanse45260014

Rapporter annonse

Annonsene kan være mangelfulle i forhold til lovpålagt opplysningsplikt. Før bindende avtale inngås oppfordres interessenter til å innhente komplett informasjon fra meglerforetaket, selger eller utleier.