Bildegalleri

Velkommen til Skøyenveien 65, en lys leilighet med stor terrasse og garasjeplass i Øvre Silkestrå borettslag.
SKØYEN/ØVRE SILKESTRÅ
Arealeffektiv 2(3)-roms, sydvestvendt stor terrasse mot rolig grøntområde, nytt bad 2020, nytt gulv 2026, garasje
Prisantydning5 350 000 kr
Nøkkelinfo
- Boligtype
- Leilighet
- Eieform
- Andel
- Soverom
- 1
- Internt bruksareal
- 44 m² (BRA-i)
- Bruksareal
- 54 m²
- Eksternt bruksareal
- 10 m² (BRA-e)
- Balkong/Terrasse
- 15 m² (TBA)
- Etasje
- 1
- Byggeår
- 1983
- Energimerking
- D - Gul
- Rom
- 2
- Tomteareal
- 25 036 m² (eiet)
Fasiliteter
Barnevennlig
Balkong/Terrasse
Garasje/P-plass
Offentlig vann/kloakk
Turterreng
Vaktmester-/vektertjeneste
Sentralt
Bredbåndstilknytning
Moderne
Rolig
Visning
søndag, 08. mars
14:00 – 14:45
mandag, 09. mars
17:00 – 17:45
Velkommen til visning!
Alle våre visninger har påmelding. På denne måten sikrer vi at våre meglere har god tid og på best mulig måte kan møte alle interessentene. Det er enkelt å melde seg på og like enkelt å melde seg av.
Husk å les salgsoppgaven i forkant!
Kontakt oss gjerne i forkant av visning om du har noen spørsmål.
Om boligen
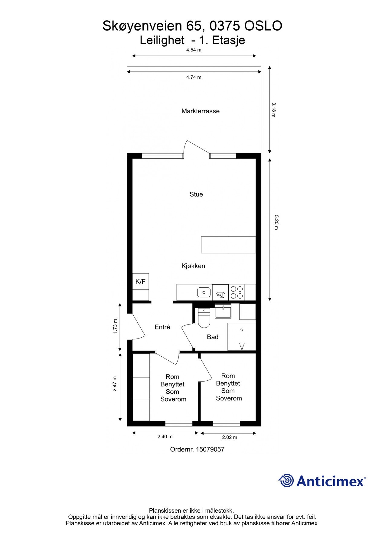
Sjelden og arealeffektiv 2(3)-roms i Øvre Silkestrå borettslag på Skøyen.
Leiligheten har beliggenhet i 1. etasje med trappefri adkomst og utgang til stor sydvestvendt terrasse på ca. 15 kvm. Terrassen vender mot rolig grøntområde og er skjermet med hekk.
Hovedsoverommet er delt av med en lettvegg til 2 mindre rom som i dag benyttes som soverom. Lettveggen kan enkelt fjernes, om ønskelig. Man må gjennom det ene rommet til det andre.
Leiligheten holder gjennomgående god standard med nytt delikat bad fra 2020, nye gulv fra 2026 og ny foliering av kjøkkenet i 2026.
Garasjeplass og godt med bodplass medfølger.
Øvre Silkestrå er et svært rolig og barnevennlig borettslag med kort og bilfri vei til Skøyen skole og flere barnehager. Det er også kun en kort gåtur til idylliske Frognerparken. Praktisk nærbutikk rett i nærheten, og hyggelig café i Skøyen kirke, som ligger rett på oversiden av borettslaget.
Dette er en unik beliggenhet for barn og voksne.
Leiligheten har beliggenhet i 1. etasje med trappefri adkomst og utgang til stor sydvestvendt terrasse på ca. 15 kvm. Terrassen vender mot rolig grøntområde og er skjermet med hekk.
Hovedsoverommet er delt av med en lettvegg til 2 mindre rom som i dag benyttes som soverom. Lettveggen kan enkelt fjernes, om ønskelig. Man må gjennom det ene rommet til det andre.
Leiligheten holder gjennomgående god standard med nytt delikat bad fra 2020, nye gulv fra 2026 og ny foliering av kjøkkenet i 2026.
Garasjeplass og godt med bodplass medfølger.
Øvre Silkestrå er et svært rolig og barnevennlig borettslag med kort og bilfri vei til Skøyen skole og flere barnehager. Det er også kun en kort gåtur til idylliske Frognerparken. Praktisk nærbutikk rett i nærheten, og hyggelig café i Skøyen kirke, som ligger rett på oversiden av borettslaget.
Dette er en unik beliggenhet for barn og voksne.
NB: Knappen for å vise hele beskrivelsen har kun en visuell effekt.
NB: Knappen for å vise hele beskrivelsen har kun en visuell effekt.
Salgsoppgaven beskriver vesentlig og lovpålagt informasjon om eiendommen
Se komplett salgsoppgaveNyttige lenker
Nærområdet
ASK Oslo Vest
Velkommen hjem
Annonseinformasjon
| FINN-kode | 453113946 |
|---|---|
| Sist endret | 02. mars 2026 18:24 |
| Referanse | 40-25-1009 |
Annonsene kan være mangelfulle i forhold til lovpålagt opplysningsplikt. Før bindende avtale inngås oppfordres interessenter til å innhente komplett informasjon fra meglerforetaket, selger eller utleier.































