Bildegalleri

Velkommen til Pilestredet Park 39! - Presentert av Malin Hveem v/ Nordvik avd. Frogner Foto: Arne Schram
Pilestredet Park
Lys & attraktiv hjørneleilighet i 4etg m/vinduer på to sider|Stor solrik balkong|Heis|VV/Fyring ink|Garasjeplass m/lader
Prisantydning9 250 000 kr
Nøkkelinfo
- Boligtype
- Leilighet
- Eieform
- Eier (Selveier)
- Soverom
- 2
- Internt bruksareal
- 76 m² (BRA-i)
- Bruksareal
- 79 m²
- Eksternt bruksareal
- 3 m² (BRA-e)
- Balkong/Terrasse
- 13 m² (TBA)
- Etasje
- 4
- Byggeår
- 2005
- Energimerking
- C
- Rom
- 3
- Tomteareal
- 931 m² (eiet)
Fasiliteter
Takterrasse
Balkong/Terrasse
Barnevennlig
Bredbåndstilknytning
Garasje/P-plass
Heis
Kjæledyr tillatt
Kabel-TV
Offentlig vann/kloakk
Parkett
Rolig
Sentralt
Vaktmester-/vektertjeneste
Lademulighet
Balansert ventilasjon
Om boligen
Velkommen til Pilestredet Park 39, presentert av Malin Hveem v/Nordvik Frogner.
En meget attraktiv & lys 3-roms selveierleilighet m/hjørnebeliggenhet, vinduer på to sider & et av sameiets beste beliggenheter. Det er direkte heisadkomst fra garasjen til etasjeplan, en ekte "easy living" følelse. Her bor du meget attraktivt til m/nærhet til alt byen har å by på!
Høydepunkter:
- Hjørneleilighet i 4 etg m/ettertraktet beliggenhet i sameiet
- Garasjeplass m/lader medfølger
- Trappefri adkomst, heisadkomst fra garasjeplan
- Stor solrik balkong på 13 m²
- Varmtvann/fyring/bredbånd/internett ink.
- Gode lagringsmuligheter
- Store vindusflater
- Nyslipt eikeparkett
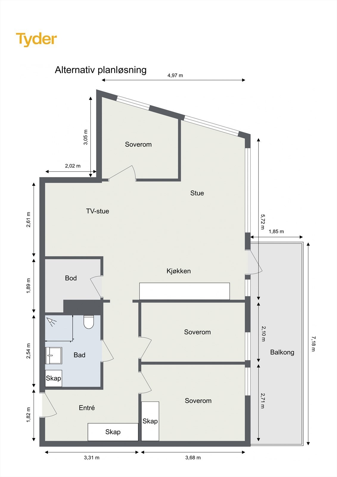
- God planløsning m/flere soner (se alt. plantegning)
- Balansert ventilasjon
- Store fellesarealer & felles solrik takterrass
En meget attraktiv & lys 3-roms selveierleilighet m/hjørnebeliggenhet, vinduer på to sider & et av sameiets beste beliggenheter. Det er direkte heisadkomst fra garasjen til etasjeplan, en ekte "easy living" følelse. Her bor du meget attraktivt til m/nærhet til alt byen har å by på!
Høydepunkter:
- Hjørneleilighet i 4 etg m/ettertraktet beliggenhet i sameiet
- Garasjeplass m/lader medfølger
- Trappefri adkomst, heisadkomst fra garasjeplan
- Stor solrik balkong på 13 m²
- Varmtvann/fyring/bredbånd/internett ink.
- Gode lagringsmuligheter
- Store vindusflater
- Nyslipt eikeparkett
- God planløsning m/flere soner (se alt. plantegning)
- Balansert ventilasjon
- Store fellesarealer & felles solrik takterrass
NB: Knappen for å vise hele beskrivelsen har kun en visuell effekt.
NB: Knappen for å vise hele beskrivelsen har kun en visuell effekt.
Salgsoppgaven beskriver vesentlig og lovpålagt informasjon om eiendommen
Se komplett salgsoppgaveNyttige lenker
Nærområdet
Nordvik Frogner
Annonseinformasjon
| FINN-kode | 453104970 |
|---|---|
| Sist endret | 28. feb. 2026 19:36 |
| Referanse | 14-0754/25 |
Annonsene kan være mangelfulle i forhold til lovpålagt opplysningsplikt. Før bindende avtale inngås oppfordres interessenter til å innhente komplett informasjon fra meglerforetaket, selger eller utleier.






































