Bildegalleri

Jørn Andersen og EIE eiendomsmegling ønsker velkommen til Hoksrødveien 22
NYHET! Landlig enebolig med god standard, garasje, driftsbygning og stor tomt m/muligheter. Solrikt! Kort vei til Andebu
Prisantydning7 350 000 kr
Nøkkelinfo
- Boligtype
- Enebolig
- Eieform
- Eier (Selveier)
- Soverom
- 5
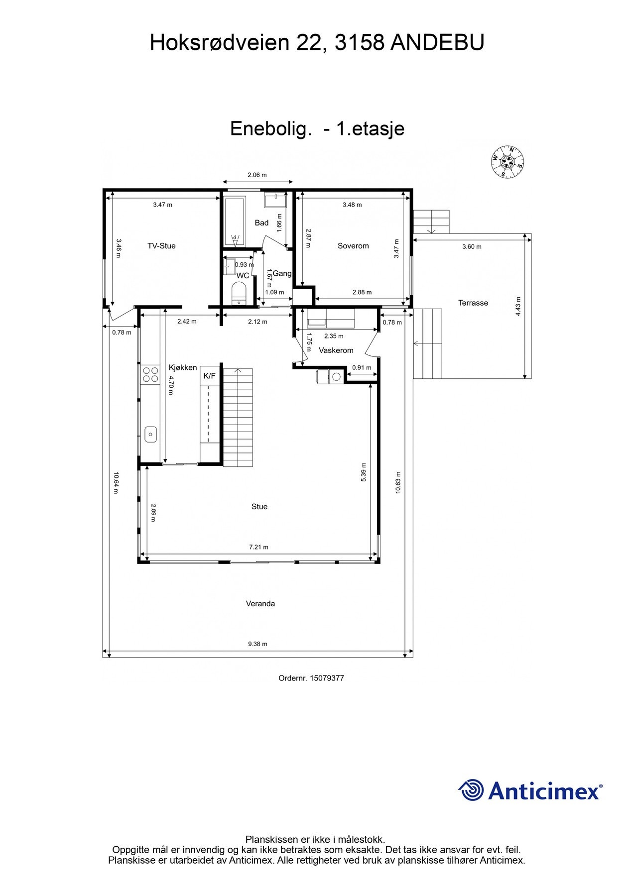
- Internt bruksareal
- 173 m² (BRA-i)
- Bruksareal
- 290 m²
- Eksternt bruksareal
- 117 m² (BRA-e)
- Balkong/Terrasse
- 54 m² (TBA)
- Byggeår
- 1982
- Energimerking
- D - Gul
- Tomteareal
- 2 523 m² (eiet)
Fasiliteter
Barnevennlig
Balkong/Terrasse
Garasje/P-plass
Offentlig vann/kloakk
Ingen gjenboere
Peis/Ildsted
Turterreng
Utsikt
Bredbåndstilknytning
Om boligen
EIE Eiendomsmegling ønsker velkommen til Hoksrødveien 22 - en romslig enebolig på stor tomt som gir god plass til hele familien, både inne og ute. Boligen ligger i blindvei i et område med flere eneboliger, med lite trafikk og trygge omgivelser. Tomten er omkranset av hekk og gir usjenerte uteområder for lek, avslapning og beplantning.
Boligen har en særegen planløsning med store vindusflater som gir flott utsyn og rikelig lysinnslipp. Her finner du stue, kjøkken, fem soverom, to bad, separat toalett, vaskerom og god lagringsplass. Parkeringsmuligheter er gode med asfaltert innkjørsel, carport og garasje.
Hoksrødveien 22 har en barnevennlig beliggenhet med gangavstand til turområder, skoler, barnehager og Andebu sentrum, hvor du finner matbutikker, bibliotek, frisør, apotek og kollektivtransport til både Sandefjord og Tønsberg.
Dette er en bolig som kombinerer romslighet, lys og moderne funksjonalitet med en trygg og familievennlig beliggenhet. Velkommen til visning!
Boligen har en særegen planløsning med store vindusflater som gir flott utsyn og rikelig lysinnslipp. Her finner du stue, kjøkken, fem soverom, to bad, separat toalett, vaskerom og god lagringsplass. Parkeringsmuligheter er gode med asfaltert innkjørsel, carport og garasje.
Hoksrødveien 22 har en barnevennlig beliggenhet med gangavstand til turområder, skoler, barnehager og Andebu sentrum, hvor du finner matbutikker, bibliotek, frisør, apotek og kollektivtransport til både Sandefjord og Tønsberg.
Dette er en bolig som kombinerer romslighet, lys og moderne funksjonalitet med en trygg og familievennlig beliggenhet. Velkommen til visning!
NB: Knappen for å vise hele beskrivelsen har kun en visuell effekt.
NB: Knappen for å vise hele beskrivelsen har kun en visuell effekt.
Salgsoppgaven beskriver vesentlig og lovpålagt informasjon om eiendommen
Se komplett salgsoppgaveNyttige lenker
Nærområdet
EIE eiendomsmegling Stokke
Annonseinformasjon
| FINN-kode | 453073586 |
|---|---|
| Sist endret | 28. feb. 2026 18:03 |
| Referanse | 88260009 |
Annonsene kan være mangelfulle i forhold til lovpålagt opplysningsplikt. Før bindende avtale inngås oppfordres interessenter til å innhente komplett informasjon fra meglerforetaket, selger eller utleier.





























































