Bildegalleri

Velkommen til denne flotte boligen i Gjerdegarden 1!

Langevåg

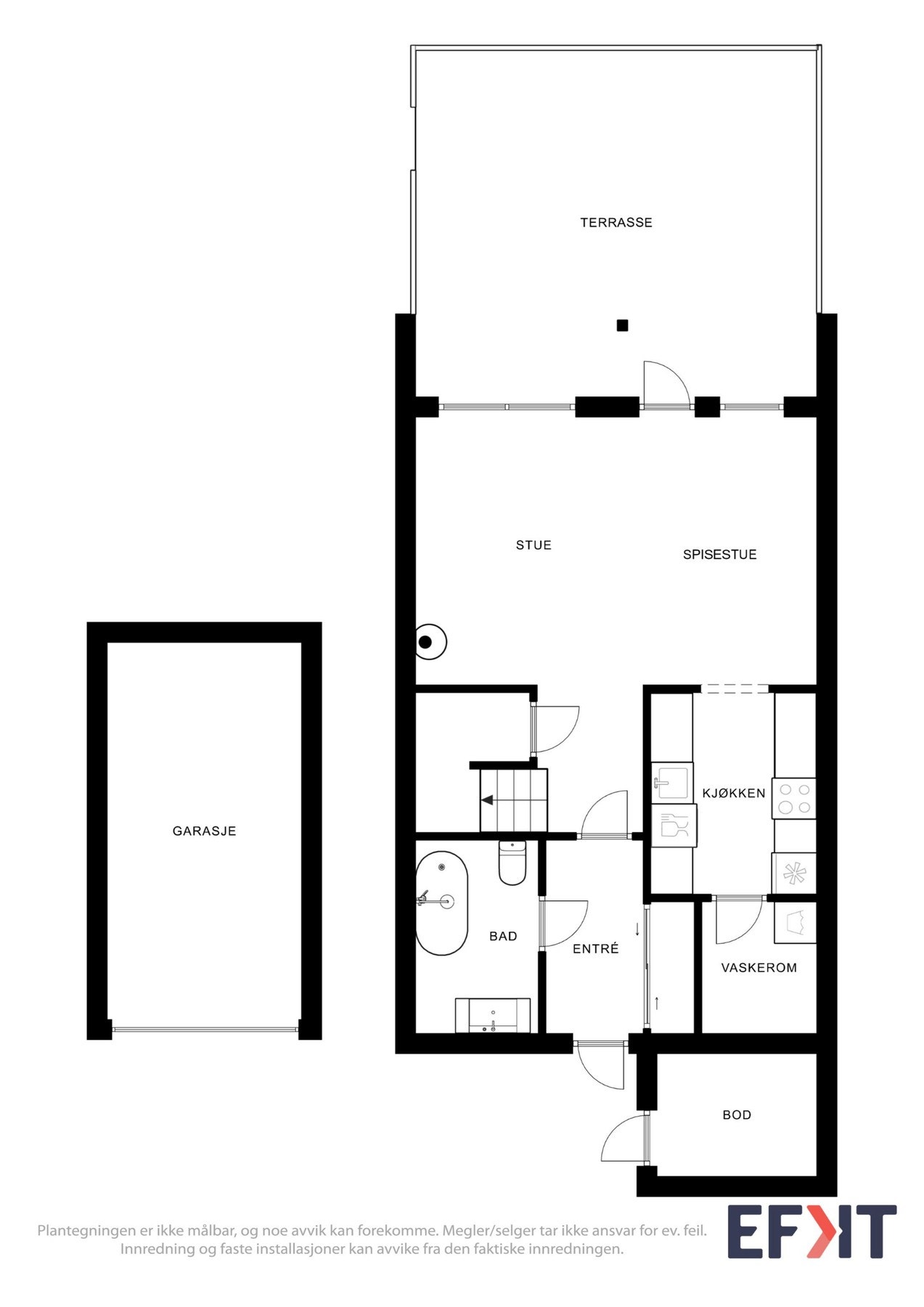
Velholdt enderekkehus over to plan med fire soverom, to bad, hage og carport. Sentral beliggenhet i barnevennlig område.

Prisantydning3 400 000 kr
Totalpris
3 486 090 kr
Omkostninger
86 090 kr
Felleskost/mnd.
450 kr
Kommunale avg.
23 895 kr per år
Eiendomsskatt
2 166 kr per år
Formuesverdi
775 000 kr

Nøkkelinfo

Boligtype
Rekkehus
Eieform
Eier (Selveier)
Soverom
4
Internt bruksareal
104 m² (BRA-i)
Bruksareal
109 m²
Eksternt bruksareal
5 m² (BRA-e)
Balkong/Terrasse
34 m² (TBA)
Etasje
2
Byggeår
2017
Tomteareal
185 m² (eiet)

Les mer om bruksareal her

Fasiliteter

Barnevennlig
Balkong/Terrasse
Garasje/P-plass
Offentlig vann/kloakk
Peis/Ildsted
Turterreng
Sentralt
Bredbåndstilknytning
Moderne
Rolig
Lademulighet
Balansert ventilasjon

Visning

torsdag, 12. mars
17:00 – 18:00
Velkommen til visning! Alle våre visninger har påmelding. På denne måten sikrer vi at megler har god oversikt og tid til å imøtekomme alle interessenter på beste måte. Dette er veldig verdifullt for boligkjøpere og for oss. Det er enkelt å melde seg på, og du kan like enkelt melde deg av. Kontakt også gjerne megler i forkant av visning dersom du har spørsmål.
Visningspåmelding

Om boligen

PrivatMegleren Ålesund presenterer et flott og velholdt enderekkehus som ligger fint til i et rolig område like ved Langevåg sentrum.

Eiendommen har en barnevennlig beliggenhet i et veletablert byggefelt. Området er rolig, og i gangavstand fra daglige servicetilbud i Langevåg. Det er også gangavstand til skoler, barnehage og treningssenter, idrettsanlegg, kollektivtilbud, samt utmerket tur- og friluftsterreng.

Boligen som er fra 2017 går over to plan og holder gjennomgående god standard på innredninger og overflater. Den har en meget god planløsning, og et pent og moderne fargevalg. Her får du blant annet en romslig åpen stue/kjøkken-løsning, ett bad i hver etasje, hele fire soverom og godt med lagringsplass. Boligen har balansert ventilasjon og vedovn for kos og varme i stuen.

Stor, solrik terrasse, veranda og hage mot sør og egen carport med el-bil lader.

Dette er en bolig du kan flytte rett inn og trives fra dag én!

Velkommen til visning - Husk å melde deg på!

Salgsoppgaven beskriver vesentlig og lovpålagt informasjon om eiendommen

Se komplett salgsoppgave

Nærområdet

Annonseinformasjon

FINN-kode453037128
Sist endret27. feb. 2026 21:29
Referanse313260044

Rapporter annonse

Annonsene kan være mangelfulle i forhold til lovpålagt opplysningsplikt. Før bindende avtale inngås oppfordres interessenter til å innhente komplett informasjon fra meglerforetaket, selger eller utleier.