Bildegalleri

Velkommen til Peter Solemdals veg 44! (Foto er stylet digitalt)
Enderekkehus med sørvendt veranda og flott utsikt - 3 soverom - Garasje - 2 nyere bad
Prisantydning3 890 000 kr
Nøkkelinfo
- Boligtype
- Rekkehus
- Eieform
- Andel
- Soverom
- 3
- Internt bruksareal
- 119 m² (BRA-i)
- Bruksareal
- 119 m²
- Balkong/Terrasse
- 24 m² (TBA)
- Byggeår
- 1982
- Rom
- 4
- Tomteareal
- 26 098 m² (eiet)
Fasiliteter
Barnevennlig
Balkong/Terrasse
Garasje/P-plass
Kabel-TV
Offentlig vann/kloakk
Parkett
Turterreng
Utsikt
Moderne
Rolig
Visning
mandag, 09. mars
18:00 – 19:00
Velkommen til visning!
Alle våre visninger har påmelding. På denne måten sikrer vi at megler har god oversikt og tid til å imøtekomme alle interessenter på beste måte. Dette er veldig verdifullt for boligkjøpere og for oss. Det er enkelt å melde seg på, og du kan like enkelt melde deg av. Kontakt også gjerne megler i forkant av visning dersom du har spørsmål.
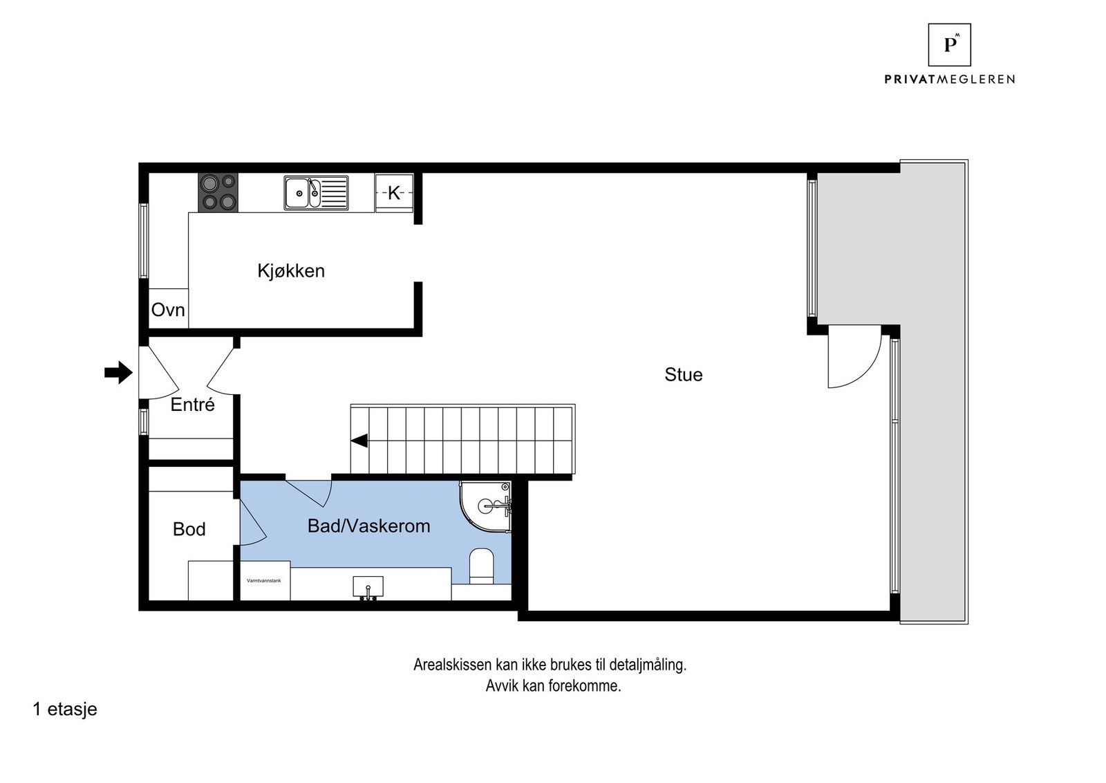
Om boligen
Velkommen til Peter Solemdals veg 44 - I populære Kringsjå Borettslag finner du dette attraktive enderekkehuset med sørvendt veranda, nydelig utsikt og en rolig, barnevennlig beliggenhet. Her bor du med umiddelbar nærhet til flotte turområder i Moldemarka - samtidig som det er kort vei til sentrum.
Boligen fremstår som godt vedlikeholdt og oppgradert de senere år, med blant annet kjøkken fra 2018, bad i underetasje fra 2018 og nyere bad/vaskerom i 1. etasje fra 2022. Planløsningen er familievennlig med tre gode soverom og to romslige bad - perfekt for både små og større familier. Her kan du flytte rett inn og nyte en praktisk og komfortabel hverdag.
Velkommen til en hyggelig visning!
Boligen fremstår som godt vedlikeholdt og oppgradert de senere år, med blant annet kjøkken fra 2018, bad i underetasje fra 2018 og nyere bad/vaskerom i 1. etasje fra 2022. Planløsningen er familievennlig med tre gode soverom og to romslige bad - perfekt for både små og større familier. Her kan du flytte rett inn og nyte en praktisk og komfortabel hverdag.
Velkommen til en hyggelig visning!
NB: Knappen for å vise hele beskrivelsen har kun en visuell effekt.
NB: Knappen for å vise hele beskrivelsen har kun en visuell effekt.
Salgsoppgaven beskriver vesentlig og lovpålagt informasjon om eiendommen
Se komplett salgsoppgaveNyttige lenker
Nærområdet
Privatmegleren Molde
Kun det beste på dine vegne
Annonseinformasjon
| FINN-kode | 453030851 |
|---|---|
| Sist endret | 27. feb. 2026 20:29 |
| Referanse | 45251215 |
Annonsene kan være mangelfulle i forhold til lovpålagt opplysningsplikt. Før bindende avtale inngås oppfordres interessenter til å innhente komplett informasjon fra meglerforetaket, selger eller utleier.

































