Bildegalleri

Velkommen til Langbølgen 50!
Munkelia / Lambertseter
Luksuriøs og stilren 4-r. i høy 1. etg. | Renovert 2026 | Innglasset balkong m/ flott utsyn | Peis & gulvvarme | 3 boder
Prisantydning6 490 000 kr
Nøkkelinfo
- Boligtype
- Leilighet
- Eieform
- Andel
- Soverom
- 3
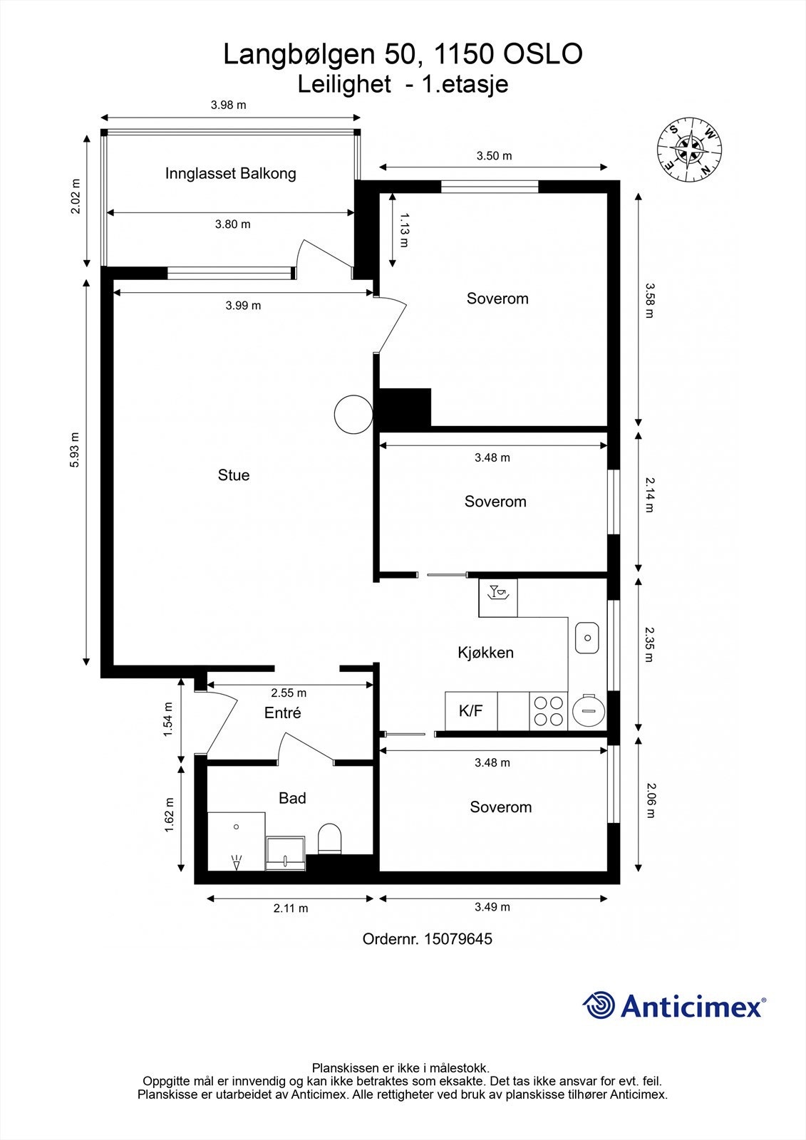
- Internt bruksareal
- 71 m² (BRA-i)
- Bruksareal
- 90 m²
- Eksternt bruksareal
- 10 m² (BRA-e)
- Innglasset balkong
- 9 m² (BRA-b)
- Etasje
- 1
- Byggeår
- 1966
- Energimerking
- E - Oransje
- Rom
- 4
- Tomteareal
- 29 907 m² (eiet)
Fasiliteter
Balkong/Terrasse
Barnevennlig
Fellesvaskeri
Kjæledyr tillatt
Ingen gjenboere
Offentlig vann/kloakk
Peis/Ildsted
Rolig
Utsikt
Vaktmester-/vektertjeneste
Turterreng
Om boligen
Velkommen til Langbølgen 50! En strøken og unik 4-romsleilighet med etterspurt beliggenhet.
Her bor du i en bolig med en umiddelbar følelse av kvalitet. Leiligheten ligger i en høy 1. etasje (skråning + leilighet under), med en innglasset balkong som forlenger stuen. Beliggenheten er rolig og familievennlig, med kort vei til butikker, T-bane og buss, samt lysløype rett bak blokken. Nyt en enklere hverdag med marka som nærmeste nabo for flotte turopplevelser.
Høydepunkter:
- Totalrenovert innvendig i 2026
- KVIK-kjøkken og lekkert bad
- Peis i stuen gulvvarme i alle rom
- Smartstyring på gulvvarme og lys
- Få trappetrinn til leil.
- Inngl. balkong på 9 m² med fint utsyn/ingen innsyn
- 3 soverom
- 3 boder + fine fellesarealer
- Romslig stue uten innsyn
- Munker skolekrets
Her bor du i en bolig med en umiddelbar følelse av kvalitet. Leiligheten ligger i en høy 1. etasje (skråning + leilighet under), med en innglasset balkong som forlenger stuen. Beliggenheten er rolig og familievennlig, med kort vei til butikker, T-bane og buss, samt lysløype rett bak blokken. Nyt en enklere hverdag med marka som nærmeste nabo for flotte turopplevelser.
Høydepunkter:
- Totalrenovert innvendig i 2026
- KVIK-kjøkken og lekkert bad
- Peis i stuen gulvvarme i alle rom
- Smartstyring på gulvvarme og lys
- Få trappetrinn til leil.
- Inngl. balkong på 9 m² med fint utsyn/ingen innsyn
- 3 soverom
- 3 boder + fine fellesarealer
- Romslig stue uten innsyn
- Munker skolekrets
NB: Knappen for å vise hele beskrivelsen har kun en visuell effekt.
NB: Knappen for å vise hele beskrivelsen har kun en visuell effekt.
Salgsoppgaven beskriver vesentlig og lovpålagt informasjon om eiendommen
Se komplett salgsoppgaveNyttige lenker
Nærområdet
Krogsveen Oppsal
Verdien av en god megler.
Annonseinformasjon
| FINN-kode | 453015460 |
|---|---|
| Sist endret | 01. mars 2026 15:25 |
| Referanse | KR45.25102 |
Annonsene kan være mangelfulle i forhold til lovpålagt opplysningsplikt. Før bindende avtale inngås oppfordres interessenter til å innhente komplett informasjon fra meglerforetaket, selger eller utleier.



























































