Bildegalleri

Velkommen til Stasjonsveien 9, presentert av Proaktiv v/Ola Skarra Arnesen.
Skotselv
Frittliggende enebolig over tre plan med garasje, hageareal og terrasse. To kjøkken. Bad fra 2020. Tomt på over 1,3 mål.
Prisantydning3 500 000 kr
Nøkkelinfo
- Boligtype
- Enebolig
- Eieform
- Eier (Selveier)
- Soverom
- 2
- Internt bruksareal
- 184 m² (BRA-i)
- Bruksareal
- 230 m²
- Eksternt bruksareal
- 46 m² (BRA-e)
- Balkong/Terrasse
- 40 m² (TBA)
- Energimerking
- D
- Tomteareal
- 1 377 m² (eiet)
Fasiliteter
Balkong/Terrasse
Barnevennlig
Garasje/P-plass
Hage
Kjæledyr tillatt
Ingen gjenboere
Kabel-TV
Offentlig vann/kloakk
Parkett
Peis/Ildsted
Rolig
Sentralt
Utsikt
Turterreng
Visning
mandag, 09. mars
16:30 – 17:30
For at vår megler og selger skal kunne gi deg den beste oppfølgingen og kjøpsopplevelsen er det obligatorisk påmelding til alle våre visninger. Dersom ditt reserverte tidspunkt likevel ikke kan benyttes trenger vi beskjed så tidlig som mulig sånn at vi kan finne en alternativ løsning. Vi har alltid tid til deg. Visninger uten påmeldte deltagere avlyses.
VisningspåmeldingOm boligen
Frittliggende enebolig i Stasjonsveien 9 i Skotselv. Skotselv er et koselig, lite tettsted i Øvre Eiker kommune som ligger på vestsiden av Drammenselva, mellom Hokksund og Åmot. Her har du hverdagens nødvendigheter i eget nærmiljø, samt kort kjøreavstand til Hokksund, Drammen og Åmot med ytterligere servicetilbud.
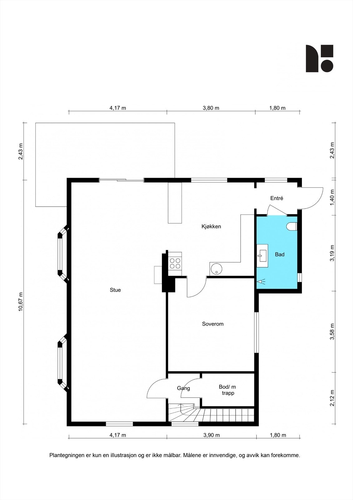
Huset går over tre plan og består av følgende;
1. etasje med entré, bad, soverom, kjøkken, stue, trappegang og bod m/luke til kjeller. En etasje opp ligger gang, bad, soverom, bod og stue/kjøkken. Mulighet for å etablere flere soverom. Kjeller med seks boder.
Tomt på over 1,3 mål med stor gårdsplass, frittliggende garasje og fine uteplasser med hage og terrasse. Veranda i 2. etasje med trapp opp fra bakkeplan.
Huset går over tre plan og består av følgende;
1. etasje med entré, bad, soverom, kjøkken, stue, trappegang og bod m/luke til kjeller. En etasje opp ligger gang, bad, soverom, bod og stue/kjøkken. Mulighet for å etablere flere soverom. Kjeller med seks boder.
Tomt på over 1,3 mål med stor gårdsplass, frittliggende garasje og fine uteplasser med hage og terrasse. Veranda i 2. etasje med trapp opp fra bakkeplan.
NB: Knappen for å vise hele beskrivelsen har kun en visuell effekt.
NB: Knappen for å vise hele beskrivelsen har kun en visuell effekt.
Salgsoppgaven beskriver vesentlig og lovpålagt informasjon om eiendommen
Se komplett salgsoppgaveNyttige lenker
Nærområdet
Proaktiv Eiendomsmegling Drammen, Lier & Holmestrand
Alltid tid til deg
Annonseinformasjon
| FINN-kode | 453010588 |
|---|---|
| Sist endret | 27. feb. 2026 17:50 |
| Referanse | 1600260069 |
Annonsene kan være mangelfulle i forhold til lovpålagt opplysningsplikt. Før bindende avtale inngås oppfordres interessenter til å innhente komplett informasjon fra meglerforetaket, selger eller utleier.

































