Bildegalleri

Velkommen til Sandstuveien 10 i Holtet Hageby- Stor og solrik klassisk villa | Hybel | 2 terrasser | Hage | Garasje
Bekkelaget/Holtet Hageby
Stor og solrik klassisk villa i Holtet Hageby | Hybel | Terrasser | Hage | Garasje
Prisantydning17 900 000 kr
Nøkkelinfo
- Boligtype
- Enebolig
- Eieform
- Eier (Selveier)
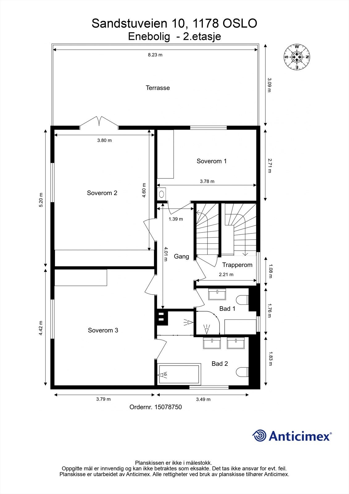
- Soverom
- 4
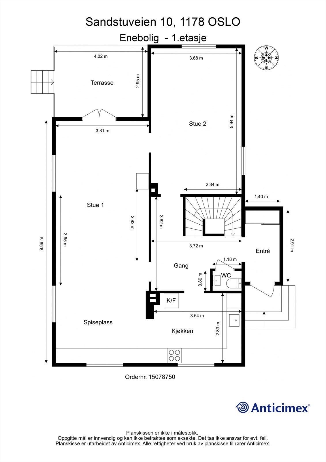
- Internt bruksareal
- 273 m² (BRA-i)
- Bruksareal
- 290 m²
- Eksternt bruksareal
- 17 m² (BRA-e)
- Balkong/Terrasse
- 37 m² (TBA)
- Byggeår
- 1924
- Energimerking
- F - Gul
- Tomteareal
- 550 m² (eiet)
Fasiliteter
Alarm
Balkong/Terrasse
Barnevennlig
Bredbåndstilknytning
Garasje/P-plass
Hage
Kabel-TV
Offentlig vann/kloakk
Parkett
Peis/Ildsted
Rolig
Lademulighet
Om boligen
Velkommen til Sandstuveien 10, en solrik klassisk villa i sjarmerende Holtet Hageby.
- Stor, pen og sjarmerende klassisk villa
- Innholdsrik og romslig planløsning
- Hybel etablert i 2012
- Stor hovedetasje med bl.a. 2 stuer
- Nytt kjøkken i 2018
- Master soverom med eget bad
- Klebersteinsovn
- Nye vinduer i hhv. 2012 og 2018
- Etterisolert yttervegger og lagt ny utvendig panel i 2018
- Nytt yttertak i 2018
- Drenert i 2012
- Nye utvendig vann- og avløpsledninger i 2012
- Innvendig soilrør skiftet i 2008
- 2 solrike terrasser og hage
- Barnevennlig beliggenhet i attraktivt villaområde
- Umiddelbar nærhet til Ekebergsletta
- Nærhet til Bekkelaget skole og Brannfjell ungdomsskole
NB: Knappen for å vise hele beskrivelsen har kun en visuell effekt.
NB: Knappen for å vise hele beskrivelsen har kun en visuell effekt.
Salgsoppgaven beskriver vesentlig og lovpålagt informasjon om eiendommen
Se komplett salgsoppgaveNyttige lenker
Nærområdet
Krogsveen Nordstrand
Verdien av en god megler.
Annonseinformasjon
| FINN-kode | 453000554 |
|---|---|
| Sist endret | 01. mars 2026 07:50 |
| Referanse | KR44.268 |
Annonsene kan være mangelfulle i forhold til lovpålagt opplysningsplikt. Før bindende avtale inngås oppfordres interessenter til å innhente komplett informasjon fra meglerforetaket, selger eller utleier.















































































