Bildegalleri

Velkommen til Ullernkammen 26! Foto: Hanne Bruland.
Ullernåsen/Røa
Lys og gjennomgående 4-roms med to balkonger - Fantastisk utsikt - Parkering i garasje med elbillader
Prisantydning9 950 000 kr
Nøkkelinfo
- Boligtype
- Leilighet
- Eieform
- Eier (Selveier)
- Soverom
- 3
- Internt bruksareal
- 136 m² (BRA-i)
- Bruksareal
- 143 m²
- Eksternt bruksareal
- 7 m² (BRA-e)
- Balkong/Terrasse
- 28 m² (TBA)
- Etasje
- 3
- Byggeår
- 1976
- Energimerking
- D - Rød
- Tomteareal
- 83 300 m² (eiet)
Fasiliteter
Barnevennlig
Balkong/Terrasse
Garasje/P-plass
Kabel-TV
Offentlig vann/kloakk
Ingen gjenboere
Parkett
Turterreng
Utsikt
Vaktmester-/vektertjeneste
Bredbåndstilknytning
Rolig
Lademulighet
Om boligen
Velkommen til Ullernkammen 26!
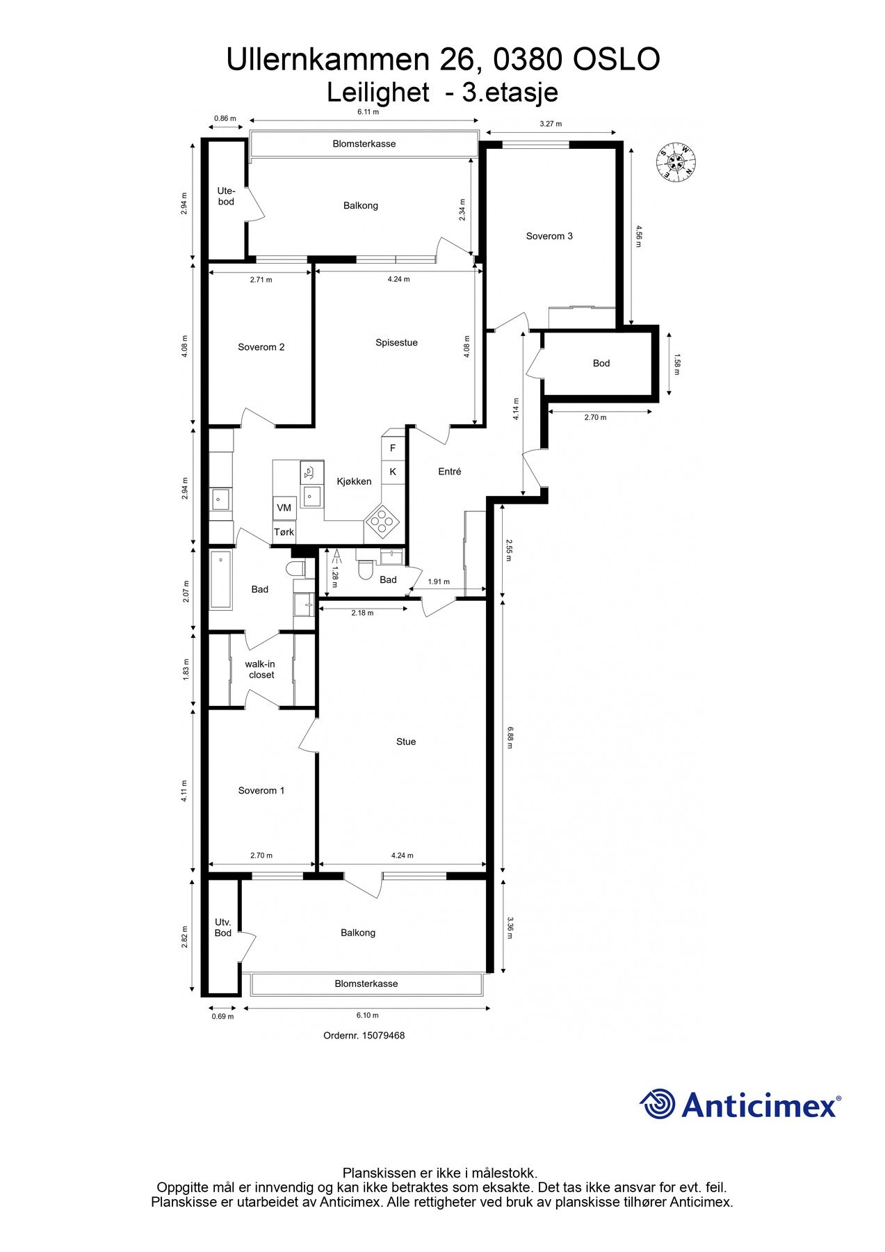
Stor, lys og gjennomgående 4-roms selveierleilighet med god planløsning og fantastisk utsikt. Leiligheten har to flotte terrasser - én med utgang fra kjøkken/spisestue hvor du kan nyte soloppgangen, og én med utgang fra stuen med herlig ettermiddagssol.
Boligen byr på en romslig hall/entré med praktisk skyvedørsgarderobe, tre gode soverom med plass til dobbeltseng, samt to bad/wc. Kjøkkenet har tilknytning til eget grovkjøkken med opplegg for vaskemaskin, som gir ekstra oppbevaringsplass og funksjonalitet i hverdagen.
Det er rikelig med lagringsplass i leiligheten, med to boder på terrassene, innvendig bod samt kjellerbod.
Verdt å merke seg:
- Gjennomgående planløsning
- 4 boder
- Parkeringsplass i garasje med elbillader
- Fantastisk utsikt over Oslo by
- Varmtvann og internett inkl. i fellesutgiftene
- Felles sykkelbod og smørebod
Mangler du egenkapital? Boligen kan kjøpes med Finit Deleie.
Velkommen til visning!
Stor, lys og gjennomgående 4-roms selveierleilighet med god planløsning og fantastisk utsikt. Leiligheten har to flotte terrasser - én med utgang fra kjøkken/spisestue hvor du kan nyte soloppgangen, og én med utgang fra stuen med herlig ettermiddagssol.
Boligen byr på en romslig hall/entré med praktisk skyvedørsgarderobe, tre gode soverom med plass til dobbeltseng, samt to bad/wc. Kjøkkenet har tilknytning til eget grovkjøkken med opplegg for vaskemaskin, som gir ekstra oppbevaringsplass og funksjonalitet i hverdagen.
Det er rikelig med lagringsplass i leiligheten, med to boder på terrassene, innvendig bod samt kjellerbod.
Verdt å merke seg:
- Gjennomgående planløsning
- 4 boder
- Parkeringsplass i garasje med elbillader
- Fantastisk utsikt over Oslo by
- Varmtvann og internett inkl. i fellesutgiftene
- Felles sykkelbod og smørebod
Mangler du egenkapital? Boligen kan kjøpes med Finit Deleie.
Velkommen til visning!
NB: Knappen for å vise hele beskrivelsen har kun en visuell effekt.
NB: Knappen for å vise hele beskrivelsen har kun en visuell effekt.
Salgsoppgaven beskriver vesentlig og lovpålagt informasjon om eiendommen
Se komplett salgsoppgaveNyttige lenker
Nærområdet
EIE eiendomsmegling Vinderen
Annonseinformasjon
| FINN-kode | 452992212 |
|---|---|
| Sist endret | 03. mars 2026 09:36 |
| Referanse | 31260023 |
Annonsene kan være mangelfulle i forhold til lovpålagt opplysningsplikt. Før bindende avtale inngås oppfordres interessenter til å innhente komplett informasjon fra meglerforetaket, selger eller utleier.













































