Bildegalleri

Velkommen til Teiealleen 12! Fotograf Hege K. Leren (Bildet er digitalt stylet)
Nannestad
Lys og moderne 3-roms leilighet fra 2021 i Nannestad sentrum | God planløsning | Balkong | Heis | Garasjeplass
Prisantydning3 100 000 kr
Nøkkelinfo
- Boligtype
- Leilighet
- Eieform
- Eier (Selveier)
- Soverom
- 2
- Internt bruksareal
- 60 m² (BRA-i)
- Bruksareal
- 60 m²
- Balkong/Terrasse
- 9 m² (TBA)
- Etasje
- 2
- Byggeår
- 2021
- Energimerking
- B - Lysegrønn
- Rom
- 3
- Tomteareal
- 731 m² (eiet)
Fasiliteter
Alpinanlegg
Balkong/Terrasse
Barnevennlig
Bredbåndstilknytning
Garasje/P-plass
Heis
Kjæledyr tillatt
Offentlig vann/kloakk
Rolig
Sentralt
Utsikt
Bademulighet
Turterreng
Lademulighet
Balansert ventilasjon
Visning
mandag, 09. mars
17:00 – 18:00
For å delta på visning, ber vi om at du melder deg på. Da sikrer vi at du får nødvendig informasjon og at det er satt av tilstrekkelig med tid.
NB. Visning utgår dersom det ikke er noen påmeldte.
VisningspåmeldingOm boligen
Velkommen til Teiealleen 12 - en lys og moderne leilighet midt i sentrum av Nannestad. Her kan du flytte rett inn i bygg oppført i 2021 og ha gangavstand til alt du trenger som butikker og servicetilbud. Det er gangavstand til Preståsen barneskole, Nannestad videregående og barnehage. Nærhet til flotte tur- og friluftsområder i Romeriksåsen.
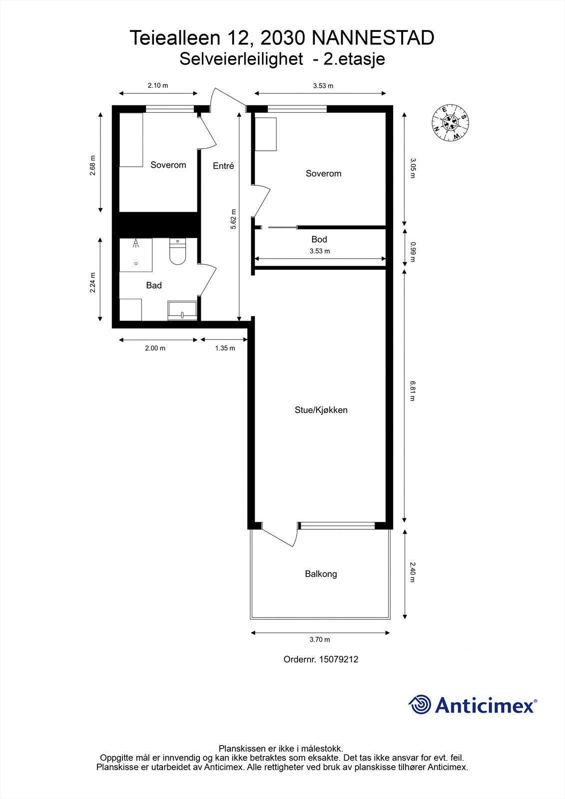
Leiligheten ligger i 2. etg. og inneholder entré, to soverom, bad, stue/kjøkken, bod. Det er åpen kjøkken- og stueløsning med god plass til både sofagruppe og spisebord. Fra stuen er det utgang til balkong på 9 kvm. Soverommene har garderobeskap. Delikat baderom og innbydende entré med god oppbevaringsplass. Leiligheten har malte veggflater og himlingsflater. Laminat på gulv. Boligen disponerer en kjellerbod på 5 kvm. og en garasjeplass.
Leiligheten ligger i 2. etg. og inneholder entré, to soverom, bad, stue/kjøkken, bod. Det er åpen kjøkken- og stueløsning med god plass til både sofagruppe og spisebord. Fra stuen er det utgang til balkong på 9 kvm. Soverommene har garderobeskap. Delikat baderom og innbydende entré med god oppbevaringsplass. Leiligheten har malte veggflater og himlingsflater. Laminat på gulv. Boligen disponerer en kjellerbod på 5 kvm. og en garasjeplass.
NB: Knappen for å vise hele beskrivelsen har kun en visuell effekt.
NB: Knappen for å vise hele beskrivelsen har kun en visuell effekt.
Salgsoppgaven beskriver vesentlig og lovpålagt informasjon om eiendommen
Se komplett salgsoppgaveNyttige lenker
Nærområdet
Krogsveen Jessheim
Verdien av en god megler.
Annonseinformasjon
| FINN-kode | 452980333 |
|---|---|
| Sist endret | 28. feb. 2026 07:41 |
| Referanse | KR63.25256 |
Annonsene kan være mangelfulle i forhold til lovpålagt opplysningsplikt. Før bindende avtale inngås oppfordres interessenter til å innhente komplett informasjon fra meglerforetaket, selger eller utleier.






















