Bildegalleri

Velkommen til Rambergveien 35, presentert av PrivatMegleren v/ Bettina Ranheim Grønseth
Romslig og lekker 3-roms selveier - God standard - 2 flotte balkonger - Garasjeplass - Særdeles attraktiv beliggenhet!
Prisantydning6 779 000 kr
Nøkkelinfo
- Boligtype
- Leilighet
- Eieform
- Selveier
- Soverom
- 2
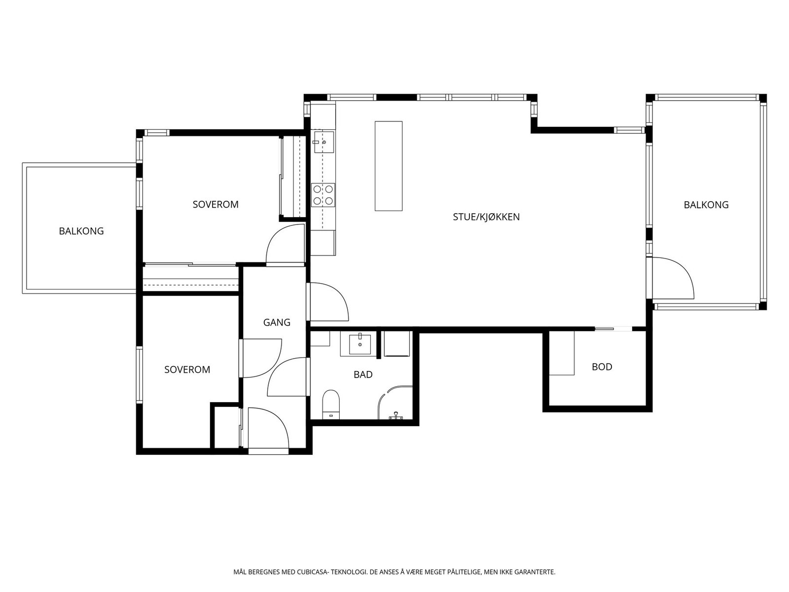
- Internt bruksareal
- 81 m² (BRA-i)
- Bruksareal
- 99 m²
- Eksternt bruksareal
- 6 m² (BRA-e)
- Innglasset balkong
- 12 m² (BRA-b)
- Balkong/Terrasse
- 8 m² (TBA)
- Etasje
- 5
- Byggeår
- 2015
- Rom
- 3
- Tomteareal
- 814 m² (eiet)
Fasiliteter
Balkong/Terrasse
Garasje/P-plass
Heis
Offentlig vann/kloakk
Parkett
Turterreng
Vaktmester-/vektertjeneste
Sentralt
Moderne
Bademulighet
Lademulighet
Balansert ventilasjon
Om boligen
Velkommen til Rambergveien 35 - en moderne, romslig og innbydende 3-roms selveierleilighet fra 2016. Beliggenheten er særdeles sentral og attraktiv, rett ved kanten av Byfjorden, og med umiddelbar nærhet til spisesteder, matbutikk, kultur og badesteder. Fantastisk utsikt over kanalen og Brygga nytes på to herlige balkonger i hver sin himmelretning, og bilen parkeres på egen plass i felles garasjeanlegg med egen elbillader.
Leiligheten fremstår med tidsmessige farge- og materialvalg, god standard og luftig planløsning. Stuen og kjøkkenet danner et herlig allrom med gulvvarme og utsikt, og kjøkkenet har alle hvitevarer integrert. Videre er det et helfliset bad/wc/vaskerom, en pen entré og to gode soverom. Flere rom har skyvedørsgarderober, og lagringsplass finnes i en innebod og i en disponibel kjellerbod.
Leiligheten fremstår med tidsmessige farge- og materialvalg, god standard og luftig planløsning. Stuen og kjøkkenet danner et herlig allrom med gulvvarme og utsikt, og kjøkkenet har alle hvitevarer integrert. Videre er det et helfliset bad/wc/vaskerom, en pen entré og to gode soverom. Flere rom har skyvedørsgarderober, og lagringsplass finnes i en innebod og i en disponibel kjellerbod.
NB: Knappen for å vise hele beskrivelsen har kun en visuell effekt.
NB: Knappen for å vise hele beskrivelsen har kun en visuell effekt.
Salgsoppgaven beskriver vesentlig og lovpålagt informasjon om eiendommen
Se komplett salgsoppgaveNyttige lenker
Nærområdet

PrivatMegleren Tønsberg
Kun det beste på dine vegne
Annonseinformasjon
| FINN-kode | 452946492 |
|---|---|
| Sist endret | 09. apr. 2026 10:00 |
| Referanse | 13260012 |
Annonsene kan være mangelfulle i forhold til lovpålagt opplysningsplikt. Før bindende avtale inngås oppfordres interessenter til å innhente komplett informasjon fra meglerforetaket, selger eller utleier.















































