Bildegalleri

Din lokale eiendomsmegler Aleksander Faksvåg Talgø har gleden av å presentere Røsandåsen 16! Foto: Interiørfoto AS
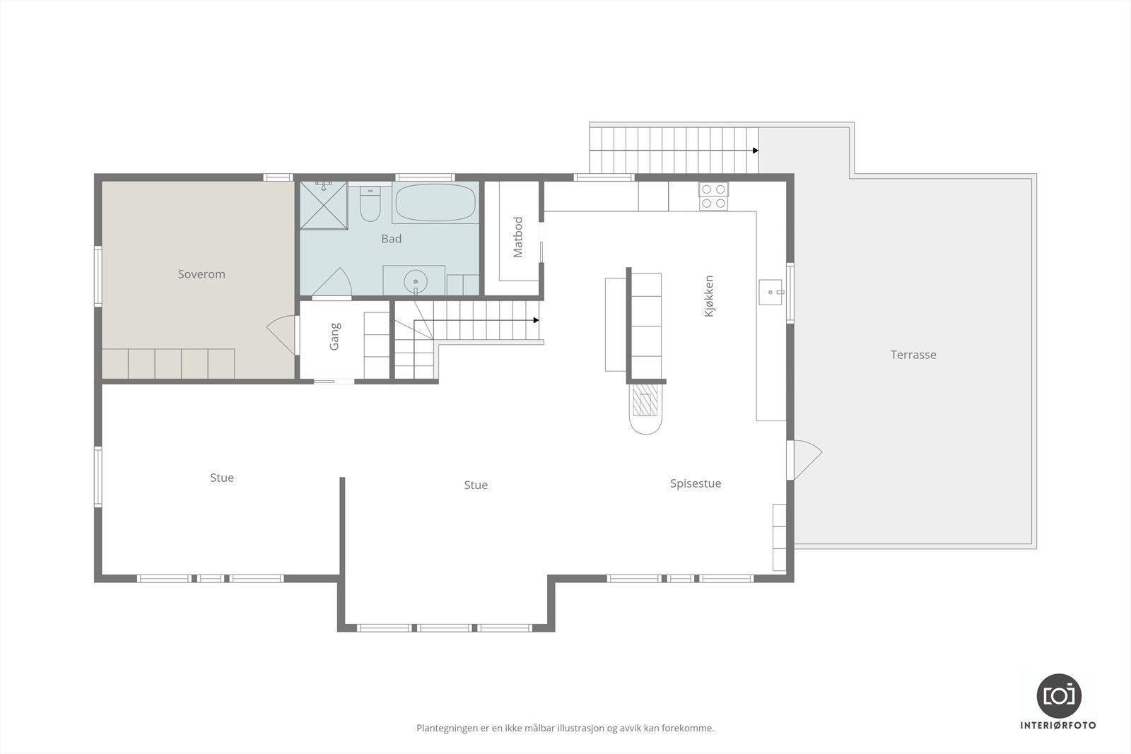
Innholdsrik enebolig på hele 247m² på Røsandåsen. 6 sov. 2 bad. Dobbelgarasje. Store terrasser. PÅMELDINGSVISNING!
Prisantydning6 950 000 kr
Nøkkelinfo
- Boligtype
- Enebolig
- Eieform
- Eier (Selveier)
- Soverom
- 6
- Internt bruksareal
- 247 m² (BRA-i)
- Bruksareal
- 291 m²
- Eksternt bruksareal
- 44 m² (BRA-e)
- Byggeår
- 2015
- Energimerking
- C
- Rom
- 7
- Tomteareal
- 821 m² (eiet)
Visning
onsdag, 11. mars
16:30 – 17:00
Vi i Notar ønsker å avholde så gode visninger som mulig. Derfor har vi påmeldingsvisninger. Da vet vi hvor mange som kommer, og kan sette av nok tid til alle. Trykk på linken visningspåmelding for å avtale tidspunkt. Visninger uten påmeldte innen kl. 16:00 dagen i forkant, vil ikke bli avholdt. Hvis det ikke er oppsatt visningstidspunkt eller oppsatt tidspunktet ikke skulle passe, kontakt megler for avtale om privatvisning. Velkommen til visning.
VisningspåmeldingOm boligen
Din lokale eiendomsmegler Aleksander Faksvåg Talgø har gleden av å presentere Røsandåsen 16. Boligen fra 2015 er meget innholdsrik og inneholder blant annet første etasje med entrè/hall, 5 soverom, tv-stue, bad, vaskerom og teknisk rom. Andre etasje inneholder stue, spisestue, kjøkken, bad og soverom. Boligen har en romslig følselse og moderne standard. Stor veranda og terrasse slik man kan flytte seg etter sola. Stor dobbelgarasje på 44m² fra 2020. Gode parkeringsmuligheter på egen tomt. Velkommen til visning!
NB: Knappen for å vise hele beskrivelsen har kun en visuell effekt.
NB: Knappen for å vise hele beskrivelsen har kun en visuell effekt.
Salgsoppgaven beskriver vesentlig og lovpålagt informasjon om eiendommen
Se komplett salgsoppgaveNærområdet
Notar Kristiansund
God magefølelse
Annonseinformasjon
| FINN-kode | 452941011 |
|---|---|
| Sist endret | 27. feb. 2026 13:56 |
| Referanse | NO4.2650 |
Annonsene kan være mangelfulle i forhold til lovpålagt opplysningsplikt. Før bindende avtale inngås oppfordres interessenter til å innhente komplett informasjon fra meglerforetaket, selger eller utleier.











































