Bildegalleri

Velkommen til Sjulhusvangveien 18! Foto levert av Efkt ved Martin Rindalsholt.
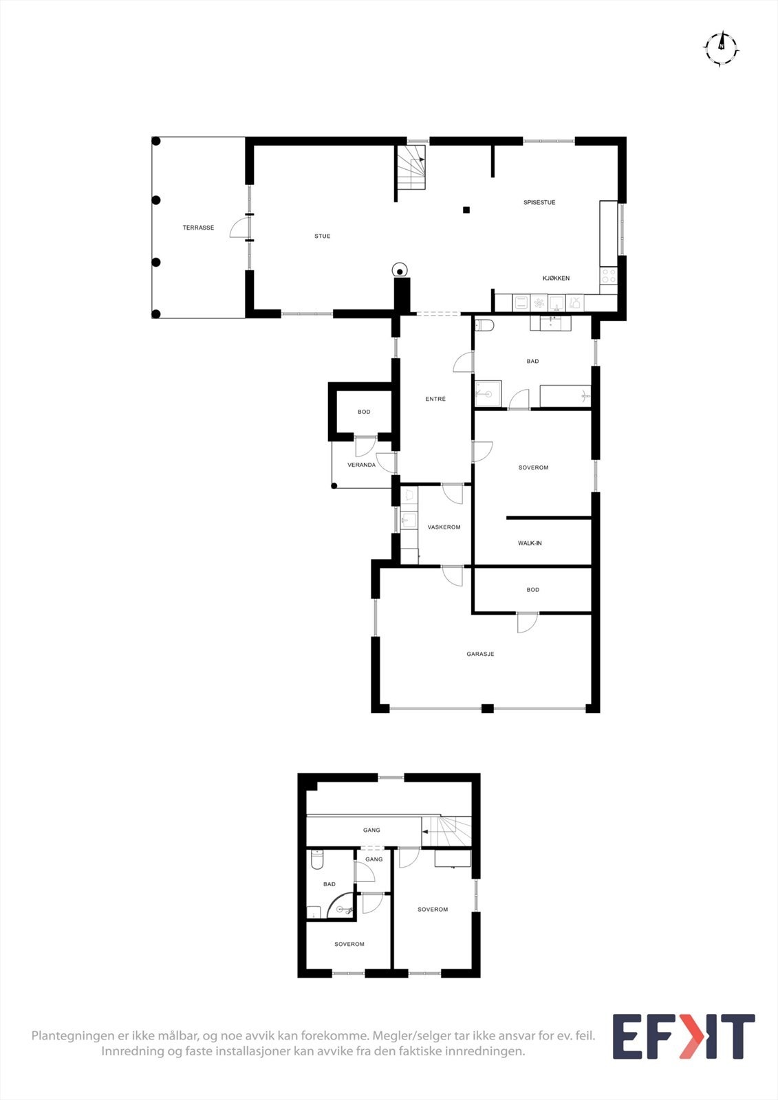
Moderne laftebolig (2022) med 3 sov og 2 bad | Vannbåren gulvvarme fra bergvarme | Dobbelgarasje
Prisantydning5 300 000 kr
Nøkkelinfo
- Boligtype
- Enebolig
- Eieform
- Eier (Selveier)
- Soverom
- 3
- Internt bruksareal
- 194 m² (BRA-i)
- Bruksareal
- 238 m²
- Eksternt bruksareal
- 44 m² (BRA-e)
- Balkong/Terrasse
- 16 m² (TBA)
- Byggeår
- 2022
- Energimerking
- B
- Rom
- 5
- Tomteareal
- 1 852 m² (eiet)
Fasiliteter
Barnevennlig
Bredbåndstilknytning
Garasje/P-plass
Hage
Kjæledyr tillatt
Ingen gjenboere
Offentlig vann/kloakk
Peis/Ildsted
Rolig
Utsikt
Turterreng
Visning
fredag, 20. mars
16:00 – 17:00
Ønsker du å delta på visningen ber vi deg melde deg på slik at vi vet at du kommer. Da kan vi bistå alle best mulig og gi deg tiden du trenger på visningen. Ta gjerne kontakt med megler før visning hvis du har noen spørsmål. Velkommen!
VisningspåmeldingOm boligen
Velkommen til Sjulhusvangveien 18! Her får du en tilnærmet ny og innholdsrik laftebolig fra 2022 med integrert dobbelgarasje.
Dette er en bolig som kombinerer tradisjonelt håndverk med moderne komfort. Huset har en flott beliggenhet med kort vei til Alvdals servicetilbud. Den åpne løsningen mellom stue og kjøkken skaper en sosial og luftig atmosfære.
Eiendommen har en fin og usjenert beliggenhet.
Høydepunkter:
- Nyere laftebolig fra 2022 oppført i 8-tommers norsk tømmer
- To garasjer
- Vannbåren gulvvarme i hele boligen fra bergvarme
- Stort Huseby-kjøkken med integrerte hvitevarer
- To bad, ett med badekar og ett med dusjkabinett
- Separat vaskerom med egen inngang fra garasjen
- Vestvendt uteplass, koselig uteområde
Velkommen!
Dette er en bolig som kombinerer tradisjonelt håndverk med moderne komfort. Huset har en flott beliggenhet med kort vei til Alvdals servicetilbud. Den åpne løsningen mellom stue og kjøkken skaper en sosial og luftig atmosfære.
Eiendommen har en fin og usjenert beliggenhet.
Høydepunkter:
- Nyere laftebolig fra 2022 oppført i 8-tommers norsk tømmer
- To garasjer
- Vannbåren gulvvarme i hele boligen fra bergvarme
- Stort Huseby-kjøkken med integrerte hvitevarer
- To bad, ett med badekar og ett med dusjkabinett
- Separat vaskerom med egen inngang fra garasjen
- Vestvendt uteplass, koselig uteområde
Velkommen!
NB: Knappen for å vise hele beskrivelsen har kun en visuell effekt.
NB: Knappen for å vise hele beskrivelsen har kun en visuell effekt.
Salgsoppgaven beskriver vesentlig og lovpålagt informasjon om eiendommen
Se komplett salgsoppgaveNyttige lenker
Nærområdet
EiendomsMegler 1 Tynset
Vi loser deg trygt gjennom hele boligsalget
Annonseinformasjon
| FINN-kode | 452924876 |
|---|---|
| Sist endret | 05. mars 2026 12:10 |
| Referanse | 6046260184 |
Annonsene kan være mangelfulle i forhold til lovpålagt opplysningsplikt. Før bindende avtale inngås oppfordres interessenter til å innhente komplett informasjon fra meglerforetaket, selger eller utleier.






































