Bildegalleri

Velkommen til Tidemands gate 31 - Her har vi gleden av å presentere en lys 2-roms med flott nordvest-vendt balkong.
Solgt
Frogner
Innholdsrik 2(3)-roms med ettertraktet beliggenhet | Balkong med kveldssol | Heis | P-plass kan kjøpes
Prisantydning7 000 000 kr
Nøkkelinfo
- Boligtype
- Leilighet
- Eieform
- Andel
- Soverom
- 1
- Internt bruksareal
- 69 m² (BRA-i)
- Bruksareal
- 69 m²
- Balkong/Terrasse
- 7 m² (TBA)
- Etasje
- 3
- Byggeår
- 1974
- Energimerking
- G - Rød
- Rom
- 2
- Tomteareal
- 838 m² (eiet)
Fasiliteter
Balkong/Terrasse
Heis
Barnevennlig
Rolig
Sentralt
Garasje/P-plass
Turterreng
Om boligen
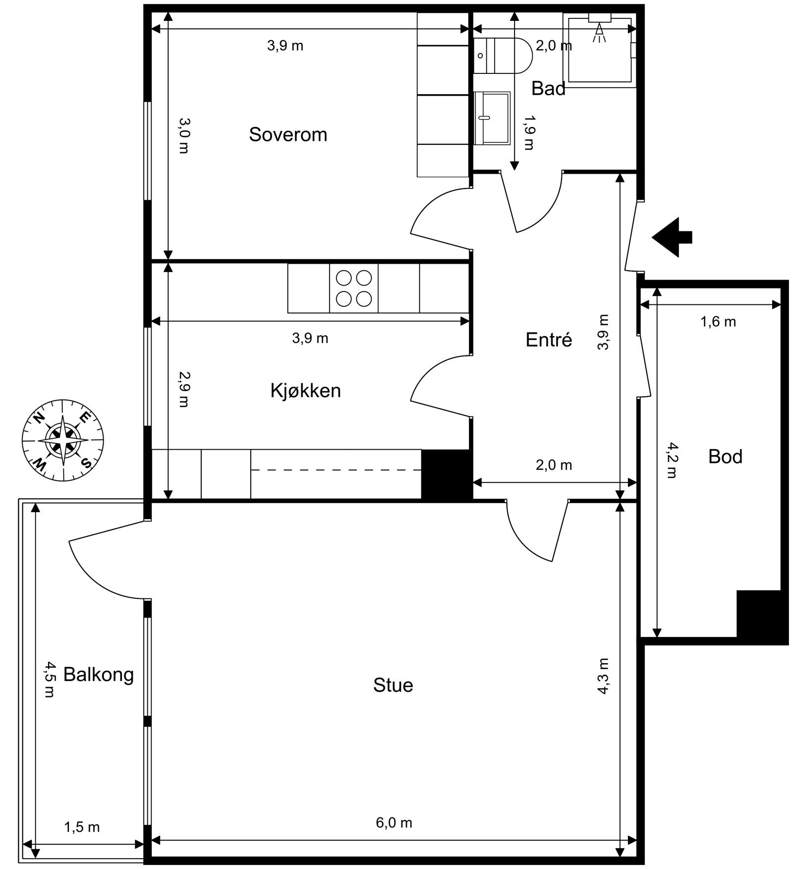
Velkommen til Tidemands gate 31 - Her har vi gleden av å presentere en lys 2-roms med flott nordvest-vendt balkong. Leiligheten ligger i et svært populært og etterspurt strøk, rett ved Vestkanttorget, med kort vei til trikk, hyggelige kafeer, butikker og flere grønne parker, alt innen kort gåavstand.
Kvaliteter:
- Lys 2-roms leilighet med hyggelig nordvest-vendt balkong
- Svært god intern beliggenhet i byggets tredje etasje med heisadkomst
- Kjøkken i eget rom
- Stort soverom
- Innvendig bod på ca. 7 kvm og disponibel bod i kjeller
- Mulighet for kjøp av bruksrett til garasjeplass for kr. 800 000,-
- Kort avstand til Frognerparken med Frognerbadet og tennisbaner, Majorstuen, Briskeby og Frogner
Velkommen til visning!
NB: Knappen for å vise hele beskrivelsen har kun en visuell effekt.
NB: Knappen for å vise hele beskrivelsen har kun en visuell effekt.
Salgsoppgaven beskriver vesentlig og lovpålagt informasjon om eiendommen
Se komplett salgsoppgaveNyttige lenker
Nærområdet

PrivatMegleren Dyve & Partnere
Kun det beste på dine vegne
Annonseinformasjon
| FINN-kode | 452920594 |
|---|---|
| Sist endret | 27. feb. 2026 19:37 |
| Referanse | 159250812 |
Annonsene kan være mangelfulle i forhold til lovpålagt opplysningsplikt. Før bindende avtale inngås oppfordres interessenter til å innhente komplett informasjon fra meglerforetaket, selger eller utleier.






















