Bildegalleri

EIE Eiendomsmegling v/ Håkon Hovland presenterer Galtaveien 84! (Foto: Arve Gravdal)
Rennesøy
Moderne funkisdrøm fra 2010 på romslig 3,5 mål tomt | Landlig idyll | Garasje/verksted | Alt på ett plan
Prisantydning8 250 000 kr
Nøkkelinfo
- Boligtype
- Enebolig
- Eieform
- Eier (Selveier)
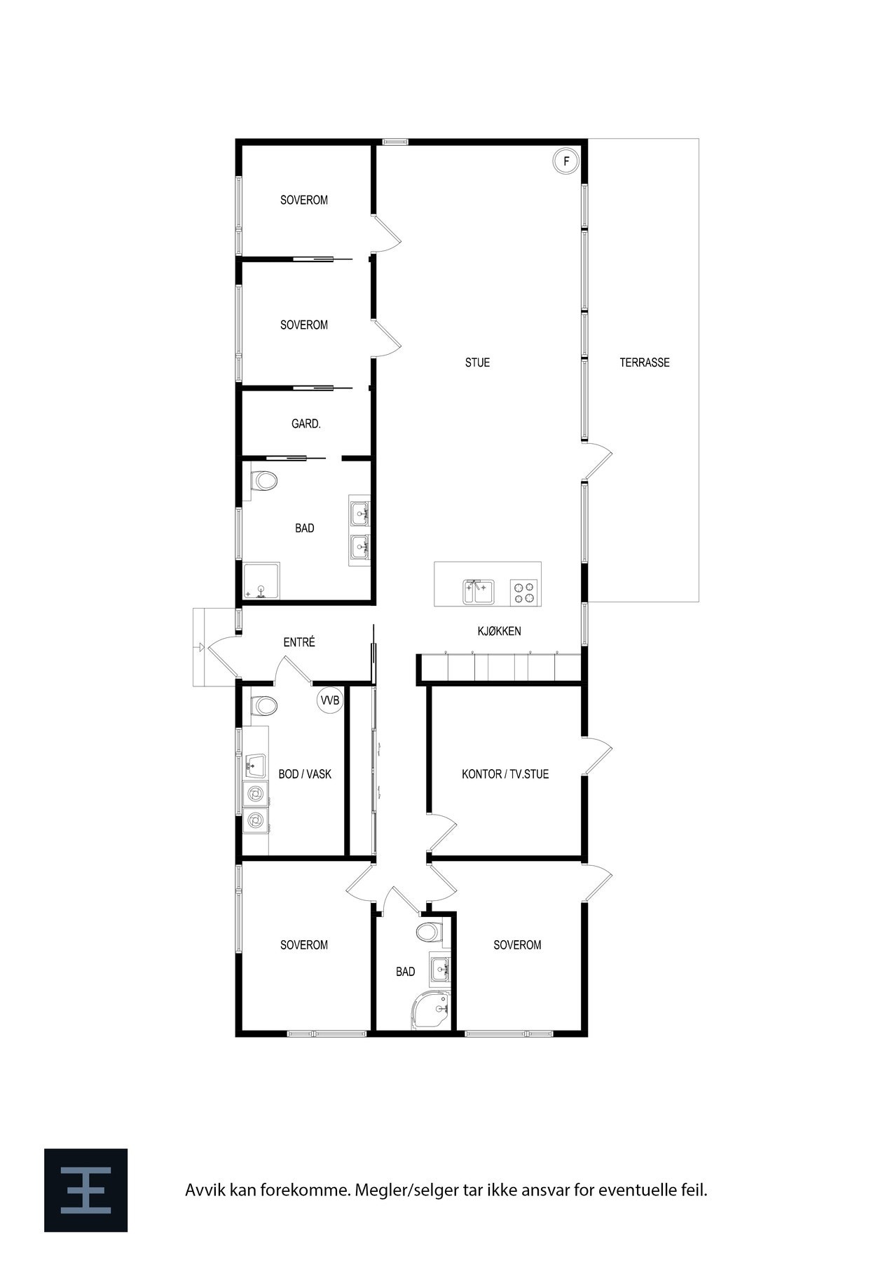
- Soverom
- 5
- Internt bruksareal
- 221 m² (BRA-i)
- Bruksareal
- 317 m²
- Eksternt bruksareal
- 96 m² (BRA-e)
- Balkong/Terrasse
- 58 m² (TBA)
- Byggeår
- 2010
- Energimerking
- C - Lysegrønn
- Rom
- 6
- Tomteareal
- 3 545 m² (eiet)
Fasiliteter
Barnevennlig
Balkong/Terrasse
Garasje/P-plass
Kabel-TV
Peis/Ildsted
Turterreng
Utsikt
Bredbåndstilknytning
Moderne
Rolig
Balansert ventilasjon
Om boligen
EIE Eiendomsmegling v/ Håkon Hovland presenterer Galtaveien 84!
Velkommen til denne moderne funkisboligen fra 2010 på 3,5 mål tomt på Galta, med idyllisk utsikt mot Boknafjorden. Boligen ligger helt usjenert til og tilbyr alt på ett plan - en praktisk og moderne løsning for familieliv eller de som ønsker enkel tilgang til alle rom.
Høydepunkter:
-5 soverom og 2 bad
-Vannbåren varme og balansert ventilasjon
-Åpen, lys og moderne planløsning med store vindusflater
-Rikelig med bod- og lagringsareal
-Carport, garasje/verksted og gode parkeringsmuligheter
-Asfaltert oppkjørsel med appstyrt lys
Flotte uteområder gir rom for lek, avslapning og sosialt samvær. Her kombineres privatliv, landlig idyll og moderne komfort på en unik måte - en ekte funkisdrøm nær sjøen.
Velkommen til visning!
Velkommen til denne moderne funkisboligen fra 2010 på 3,5 mål tomt på Galta, med idyllisk utsikt mot Boknafjorden. Boligen ligger helt usjenert til og tilbyr alt på ett plan - en praktisk og moderne løsning for familieliv eller de som ønsker enkel tilgang til alle rom.
Høydepunkter:
-5 soverom og 2 bad
-Vannbåren varme og balansert ventilasjon
-Åpen, lys og moderne planløsning med store vindusflater
-Rikelig med bod- og lagringsareal
-Carport, garasje/verksted og gode parkeringsmuligheter
-Asfaltert oppkjørsel med appstyrt lys
Flotte uteområder gir rom for lek, avslapning og sosialt samvær. Her kombineres privatliv, landlig idyll og moderne komfort på en unik måte - en ekte funkisdrøm nær sjøen.
Velkommen til visning!
NB: Knappen for å vise hele beskrivelsen har kun en visuell effekt.
NB: Knappen for å vise hele beskrivelsen har kun en visuell effekt.
Salgsoppgaven beskriver vesentlig og lovpålagt informasjon om eiendommen
Se komplett salgsoppgaveNyttige lenker
Nærområdet
EIE eiendomsmegling - Rogaland Eiendomsmegling AS
Annonseinformasjon
| FINN-kode | 452909436 |
|---|---|
| Sist endret | 01. mars 2026 08:48 |
| Referanse | 54260021 |
Annonsene kan være mangelfulle i forhold til lovpålagt opplysningsplikt. Før bindende avtale inngås oppfordres interessenter til å innhente komplett informasjon fra meglerforetaket, selger eller utleier.



















































