Bildegalleri

EIE Eiendomsmegling ønsker velkommen til Råstadveien 22
Solgt
Nær Hasle
BUDRUNDE PÅGÅR | Lys og moderne selveier i 1. etg | Perfekt førstegangskjøp | Lave bokostnader | Utleievennlig |
Prisantydning1 890 000 kr
Nøkkelinfo
- Boligtype
- Leilighet
- Eieform
- Eier (Selveier)
- Soverom
- 1
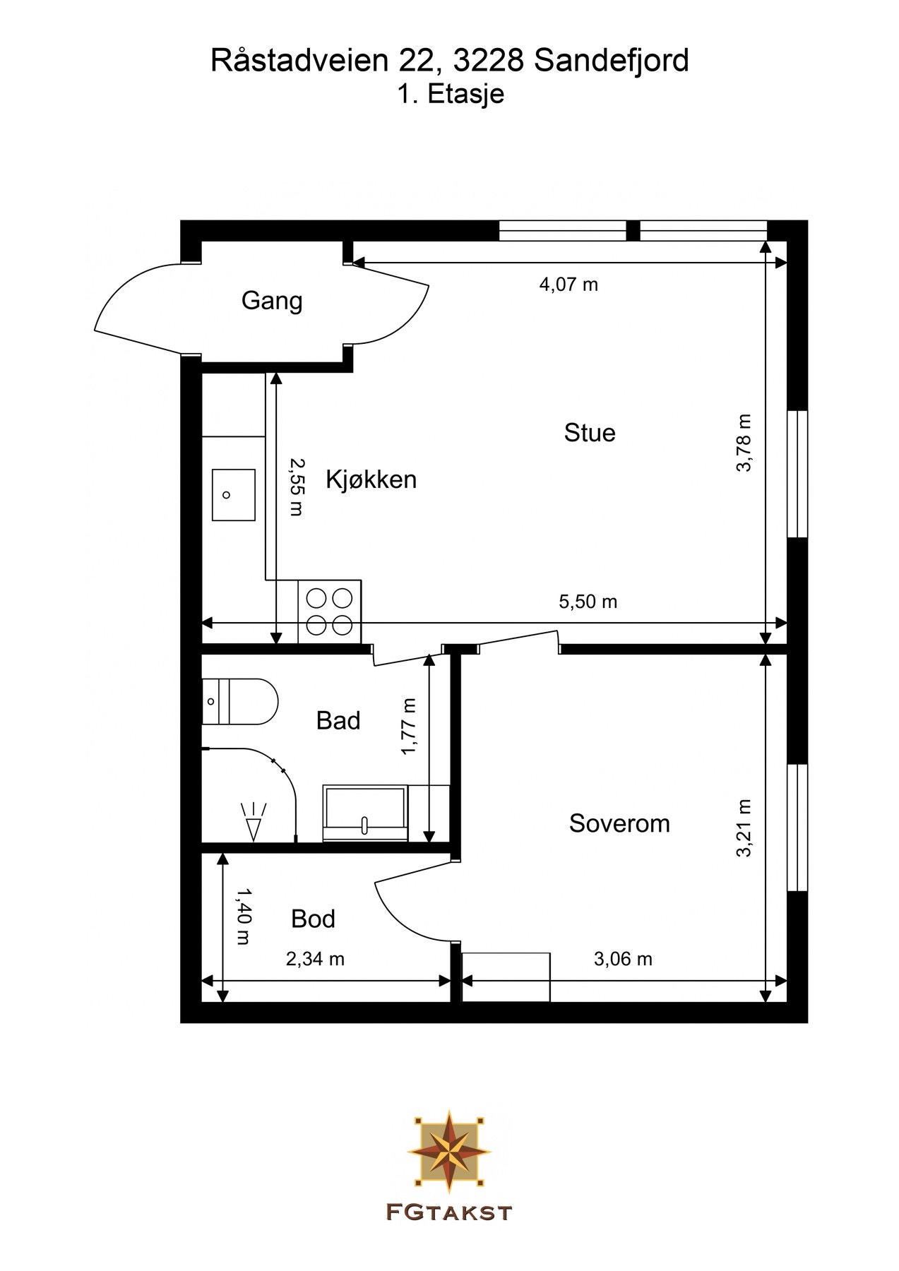
- Internt bruksareal
- 39 m² (BRA-i)
- Bruksareal
- 39 m²
- Etasje
- 1
- Byggeår
- 2008
- Energimerking
- D - Gul
- Tomteareal
- 1 535 m² (eiet)
Fasiliteter
Barnevennlig
Balkong/Terrasse
Garasje/P-plass
Offentlig vann/kloakk
Turterreng
Utsikt
Sentralt
Bredbåndstilknytning
Moderne
Rolig
Om boligen
EIE Eiendomsmegling ønsker velkommen til Råstadveien 22
Her får du en lys og moderne selveierleilighet med attraktiv beliggenhet på Unneberg, ca. 2,6 km øst for Sandefjord sentrum. Boligen ligger rolig til med kort vei til dagligvare, skole, barnehage, kollektivtransport og flotte turområder på Hjertås.
Et svært godt førstegangskjøp med lave og forutsigbare bokostnader, samtidig som boligen også er et interessant utleieobjekt. Leiligheten er per i dag utleid for kr 11 500 per mnd, noe som gir en god dokumentert leieinntekt.
Leiligheten ligger i 1. etg. og fremstår moderne med oppgraderte overflater fra 2018. Slitesterke laminatgulv, behagelige varmekabler i stue og kjøkken, samt lyse og tidsriktige overflater. Etasjeskiller i betong bidrar til god stabilitet og redusert lydgjennomgang.
Kort oppsummert:
. Perfekt førstegangskjøp
. Utleid for kr 11 500 per mnd
. Selveier med lave bokostnader
. Oppgradert i 2018
. Rolig og sentral beliggenhet
. Praktisk 1. etg.
Velkommen til visning!
Her får du en lys og moderne selveierleilighet med attraktiv beliggenhet på Unneberg, ca. 2,6 km øst for Sandefjord sentrum. Boligen ligger rolig til med kort vei til dagligvare, skole, barnehage, kollektivtransport og flotte turområder på Hjertås.
Et svært godt førstegangskjøp med lave og forutsigbare bokostnader, samtidig som boligen også er et interessant utleieobjekt. Leiligheten er per i dag utleid for kr 11 500 per mnd, noe som gir en god dokumentert leieinntekt.
Leiligheten ligger i 1. etg. og fremstår moderne med oppgraderte overflater fra 2018. Slitesterke laminatgulv, behagelige varmekabler i stue og kjøkken, samt lyse og tidsriktige overflater. Etasjeskiller i betong bidrar til god stabilitet og redusert lydgjennomgang.
Kort oppsummert:
. Perfekt førstegangskjøp
. Utleid for kr 11 500 per mnd
. Selveier med lave bokostnader
. Oppgradert i 2018
. Rolig og sentral beliggenhet
. Praktisk 1. etg.
Velkommen til visning!
NB: Knappen for å vise hele beskrivelsen har kun en visuell effekt.
NB: Knappen for å vise hele beskrivelsen har kun en visuell effekt.
Salgsoppgaven beskriver vesentlig og lovpålagt informasjon om eiendommen
Se komplett salgsoppgaveNyttige lenker
Nærområdet
EIE eiendomsmegling Sandefjord
Annonseinformasjon
| FINN-kode | 452907995 |
|---|---|
| Sist endret | 04. mars 2026 12:28 |
| Referanse | 87260020 |
Annonsene kan være mangelfulle i forhold til lovpålagt opplysningsplikt. Før bindende avtale inngås oppfordres interessenter til å innhente komplett informasjon fra meglerforetaket, selger eller utleier.























