Bildegalleri

Velkommen til Svaleveien 4D!
Siggerud
Enderekkehus m/attraktiv og barnevennlig beliggenhet | Solrik tomt | Nyere garasje | Flotte turområder | Butikk rett ved
Prisantydning4 150 000 kr
Nøkkelinfo
- Boligtype
- Rekkehus
- Eieform
- Eier (Selveier)
- Soverom
- 3
- Internt bruksareal
- 102 m² (BRA-i)
- Bruksareal
- 119 m²
- Eksternt bruksareal
- 17 m² (BRA-e)
- Balkong/Terrasse
- 31 m² (TBA)
- Byggeår
- 1969
- Energimerking
- F - Oransje
- Tomteareal
- 63 609 m² (eiet)
Fasiliteter
Balkong/Terrasse
Barnevennlig
Bredbåndstilknytning
Garasje/P-plass
Golfbane
Hage
Kjæledyr tillatt
Offentlig vann/kloakk
Peis/Ildsted
Rolig
Sentralt
Bademulighet
Turterreng
Visning
søndag, 08. mars
16:00 – 17:00
For å delta på visning, ber vi om at du melder deg på. Da sikrer vi at du får nødvendig informasjon og at det er satt av tilstrekkelig med tid. Kontakt megler dersom annet tidspunkt ønskes. Husk å lese salgsoppgaven før visningen, så du stiller forberedt.
Ønsker du kun å bli holdt orientert, kan du fra eiendommens hjemmeside få varsel om solgtpris, eller kontakte megler.
VisningspåmeldingOm boligen
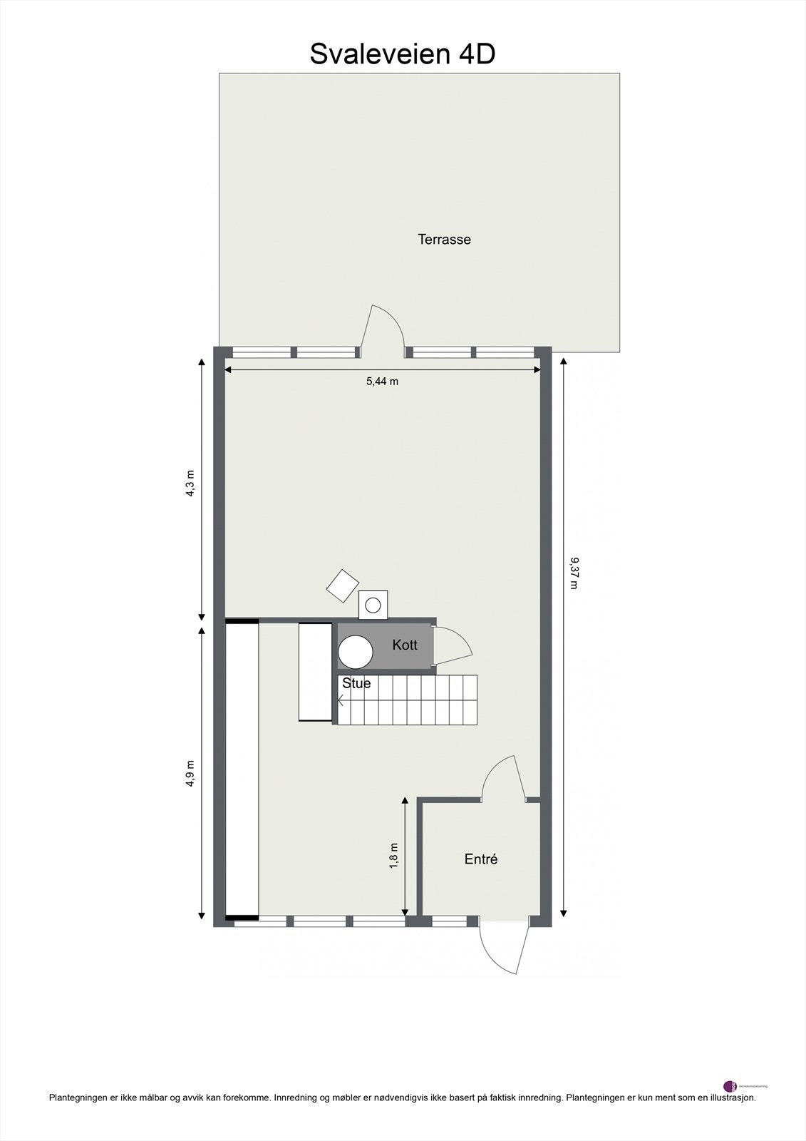
Velkommen til Svaleveien 4D !
Enderekkehus i et veletablert og barnevennlig boligområde. Boligen går over to plan og 1. etasje består av gang, nyere kjøkken fra 2020 og romslig stue med peis, samt varmepumpe. Fra stue er det utgang til solrik terrasse og hage. 2. etasje består av gang, tre soverom, bad, wc-rom og rom benyttet som vaskerom.
Enderekkehus i et veletablert og barnevennlig boligområde. Boligen går over to plan og 1. etasje består av gang, nyere kjøkken fra 2020 og romslig stue med peis, samt varmepumpe. Fra stue er det utgang til solrik terrasse og hage. 2. etasje består av gang, tre soverom, bad, wc-rom og rom benyttet som vaskerom.
- Innbydende rekkehus med tre romslige soverom
- Kjøkken fra 2020
- Lagt nye gulv i boligen i 2019
- Peisovn og varmepumpe
- Badet har nye varmekabler og fliser på gulv fra 2025
- Boligen har meget godt med lagringsplass
- Parkering i nyere garasje
- Det er byttet kledning på vegg mot vest
- Coop Extra og bussholdeplass i umiddelbar nærhet
- Boligen ligger ved inngangen til naturskjønne SørmarkaVelkommen til visning!
NB: Knappen for å vise hele beskrivelsen har kun en visuell effekt.
NB: Knappen for å vise hele beskrivelsen har kun en visuell effekt.
Salgsoppgaven beskriver vesentlig og lovpålagt informasjon om eiendommen
Se komplett salgsoppgaveNyttige lenker
Nærområdet
Krogsveen Ski
Verdien av en god megler.
Annonseinformasjon
| FINN-kode | 452897615 |
|---|---|
| Sist endret | 27. feb. 2026 14:17 |
| Referanse | KR46.25149 |
Annonsene kan være mangelfulle i forhold til lovpålagt opplysningsplikt. Før bindende avtale inngås oppfordres interessenter til å innhente komplett informasjon fra meglerforetaket, selger eller utleier.
















































