Bildegalleri

Nora Rørvik Larsen v/ Krogsveen ønsker velkommen til Arnljot Gellines Vei 19!
Solgt
Lodalen
Gjennomgående og velholdt 3-roms i rolig, bynært område | Kjøkken fra 2025 | Vestvendt balkong | V.vann/fyring inkl.
Prisantydning5 100 000 kr
Nøkkelinfo
- Boligtype
- Leilighet
- Eieform
- Andel
- Soverom
- 2
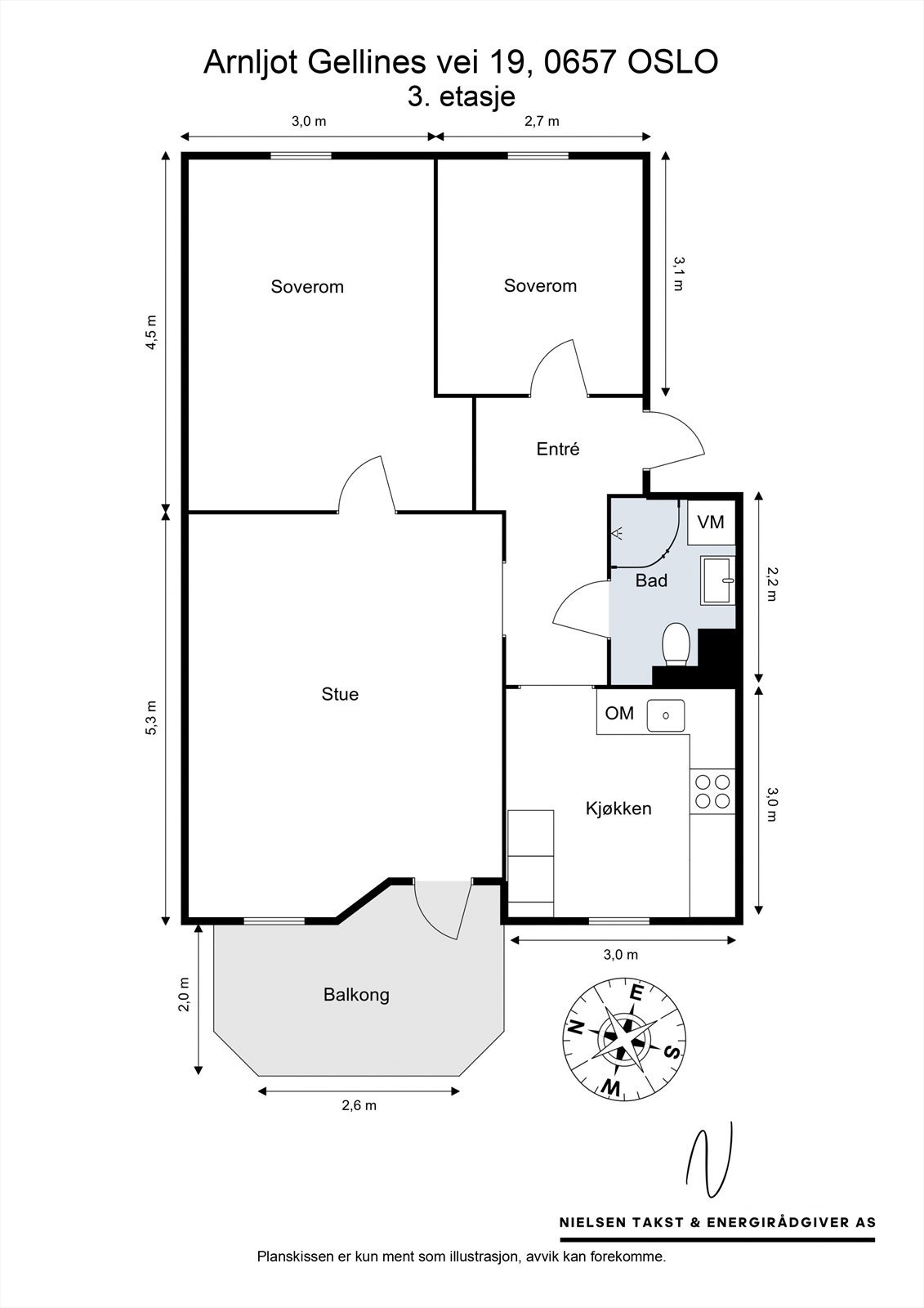
- Internt bruksareal
- 65 m² (BRA-i)
- Bruksareal
- 73 m²
- Eksternt bruksareal
- 8 m² (BRA-e)
- Balkong/Terrasse
- 8 m² (TBA)
- Etasje
- 3
- Byggeår
- 1958
- Energimerking
- D - Mørkegrønn
- Rom
- 3
- Tomteareal
- 12 823 m² (eiet)
Fasiliteter
Balkong/Terrasse
Barnevennlig
Bredbåndstilknytning
Offentlig vann/kloakk
Parkett
Rolig
Sentralt
Turterreng
Om boligen
Velkommen til Arnljot Gellines Vei 19! En lys og gjennomgående 3-roms leilighet, nylig oppusset og beliggende i rolige, men bynære omgivelser.
Dette er et hjem med en lys og luftig atmosfære. Leiligheten ligger tilbaketrukket til med Svartdalsparken som nærmeste nabo, samtidig som det er kort vei til byens puls. Med en arealeffektiv planløsning, to gode soverom og et moderne kjøkken er dette en bolig det er lett å trives i.
Høydepunkter:
Dette er et hjem med en lys og luftig atmosfære. Leiligheten ligger tilbaketrukket til med Svartdalsparken som nærmeste nabo, samtidig som det er kort vei til byens puls. Med en arealeffektiv planløsning, to gode soverom og et moderne kjøkken er dette en bolig det er lett å trives i.
Høydepunkter:
- Oppusset i 2025 med bl.a. nytt kjøkken, nye gulv og sparkling samt maling av alle overflater
- Nye vinduer og balkongdør (2025) i regi av borettslaget
- Moderne kjøkken (2025) med integrerte hvitevarer
- Varmtvann, oppvarming og internett er inkludert
- Vestvendt balkong på ca. 8 m²
- To romslige boder
Velkommen til visning!
NB: Knappen for å vise hele beskrivelsen har kun en visuell effekt.
NB: Knappen for å vise hele beskrivelsen har kun en visuell effekt.
Salgsoppgaven beskriver vesentlig og lovpålagt informasjon om eiendommen
Se komplett salgsoppgaveNyttige lenker
Nærområdet
Krogsveen Hasle
Verdien av en god megler.
Annonseinformasjon
| FINN-kode | 452869298 |
|---|---|
| Sist endret | 13. mars 2026 12:39 |
| Referanse | KR37.2653 |
Annonsene kan være mangelfulle i forhold til lovpålagt opplysningsplikt. Før bindende avtale inngås oppfordres interessenter til å innhente komplett informasjon fra meglerforetaket, selger eller utleier.







































