Bildegalleri

EiendomsMegler1 v/Thor Petter Curtis Mælandsmo presenterer Ekornveien 24! Foto: Inbovi
Rugtvedt
Koselig enebolig i barnevennlige omgivelser. 3 Soverom + kjellerstue. Oppussingsbehov. Romslig tomt m/fine solforhold.
Prisantydning2 890 000 kr
Nøkkelinfo
- Boligtype
- Enebolig
- Eieform
- Eier (Selveier)
- Soverom
- 3
- Internt bruksareal
- 140 m² (BRA-i)
- Bruksareal
- 180 m²
- Eksternt bruksareal
- 40 m² (BRA-e)
- Balkong/Terrasse
- 41 m² (TBA)
- Byggeår
- 1970
- Energimerking
- D - Gul
- Tomteareal
- 1 091 m² (festet)
- Festeavgift
- 1 815 kr
Fasiliteter
Balkong/Terrasse
Barnevennlig
Bredbåndstilknytning
Garasje/P-plass
Hage
Kabel-TV
Rolig
Visning
torsdag, 05. mars
16:00 – 17:00
Ønsker du å delta på visning så ber vi om at du melder deg på slik at vi vet at du kommer og slik at vi kan orientere deg om bud. Visninger hvor det ikke er påmeldte på forhånd vil ikke bli avholdt.
VisningspåmeldingOm boligen
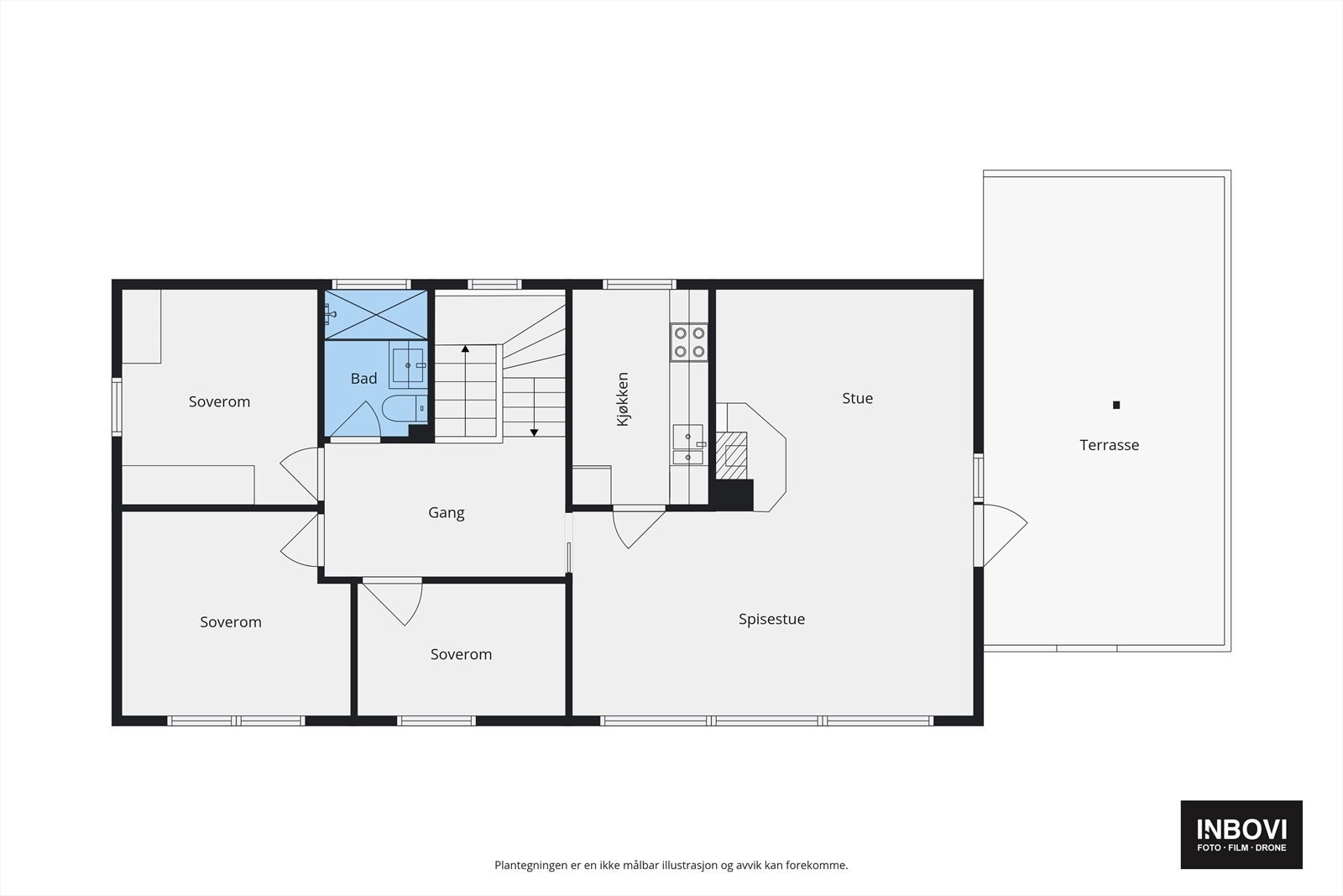
Koselig enebolig over to plan med integrert garasje m/elbil lader beliggende i trivelig og barnevennlig boligområde på Rugtvedt med nærhet til skole, barnehage, idrettsanlegg. Den romslige eiendommen ligger fint til i boligfeltet, med vestvendt beliggenhet som gir nydelige solforhold store deler av dagen og kvelden. Terrassen ligger på samme plan som stua og gir en fin, glidende overgang mellom ute- og innerom.
Boligen har en praktisk planløsning med både stue og bad i begge etasjer, 3 soverom og eget vaskerom. Det er vedovn i begge stuene, samt varmepumpe for en jevn og behagelig varme.
Det er også oppført frittstående garasje/carport på eiendommen.
I nærområdet ligger Lasses handelssenter med bl.a. dagligvare, apotek, frisør, klesforretning og bensinstasjon.
Boligen har en praktisk planløsning med både stue og bad i begge etasjer, 3 soverom og eget vaskerom. Det er vedovn i begge stuene, samt varmepumpe for en jevn og behagelig varme.
Det er også oppført frittstående garasje/carport på eiendommen.
I nærområdet ligger Lasses handelssenter med bl.a. dagligvare, apotek, frisør, klesforretning og bensinstasjon.
NB: Knappen for å vise hele beskrivelsen har kun en visuell effekt.
NB: Knappen for å vise hele beskrivelsen har kun en visuell effekt.
Salgsoppgaven beskriver vesentlig og lovpålagt informasjon om eiendommen
Se komplett salgsoppgaveNyttige lenker
Nærområdet
EiendomsMegler 1 Porsgrunn
et foretak i SpareBank 1 Sør-Norge konsernet
Annonseinformasjon
| FINN-kode | 452863420 |
|---|---|
| Sist endret | 27. feb. 2026 16:53 |
| Referanse | 1412250294 |
Annonsene kan være mangelfulle i forhold til lovpålagt opplysningsplikt. Før bindende avtale inngås oppfordres interessenter til å innhente komplett informasjon fra meglerforetaket, selger eller utleier.







































